Auf dem 1.068 m² großen Grundstück in attraktiver Wohnlage von Hamburg-Billstedt wurde die Baugenehmigung für ein modernes Mehrfamilienhaus mit 12 Wohneinheiten und Tiefgarage erteilt. Aktuell befindet sich noch ein Altbestand auf dem Grundstück, der im Zuge der Realisierung abgerissen werden muss. Die Baugenehmigung liegt vor – der Erwerber kann somit unmittelbar mit dem Bau beginnen.
Das genehmigte Bauvorhaben umfasst ca. 1.556 m² BGF inkl. Tiefgarage, verteilt auf zwei Vollgeschosse und ein Dachgeschoss. Eine hochwertige architektonische Ausführung mit Klinkerfassaden, barrierefreier Erschließung über einen Aufzug sowie großzügige Außenflächen – einschließlich begrüntem Tiefgaragendach – schaffen ideale Voraussetzungen für eine erfolgreiche Vermarktung oder langfristige Bestandshaltung.
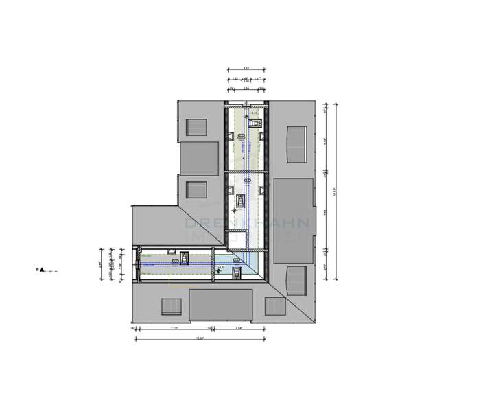
Die Tiefgarage ist funktional ergänzt um Abstellräume, Technikflächen sowie separate Fahrradabstellflächen.
Der Verkauf erfolgt ausschließlich im Share Deal. Für den Käufer ergibt sich dadurch der Vorteil einer möglichen Grunderwerbsteuerersparnis auf den beurkundeten Kaufpreis – je nach Vertragsgestaltung. Es können wahlweise 85 % oder 100 % der Anteile an der Objektgesellschaft übernommen werden.
Ein attraktives Neubauprojekt für Bauträger mit Fokus auf renditestarke Wohnbauentwicklungen in gefragten Hamburger Lagen.
Baugenehmigung vorhanden! 12 Wohneinheiten mit Tiefgarage in Hamburg-Billstedt
Möllner Landstraße 263,
22117 Hamburg
Auf Karte anzeigen
Finanzierungszertifikat
In nur zwei Minuten zu Ihrem persönlichen Finanzierungszertifkat.
Infos
| Vermarktungsart | Kaufen |
|---|---|
| Grundstücksfläche | 1.068 m2 |
| Empfohlene Nutzung | Mehrfamilienhaus |
| Grundflächenzahl (GRZ) | 0.82 |
| Bebaubar nach | Bebauungsplan |
Kosten
| Miete pro Jahr |
1.190.000 € |
|---|---|
| Provision |
5,95 % inkl. 19% gesetzl. MwSt vom Kaufpreis. Der Makler-Vertrag mit unserem Unternehmen entsteht durch schriftliche Vereinbarung oder durch die Inanspruchnahme unserer Maklertätigkeit. Die Vertragsbasis bildet das Objekt-Exposé. Die Käuferprovision ist bei notariellem Vertragsabschluss verdient und fällig. Die Drenkhahn Immobilien GmbH erhält einen unmittelbaren Zahlungsanspruch gegenüber dem Käufer. Grunderwerbsteuer, Notar- und Gerichtskosten trägt der Käufer. |
Finanzierungsrechner:
Kaufpreis:
600.000 €
Eigenkapital:
600.000 €
Monatliche Rate
0 €
Effektiver Jahreszins
0 %
Sollzinsbindung
10 Jahre
Beschreibung des Objekts
Lage
Allgemeine Lage:
Die Möllner Landstraße befindet sich in Hamburg, einer der dynamischsten und bedeutendsten Städte Deutschlands. Hamburg, als einer der größten Hafenstädte Europas, zieht stetig Menschen und Unternehmen an und bietet zahlreiche Möglichkeiten für Immobilienentwickler.
Mikrolage:
Das Grundstück an der Möllner Landstraße profitiert von seiner gut etablierten Umgebung. Es liegt verkehrsgünstig, sowohl an das öffentliche Verkehrsnetz als auch an die Hauptverkehrsadern angebunden. In der unmittelbaren Nachbarschaft findet man eine Mischung aus Wohn- und Geschäftsgebäuden, was auf ein heterogenes, lebendiges Quartier hindeutet.
Infrastruktur:
Einkaufsmöglichkeiten, Schulen, Kindergärten und medizinische Einrichtungen sind in unmittelbarer Nähe und fußläufig erreichbar. Dies steigert die Attraktivität des Standortes für potenzielle Mieter und Käufer. Die Anbindung an den öffentlichen Nahverkehr ist hervorragend, wodurch das Hamburger Stadtzentrum in kurzer Zeit erreichbar ist.
Bebauungssituation:
Das Grundstück ist noch mit Altbestand bebaut. Für einen Projektentwickler ergibt sich hier ein kompletter Neubau. Abhängig von der genauen Größe und Beschaffenheit des Grundstücks können hier Wohnungen realisiert werden.
Marktsituation:
Hamburgs Immobilienmarkt zeigt sich weiterhin robust und nachhaltig. Die Nachfrage nach Wohn- und Geschäftsräumen in der Hansestadt bleibt hoch. Die Möllner Landstraße, mit ihrer ausgewogenen Mischung aus zentraler Lage und guter Infrastruktur, bietet hier eine solide Investitionsmöglichkeit.
Sonstige Angaben
Hinweise: Sollten Sie keine E-Mail von uns sichtbar erhalten, bitten wir Sie, im Spam- bzw. Junk-Mail Ordner Ihres E-Mail-Anbieters nachzusehen!
DSGVO:
Wir verweisen hiermit auf die Speicherung Ihrer Daten, sobald Sie uns eine Kontakt-Anfrage senden. Die Gegebenheiten des Datenschutzes können Sie unter folgendem Link nachlesen.
https://www.drenkhahn-immobilien.de/datenschutz/
Wir bitten um Verständnis, dass wir nur vollständige, schriftliche Anfragen (E-Mail, Fax, Brief) mit Namen, Anschrift und Telefonnummer beantworten können. Gerne stehen wir Ihnen auch zu einer persönlichen Beratung zur Verfügung.
Alle Angaben sind ohne Gewähr und beruhen ausschließlich auf Informationen des Auftraggebers bzw. Eigentümers. Wir übernehmen keine Gewähr für deren Vollständigkeit, Richtigkeit und Aktualität. Zahlenangaben sind, auch wenn nicht ausdrücklich vermerkt, als Circa- Angaben zu verstehen.
Grundriss
Lageplan
>
>
TG
>
>
EG
>
>
OG 1 & 2
>
>
DG
>
>
SB
>
>
TG
>
>
Lageplan
>
>