BAUEN UND WOHNEN IN DER NÄHE DES EINFELDER SEES!
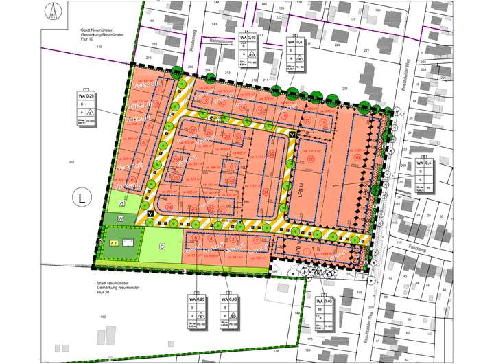
Sie sind auf der Suche nach einem idealen Grundstück für Ihr neues Zuhause oder eine Investition? Dann haben wir großartige Neuigkeiten! Wir bieten im Stadtteil Einfeld in Neumünster, nahe des Einfelder Sees, 34 erschlossene Baugrundstücke an, die auf Ihre Wünsche abgestimmt sind. Die Grundstücke sind gemäß des B-Plans Nr. 224 „Westlich Roschdohler Weg/Nördlich Kreuzkamp“ der Stadt Neumünster ausgewiesen und bieten vielfältige Möglichkeiten der Bebauung. Ihre Chance auf ein individuelles Zuhause!
Verschiedene Größen und flexible Bebauung: Mit Grundstücksflächen zwischen ca. 435 und ca. 5.323 Quadratmetern und einer möglichen Bebauung mit Einfamilien-, Doppel-, Reihen- oder Mehrfamilienhäusern finden Sie hier garantiert das passende Grundstück für Ihre Vorstellungen. Der m²-Preis für Grundstücke mit Einfamilien- oder Doppelhausbebauung liegt bei 240,00 € bis 260,00 €.
Die Grundstücke können wie folgt bebaut werden:
Nr. 2-11 mit Einfamilienhäusern
Nr. 12-18, 21-32 mit Einfamilien- oder Doppelhäusern
Nr. 1, 19, 20 mit Mehrfamilienhäusern
Nr. 33-34 mit Reihenhäusern
Erschlossen und bereit für den Bau: Die Erschließungsarbeiten werden voraussichtlich im Herbst bis Winter 2025 abgeschlossen sein. Danach steht dem Baubeginn nichts mehr im Wege – starten Sie direkt durch!
Top Lage in Neumünster: Die Stadt überzeugt durch eine hervorragende Infrastruktur, eine lebendige Gemeinschaft, viel Natur und eine gute Anbindung an umliegende Städte. Hier können Sie Wohnen und Leben in vollen Zügen genießen. Diese Grundstücke bieten eine hervorragende Gelegenheit für Familien, Investoren oder alle, die ein individuelles Zuhause in einer attraktiven Umgebung suchen. Nutzen Sie die Chance, sich Ihren Platz in Einfeld zu sichern!
Die Grundstücke Nr. 1-4, 6, 8, 10, 13 und 29 sind bereits reserviert.
Weitere Informationen finden Sie im Bebauungsplan unter: https://www.neumuenster.de/wirtschaft-bauen/planen/bauleitplanung/bebauungsplaene/rechtskraeftige-bebauungsplaene/plan/westlich-roschdohler-weg-noerdlich-kreuzkamp
Wenn Sie sich für eines oder mehrere Grundstücke interessieren, kontaktieren Sie uns gern. Wir stellen Ihnen gern weitere Informationen zur Verfügung! Wir freuen uns auf Ihre Anfrage!
Baugrundstücke in Neumünster - Wohnen in der Nähe des Einfelder Sees
24536 Neumünster
Die vollständige Adresse der Immobilie erhalten Sie vom Anbieter.
Auf Karte anzeigen
Die vollständige Adresse der Immobilie erhalten Sie vom Anbieter.
Finanzierungszertifikat
In nur zwei Minuten zu Ihrem persönlichen Finanzierungszertifkat.
Infos
| Vermarktungsart | Kaufen |
|---|---|
| Grundstücksfläche | 646 m2 |
| Erschließung | Erschlossen |
| Bebaubar nach | Bebauungsplan |
| Verfügbar ab | Herbst/Winter 2025 |
Kosten
| Miete pro Jahr |
0 € |
|---|---|
| Provision |
2,38 % inkl. MwSt. des beurkundeten Kaufpreises Der Verkauf ist provisionspflichtig. Der Käufer zahlt im Erfolgsfall an die Pafelinsky Haus- und Grundstücksverwaltungs GmbH eine Käufer-Maklerprovision in Höhe von 2,38 % inkl. MwSt. des beurkundeten Kaufpreises. |
Finanzierungsrechner:
Kaufpreis:
600.000 €
Eigenkapital:
600.000 €
Monatliche Rate
0 €
Effektiver Jahreszins
0 %
Sollzinsbindung
10 Jahre
Beschreibung des Objekts
Lage
Einfeld ist ein beliebter und familienfreundlicher Stadtteil im Herzen von Neumünster. Hier genießen Sie eine hohe Wohnqualität in einer ruhigen und grünen Umgebung, die gleichzeitig eine hervorragende Anbindung an die umliegenden Städte bietet. Der Stadtteil zeichnet sich durch seine gepflegten Wohngebiete, zahlreiche Grünflächen und eine angenehme Nachbarschaft aus. Für Familien, Paare und Singles gleichermaßen ist Einfeld ein attraktiver Ort zum Leben, da hier eine harmonische Mischung aus Ruhe und Gemeinschaft besteht. In Bezug auf die Infrastruktur profitieren Sie von kurzen Wegen zu Einkaufsmöglichkeiten, Schulen, Kindergärten und medizinischer Versorgung. Die gute Anbindung an den öffentlichen Nahverkehr macht es einfach, sich innerhalb Neumünsters sowie in die umliegenden Städte zu bewegen. Dank der Nähe zur Autobahn A7 und A21 sind Hamburg, Kiel und andere wichtige Wirtschaftszentren schnell erreichbar. Die Fahrt nach Hamburg dauert je nach Verkehrslage etwa 45 Minuten, nach Kiel sind es ungefähr 25 Minuten. So genießen Sie die Vorteile eines ruhigen Wohnortes mit der Flexibilität, beruflich und kulturell in den Metropolen aktiv zu sein. Einfeld bietet somit die perfekte Kombination aus naturnaher Lebensqualität und optimaler verkehrstechnischer Anbindung – ideal für alle, die das Beste aus beiden Welten suchen.
Sonstige Angaben
Alle Angaben nach bestem Wissen. Irrtum und Zwischenverkauf vorbehalten. Dieses Exposé ist eine Vorinformation, als Rechtsgrundlage gilt allein der notariell abgeschlossene Kaufvertrag. Der Verkauf ist provisionspflichtig. Der Käufer zahlt im Erfolgsfall an die Pafelinsky Haus- und Grundstücksverwaltungs GmbH eine Käufer-Maklerprovision in Höhe von 2,38 % inkl. MwSt. des beurkundeten Kaufpreises.
Weitere Dokumente
2025-05-13 NMS-Roschdohler WegB-224 Anlage 2 Teil B_Textlich
Kaufpreisliste B-224 01122025