Es handelt sich hier um ein bezauberndes, kleines Einfamilienhaus, das ca. 1930 gebaut wurde und im Jahre 2000 saniert wurde. Hier erhielt das Haus einen neuen Dachstuhl mit Isolierung, die Außenmauern wurden isoliert, die Fenster, die Elektrik und der gesamte Innenausbau wurde erneuert. Für den Fuhrpark gibt es einen großen Doppelcarport. Das Grundstück wurde nach und nach in einen zauberhaften Garten mit großem Gartenteich verwandelt.
Wie verzaubert! Gemütliches, kleines Einfamilienhaus mit traumhaftem Garten
85405 Nandlstadt
Die vollständige Adresse der Immobilie erhalten Sie vom Anbieter.
Auf Karte anzeigen
Die vollständige Adresse der Immobilie erhalten Sie vom Anbieter.
Finanzierungszertifikat
In nur zwei Minuten zu Ihrem persönlichen Finanzierungszertifkat.
Infos
| Haustyp | Einfamilienhaus |
|---|---|
| Etagenzahl | 3 |
| Wohnfläche ca. | 95 m2 |
| Grundstücksfläche | 660 m2 |
| Bezugsfrei ab | kurzfristig |
| Zimmer | 5 |
| Schlafzimmer | 3 |
| Badezimmer | 1 |
| Garage/Stellplatz | Carport |
| Anzahl Garage/Stellplatz | 2 |
Kosten
| Kaufpreis |
499.000 € |
|---|---|
| Provision |
2,38 % inkl. MwSt. |
Finanzierungsrechner:
Kaufpreis:
600.000 €
Eigenkapital:
600.000 €
Monatliche Rate
0 €
Effektiver Jahreszins
0 %
Sollzinsbindung
10 Jahre
Bausubstanz & Energieausweis
| Baujahr | 1930 |
|---|---|
| Letzte Sanierung | 2000 |
| Objektzustand | Gepflegt |
| Qualität der Austattung | Gehoben |
| Heizungsart | Zentralheizung |
| Wesentliche Energieträger | Öl |
| Energieausweis | liegt vor |
| Energieausweistyp | Verbrauchsausweis |
| Energieeffizienzklasse | C |
Energieeffizienzklasse C
- A+
- A
- B
- C
- D
- E
- F
- G
- H
- 0
- 25
- 50
- 75
- 100
- 125
- 150
- 175
- 200
- 225
- >250
Beschreibung des Objekts
Ausstattung
Sie betreten das Haus über einen, als Windfang und Garderobe dienenden, Anbau. Vom Windfang aus kommen Sie in die Diele. Gleich links geht es in den Keller, der allerdings nicht sehr groß ist (ca. 20 m²) und auch noch aus dem Baujahr stammt. Gleich rechts kommt man in das Wohn- oder Esszimmer mit einem modernen Kachelofen. Direkt angrenzend befindet sich die Küche mit Einbauküche und Ausgang zur großen West-Terrasse. Außerdem gibt es hier im Erdgeschoss noch ein geräumiges Duschbad, das auch einen Ausgang zur Terrasse hat. Das Erdgeschoss ist durchgehend gefliest.
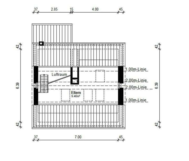
Im Obergeschoss gibt es ein TV-Zimmer mit Ausgang zum ca. 10 m² großen Ost-Balkon. Hier befinden sich auch noch 2 Kinderzimmer. Eine Etage höher, im ausgebauten Dachspitz ist das Elternschlafzimmer untergebracht.
Durch die Küche gelangt man, wie bereits erwähnt, auf die große West-Terrasse, die direkt an einen Teich angrenzt. Der Garten ist wie eine grüne Oase, mit viel Liebe angelegt und durchaus als "verwunschen" zu bezeichnen.
Auf dem Grundstück befindet sich auch noch ein großer Doppelcarport und eine kleine Scheune, die ideal für Fahrräder und Gartengeräte genutzt werden kann.
Machen Sie sich selbst ein Bild von diesem bezaubernden Haus und vereinbaren Sie einen Besichtigungstermin!
Lage
Nandlstadt, als einer der ältesten Hopfenmärkte in Bayern im Landkreis Freising, bietet eine harmonische Kombination aus ländlicher Ruhe und guter Infrastruktur. Der Ort verfügt über eine gewachsene Gemeinschaft und ein reges Vereinsleben. Kleine und mittelständische Unternehmen prägen die lokale Wirtschaft, während die Nähe zu Freising, Landshut und München zusätzliche berufliche Möglichkeiten eröffnet.
Die Infrastruktur ist gut ausgebaut: Einkaufsmöglichkeiten, ärztliche Versorgung sowie Betreuungs- und Bildungseinrichtungen vom Kindergarten bis zur Mittelschule sind vor Ort vorhanden. Weiterführende Schulen sind in Freising, Moosburg und Mainburg mit dem Schulbus erreichbar. Zahlreiche Freizeitangebote, darunter Sportvereine, ein Golfclub, ein Waldfreibad, ein Hallenbad und weitläufige Natur, bieten vielfältige Erholungsmöglichkeiten.
Die Verkehrsanbindung ist hervorragend. Über die Bundesstraße 301 sowie die Autobahnen A9 und A93 sind Städte wie München und Regensburg schnell erreichbar. Der Flughafen München liegt nur etwa 28 Kilometer entfernt, wobei trotz der Nähe kein Fluglärm existiert. Busverbindungen sorgen für eine gute Anbindung an den öffentlichen Nahverkehr.
Nandlstadt kombiniert naturnahes Wohnen mit moderner Infrastruktur und einer sehr guten Erreichbarkeit.
Grundriss
Grundriss EG
>
>
Grundriss OG
>
>
Grundriss DG
>
>
Energieausweis
>
>
Adresse
85405 Nandlstadt
Interessante Orte
Preis- und Lageinformationen
Preistrend für Bestandsimmobilien in Nandlstadt