Schönes, schnuckeliges Einfamilienhaus, Baujahr ca. 1930, mit einer Wohnfläche von insgesamt 121,48 m² und einem schönen sonnigen Grundstück mit 494 m² in ruhiger bevorzugter Wohnlage von St. Georgen.
Eine schöne Raumaufteilung sorgt für eine behagliche Wohnatmosphäre. Die Immobilie ist aufgeteilt in Kellergeschoss, Erdgeschoss, Obergeschoss und Dachspitz. Die Bausubstanz ist solide und in einem guten Zustand.
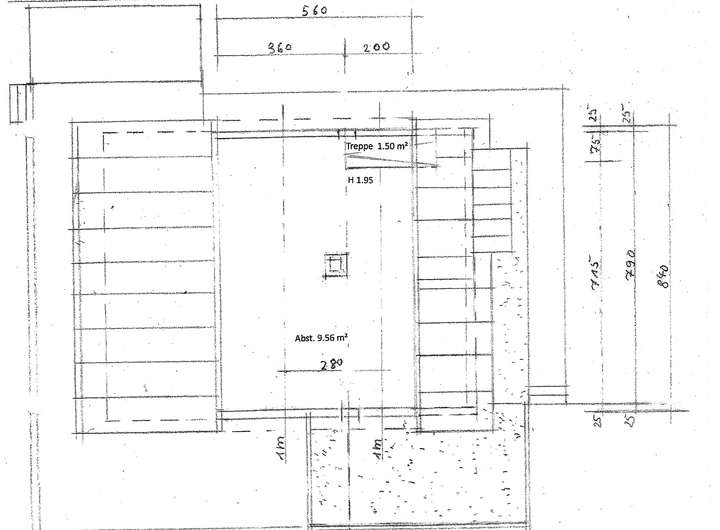
Im Kellergeschoss befinden sich die Kellerräume und die Heizung.
Das Gebäude wird mit einer Gas-Zentralheizung beheizt. Im kompletten Haus sind bereits Kunststofffenster eingebaut. Im Laufe der Jahre wurde das Gebäude immer wieder renoviert und auch durch einen Anbau erweitert.
Ihr Fahrzeug findet in der dazugehörigen Garage einen geschützten und trockenen Unterstand. Vor der Garage ist noch genügend Platz um 2 weitere Fahrzeuge abzustellen.
Der großzügige Garten auf der Rückseite des Gebäudes lässt sich zu einer schönen und ruhigen Wohlfühloase gestalten. In dem dazugehörigen Gartenhaus haben sie genügend Staumöglichkeiten für Gartengeräte und sonstige Utensilien.
Schönes Einfamilienhaus in ruhiger und sonniger Wohnlage mit Garage
78112 Sankt Georgen im Schwarzwald
Die vollständige Adresse der Immobilie erhalten Sie vom Anbieter.
Auf Karte anzeigen
Die vollständige Adresse der Immobilie erhalten Sie vom Anbieter.
Finanzierungszertifikat
In nur zwei Minuten zu Ihrem persönlichen Finanzierungszertifkat.
Infos
| Haustyp | Einfamilienhaus |
|---|---|
| Wohnfläche ca. | 121 m2 |
| Nutzfläche | 59,98 m2 |
| Grundstücksfläche | 494 m2 |
| Bezugsfrei ab | sofort |
| Zimmer | 5 |
| Schlafzimmer | 3 |
| Badezimmer | 1 |
| Garage/Stellplatz | Garage |
| Anzahl Garage/Stellplatz | 1 |
Kosten
| Kaufpreis |
289.000 € |
|---|---|
| Provision |
2,38 % 2,38 % Käuferprovision inkl. Mwst. verdient und fällig mit Beurkundung des notariellen Kaufvertrages. Der Immobilienmakler hat einen provisionspflichtigen Maklervertrag mit dem Verkäufer in gleicher Höhe abgeschlossen. |
Finanzierungsrechner:
Kaufpreis:
600.000 €
Eigenkapital:
600.000 €
Monatliche Rate
0 €
Effektiver Jahreszins
0 %
Sollzinsbindung
10 Jahre
Bausubstanz & Energieausweis
| Baujahr | 1930 |
|---|---|
| Objektzustand | Gepflegt |
| Qualität der Austattung | Normal |
| Heizungsart | Zentralheizung |
| Wesentliche Energieträger | Gas |
| Energieausweis | liegt vor |
| Energieausweistyp | Bedarfsausweis |
| Energieverbrauchskennwert | 441,1 kWh/(m²*a) |
| Energieeffizienzklasse | H |
441,1
kWh/(m²*a)
Energieeffizienzklasse H
- A+
- A
- B
- C
- D
- E
- F
- G
- H
- 0
- 25
- 50
- 75
- 100
- 125
- 150
- 175
- 200
- 225
- >250
Beschreibung des Objekts
Ausstattung
Das Gebäude ist konzipiert als Einfamilienwohnhaus.
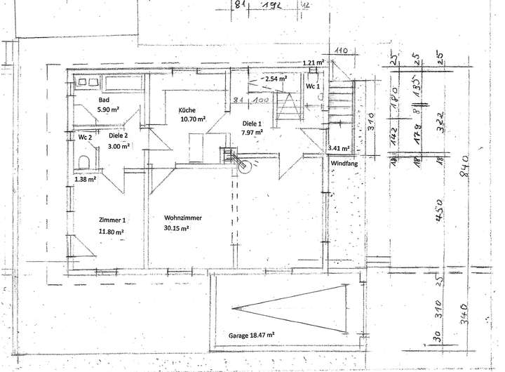
Das Erdgeschoss verfügt über einen gemütlich hell gestalteten Wohn- und Essbereich mit Kaminofen sowie eine schöne moderne Einbauküche, ein weiters Zimmer, ein Tageslichtbad mit separatem WC sowie ein Gäste WC.
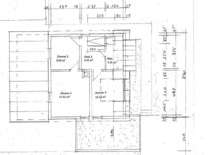
Im Obergeschoss befinden sind die Schlafzimmer.
Der Dachspitz ist nicht ausgebaut und kann als weiterer Stauraum genutzt werden.
Lage
Das Gebäude liegt auf einem schönen ruhigen und sonnigen Grundstück von ca. 494 m² in ruhiger und sonniger Wohnlage in St. Georgen.
St. Georgen ist eine eigenständige Gemeinde mit ca. 13.500 Einwohnern und liegt mitten im Schwarzwald, zwischen 800 und 1000 m über dem Meeresspiegel. Es liegt direkt an der Schwarzwaldbahn Konstanz-Offenburg und hat eine sehr gute Anbindung an die A 81.
Vorwiegend Feinmechanik, Feinwerktechnik und Softwareentwicklung sind in St. Georgen angesiedelt. Aber auch außerhalb der Arbeitswelt bietet St. Georgen alles was das tägliche Leben bedarf: alle Schularten, Kindergärten, Jugendmusikschule, alle Einkaufsmöglichkeiten und Supermärkte am Ort, Hallenbad, Naturfreibad und zahlreiche Wanderwege.
Grundriss
Grundriss DG
>
>
Grundriss OG
>
>
Grundriss EG
>
>
Grundriss UG
>
>
Adresse
78112 Sankt Georgen im Schwarzwald
Interessante Orte
Preis- und Lageinformationen
Preistrend für Bestandsimmobilien in Sankt Georgen im Schwarzwald