Herzlich Willkommen in diesem sehr gepflegten, großzügigen und individuell aufteilbaren Haus mit unverbaubarer Aussichtlage.
Durch die Aufteilung in drei selbständige Eigentumswohnungen, zu denen jeweils ein separater Hauseingang führt, bietet das Haus viele Möglichkeiten. Es eignet sich als
Mehrgenerationen- oder Ferienhaus, für Wohnen und Arbeiten unter einem Dach oder auch als klassisches Einfamilienhaus, indem man die ursprünglich Verbindung der Etagen wieder aufnimmt.
Die Flächen teilen sich wie folgt auf:
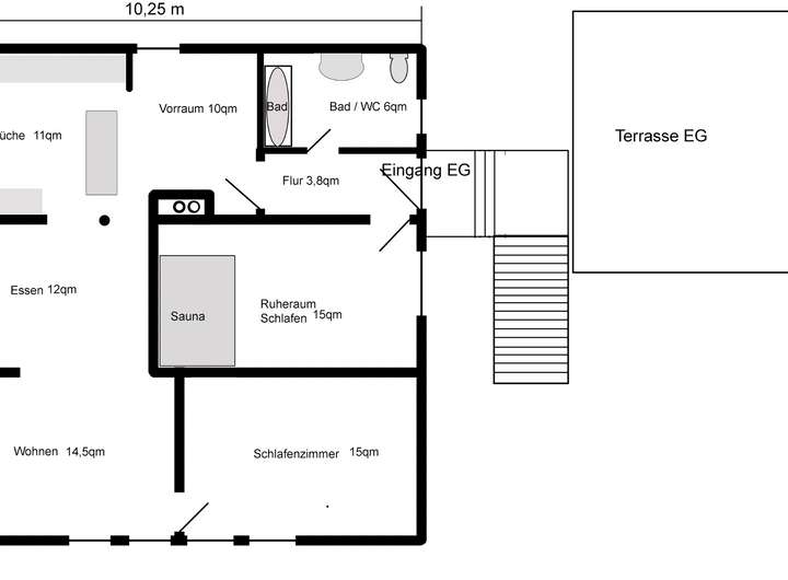
EG: ca 90qm, großer Wohn-Essbereich mit Küche, 2 Schlafzimmer, Bad, Zugang zur großen Terrasse, weitere Terrasse auf Garagen denkbar.
OG: ca 80qm, großer Wohn-Essbereich, 2 Schlafzimmer, Küche, Bad
Niederparterre: ca. 42qm, 2 Zimmer, Küche, Bad, Terrasse
Alle drei Einheiten sind frei stehen somit zur Selbstnutzung oder Vermietung bereit.
Darüber hinaus gibt es trockene und gut nutzbare Kellerräume und einen Speicher über der DG-Wohnung.
Vor dem Haus befindet sich eine Doppelgarage, sowie 3 Stellplätze.
Vielseitig nutzbares und sehr gepflegtes 1-3 Familienhaus mit unverbaubarer Aussicht.
Rohrbacherstr 16,
78098 Triberg im Schwarzwald
Auf Karte anzeigen
Finanzierungszertifikat
In nur zwei Minuten zu Ihrem persönlichen Finanzierungszertifkat.
Infos
| Haustyp | Mehrfamilienhaus |
|---|---|
| Etagenzahl | 4 |
| Wohnfläche ca. | 206 m2 |
| Grundstücksfläche | 648 m2 |
| Bezugsfrei ab | 01.12.2025 |
| Zimmer | 9 |
| Badezimmer | 3 |
| Garage/Stellplatz | Garage |
Kosten
| Kaufpreis |
349.000 € |
|---|---|
| Provision |
3,57 % inkl. 19% MwSt. |
Finanzierungsrechner:
Kaufpreis:
600.000 €
Eigenkapital:
600.000 €
Monatliche Rate
0 €
Effektiver Jahreszins
0 %
Sollzinsbindung
10 Jahre
Bausubstanz & Energieausweis
| Baujahr | 1969 |
|---|---|
| Objektzustand | Gepflegt |
| Heizungsart | Zentralheizung |
| Wesentliche Energieträger | Öl |
| Energieausweis | liegt vor |
| Energieausweistyp | Verbrauchsausweis |
| Energieverbrauchskennwert | 84,4 kWh/(m²*a) |
| Energieeffizienzklasse | C |
84,4
kWh/(m²*a)
Energieeffizienzklasse C
- A+
- A
- B
- C
- D
- E
- F
- G
- H
- 0
- 25
- 50
- 75
- 100
- 125
- 150
- 175
- 200
- 225
- >250
Beschreibung des Objekts
Ausstattung
Das gesamte Haus wurde 1988 umgebaut und grundsaniert. Eine weitere Renovierung erfolgte 1993. Insgesamt befindet sich das Gebäude in einem äußerst gepflegten und praktisch einzugsbereiten Zustand.
Die Ölzentralheizung mit Niedertemperaturkessel wurde 1989 eingebaut und liefert immer noch sehr gute Werte. Ein Gasanschluss wurde 2021 installiert, so dass man bei der Wahl des Energieträgers frei ist.
Schnelles Internet ist durch den bestehenden Glasfaseranschluss gewährleistet.
Weitere Merkmale:
Parkett- und Fliesenböden im EG und OG.
Fliesen und Laminat im Niederparterre.
Einbauküchen im NP und EG.
Hemholz- Sauna im EG.
Lage
Das gepflegte 1-3 Famiienhaus befindet sich in unverbaubarer Aussichtlage im oberen Teil von Triberg im Mittleren Schwarzwald und bietet zur Deckung des täglichen Bedarfs u.a. verschiedene
Lebensmittelmärkte und Geschäfte. Die medizinische Grundversorgung ist durch Praxen und eine Apotheke gesichert.
Es gibt mehrere Kindergärten, sowie alle Schularten. Eine vielseitige Gastronomie, das Freibad, Fitnessstudios, kulturelle Veranstaltungen, das Eventkino und zahlreiche Vereine ergänzen das Angebot. Das Haus in idyllischer Lage, mit wunderschönen Ausblicken, umgeben von Natur und trotzdem zentrumsnah weist somit eine hohe Lebens-und Wohnqualität auf.
Die Region hat viele Freizeit-und Sportmöglichkeiten zu bieten. In unmittelbarer Nähe befinden sich z.B. Spazier- und Wanderwege, Mountainbike-Trails, u. Loipen. Triberg ist bekannt für die höchsten Wasserfällen Deutschlands und die Schwarzwaldbahn.
Das Oberzentrum Villingen-Schwenningen ist in 20 Minuten, Freiburg in 60 Minuten erreichbar.
Sonstige Angaben
Schauen Sie sich gerne das Besichtigungsvideo für einen fundierten ersten Eindruck an!
Haben wir Ihr Interesse geweckt? Dann freuen wir uns auf Ihre aussagekräftige Anfrage und vereinbaren gerne einen individuellen Besichtigungstermin mit Ihnen.
Grundriss
EG
>
>
OG
>
>
Niederparterre / ELW
>
>
Adresse
Rohrbacherstr 16, 78098 Triberg im Schwarzwald
Interessante Orte
Preis- und Lageinformationen
Preistrend für Bestandsimmobilien in Triberg im Schwarzwald