Als Ausgleich zum städtischen Leben gibt es hier ein naturnahes Wohnangebot in Friedersdorf bei Königs-Wusterhausen und damit unweit von Berlin entfernt . Auf den 4 ruhig gelegenen Grundstücken ist viel Platz zum Gärtnern, zum Entspannen oder zum Barbecue mit Familie und Freunden vorhanden.
Die angebotenen Grundstücke haben eine Größe zwischen 339 m² und 344 m².
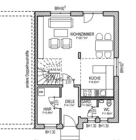
Die moderne Anturis® -Doppelhaushälfte mit Satteldach im Standard mit 120 m² Gesamtwohnfläche beeindruckt im Erdgeschoss mit einem offenen Grundriss, der die Verbindung von Wohn,-Ess- und Küchenbereich schafft und Ihnen somit ein angenehmes Raumgefühl bietet. Die gut durchdachte Fensteraufteilung sorgt für angenehme Lichtverhältnisse und ermöglicht mit den bodentiefen Fenstern im Wohnzimmer einen Zugang zur Terrasse. Des Weiteren befindet sich im Erdgeschoss das taghelle Gäste-WC und der Hauswirtschaftsraum die beide über die Diele erreichbar sind.
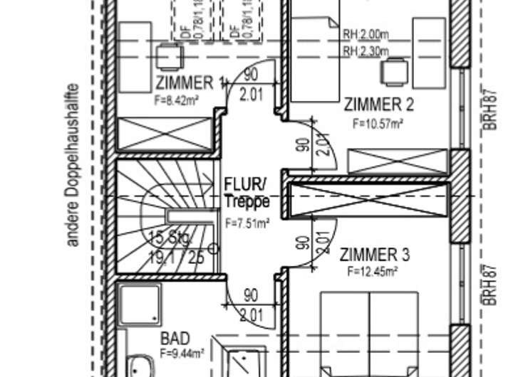
Das Obergeschoss überzeugt durch 3 große, helle Schlafzimmer und ein modern gefliestes Badezimmer.
Auf ihren Wunsch können wir auch ihr individuelles Einfamilienhaus (auch größer) planen.
Zum benannten Grundstückspreis kommen noch die Kosten für die Doppelhaushälfte und die ortsüblichen Erschließungskosten und Baunebenkosten hinzu.
Ich freue mich auf Sie und berate Sie gerne zu ihren offenen Fragen.
❤️Friedersdorf❤️ bei Königs-Wusterhausen❤️ wunderschönes Baugrundstück
15711 Königs Wusterhausen
Die vollständige Adresse der Immobilie erhalten Sie vom Anbieter.
Auf Karte anzeigen
Die vollständige Adresse der Immobilie erhalten Sie vom Anbieter.
Finanzierungszertifikat
In nur zwei Minuten zu Ihrem persönlichen Finanzierungszertifkat.
Infos
| Vermarktungsart | Kaufen |
|---|---|
| Grundstücksfläche | 339 m2 |
| Erschließung | Erschlossen |
| Empfohlene Nutzung | Doppelhaus |
| Grundflächenzahl (GRZ) | 0.2 |
| Geschossflächenzahl (GFZ) | 0.3 |
| Verfügbar ab | sofort |
Kosten
| Miete pro Jahr |
50.850 € |
|---|---|
| Provision | Nein |
Finanzierungsrechner:
Kaufpreis:
600.000 €
Eigenkapital:
600.000 €
Monatliche Rate
0 €
Effektiver Jahreszins
0 %
Sollzinsbindung
10 Jahre
Beschreibung des Objekts
Lage
Friedersdorf, heute Teil der Gemeinde Heidesee, liegt etwa 25 km südöstlich der Berliner Stadtgrenze im Landkreis Dahme-Spreewald. Hier befindet sich das über 300 Hektar große Naturschutzgebiet "Skabyer Torfgraben" und ist eingebettet in die ostbrandenburgischen Heide mit vielen attraktiven Seen. Eine perfekte wald- und seenreiche Umgebung für Radfahrer, Wassersportler, Angler und Naturliebhaber.
Und vielleicht bald auch für Sie !?
Die Gemeinde Heidesee bietet mit all ihren Ortsteilen eine komplette Infrastruktur mit Kitas, Schulen, ärztlicher Versorgung, Kultur- und Sportmöglichkeiten, aber auch Einkaufsmöglichkeiten für den täglichen Bedarf.
Ein besonderer Vorzug von Friedersdorf ist die eigene Autobahnauffahrt an der A 12 in wenigen Minuten ist das Schönefelder Kreuz mit der Berliner Stadtautobahn A 113 oder der A 13 Richtung Dresden erreicht. Der kurze Weg zum Flughafen BER punktet ebenfalls an diesem gut angeschlossenen Wohnort.
Bequem ist man mit der Regionalbahn in ca. einer Dreiviertelstunde in Ostkreuz, Ostbahnhof oder etwas länger am Hauptbahnhof.
Sonstige Angaben
Anturis®-Haus - Ein Team mit 35 Jahren Berufserfahrung - errichtet in Berlin und Brandenburg individuelle Eigenheime.
Die Grundidee:
Hochwertige Qualität in Verbindung mit kostensparendem Bauen zum garantierten Festpreis.
Die Verwirklichung:
Um einen hohen Standard zu sichern, ist es für Anturis®-Haus selbstverständlich, mit eigenen Mitarbeitern den Rohbau zu erstellen und langfristig mit lizensierten Fach- und Meisterbetrieben zusammen zu arbeiten.
Das Ergebnis:
Häuser, die neben guten bautechnischen Eigenschaften individuell ansprechende Lösungen bis ins Detail aufweisen.
Unser Firmensitz und gleichzeitig Musterhaus befindet sich seit fast 20 Jahren ebenfalls in Berlin- Pankow.
Kleingedrucktes: Der Energieausweis liegt für alle geolanten Anturishäuser in unserem Büro aus und kann dort jederzeit eingesehen werden.
Weitere Dokumente
DHH 120-Erdgeschoss FarbeDHH 120-Obergeschoss Farbe
Grundriss
DHH EG
>
>
DHH OG
>
>