Im Altort von Thüngersheim präsentiert sich dieses Objekt als interessantes Angebot für Käufer mit Weitblick.
Dieses massiv gebaute Zweifamilienhaus aus dem Jahr 1900 befindet sich im Altort von Thüngersheim und überzeugt durch eine solide Substanz sowie zwei vermietete Wohneinheiten.
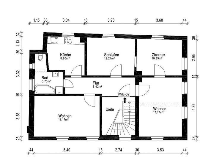
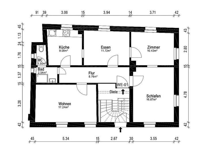
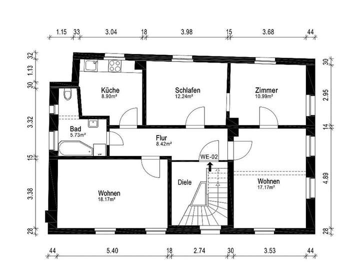
Die Erdgeschosswohnung mit einer Fläche von ca. 79 m² ist seit Jahrzehnten an eine langjährige Mieterin vermietet, die das Haus und die Umgebung sehr schätzt. Sie fühlt sich hier zu Hause und möchte gerne weiterhin in der vertrauten Umgebung wohnen bleiben. Für den neuen Eigentümer ergibt sich dadurch eine stabile und persönliche Mietsituation mit sozialem Verantwortungsbewusstsein. Die rund 81 m² große Wohnung im Obergeschoss wurde 2017 renoviert und ist seitdem vermietet – auch hier besteht der Wunsch der Mieterin, weiterhin in der Wohnung wohnen zu bleiben. Beide Wohnungen verfügen über eine funktionale Raumaufteilung mit Küche, Tageslichtbad mit Dusche und WC, Esszimmer, Wohnzimmer, Schlafzimmer, Kinderzimmer sowie Flur.
Ober- und Dachgeschoss sind durch eine charmante Holzwangentreppe verbunden. Im Dachgeschoss befindet sich ein weiteres Zimmer – ideal als Ausbaureserve für zusätzlichen Wohnraum.
Das Haus ist teilunterkellert mit einem traditionellen Gewölbekeller. Ein weiterer Kellerraum ist über eine separate Außentreppe erreichbar. Ein angebautes Nebengebäude bietet zusätzlichen Stauraum oder Nutzfläche.
Die Lage an der Bundesstraße wird durch vorhandene Lärmschutzfenster entschärft. Der Garten hinter dem Haus bietet Privatsphäre und lädt zum Grillen und Verweilen ein.
Vermietetes Zweifamilienhaus mit Garten im Altort Thüngersheim
97291 Thüngersheim
Die vollständige Adresse der Immobilie erhalten Sie vom Anbieter.
Auf Karte anzeigen
Die vollständige Adresse der Immobilie erhalten Sie vom Anbieter.
Finanzierungszertifikat
In nur zwei Minuten zu Ihrem persönlichen Finanzierungszertifkat.
Infos
| Etagenzahl | 2 |
|---|---|
| Wohnfläche ca. | 160 m2 |
| Grundstücksfläche | 283 m2 |
| Zimmer | 8 |
| Schlafzimmer | 2 |
| Badezimmer | 2 |
| Garage/Stellplatz | Außenstellplatz |
Kosten
| Kaufpreis |
232.000 € |
|---|---|
| Provision |
3,57 % inkl. MwSt. |
Finanzierungsrechner:
Kaufpreis:
600.000 €
Eigenkapital:
600.000 €
Monatliche Rate
0 €
Effektiver Jahreszins
0 %
Sollzinsbindung
10 Jahre
Bausubstanz & Energieausweis
| Baujahr | 1900 |
|---|---|
| Objektzustand | Renovierungsbedürftig |
| Heizungsart | Zentralheizung |
| Wesentliche Energieträger | Gas |
| Energieausweis | liegt vor |
| Energieausweistyp | Bedarfsausweis |
| Energieverbrauchskennwert | 277,4 kWh/(m²*a) |
| Energieeffizienzklasse | H |
277,4
kWh/(m²*a)
Energieeffizienzklasse H
- A+
- A
- B
- C
- D
- E
- F
- G
- H
- 0
- 25
- 50
- 75
- 100
- 125
- 150
- 175
- 200
- 225
- >250
Beschreibung des Objekts
Ausstattung
- Massivbauweise
- 2 Bäder mit Tageslichtfenster
- Kunststofffenster doppelverglast (Lärmschutz zur Straßenseite)
- 2008 Wasser und Elektrik erneuert
- Obergeschoss 2017 renoviert
- Dach neu gedeckt in 2008
- 2008 neuer Gas-Brennwertkessel
- 2 Gewölbekeller
- Nebengebäude
- Garten
Lage
Die Gemeinde Thüngersheim liegt im Maintal, ca. 12 km nordwestlich von Würzburg.
Sie erreichen den malerischen Weinort bequem über die B27, Ausfahrt Thüngersheim. Die Fahrtzeit mit dem PKW beträgt nach Würzburg ca. 15 min und nach Karlstadt ca. 10 min. Von der Bundesautobahn A7, AS-Gramschatz gelangen Sie über Rimpar und Güntersleben direkt über die Ortsverbindungsstraße nach Thüngersheim.
Die gute Anbindung an den öffentlichen Nahverkehr macht das Objekt auch für Pendler interessant – Würzburg ist mit der Bahn in ca. 15 Minuten erreichbar.
Die zentrale Lage sorgt für kurze Wege: Kindergarten, Grundschule, Einkaufsmöglichkeiten, Bäcker sowie der Bahnhof sind fußläufig erreichbar. Auch das örtliche Schwimmbad liegt nur wenige Gehminuten entfernt und bietet in den Sommermonaten eine Abkühlung.
An Freizeitmöglichkeiten mangelt es nicht - mit einer modernen Sporthalle und dem Sportplatz (Fußball, Tennisplätze, Tennishalle, Handballplatz, Skaterplatz, Beachvolleyball, Boccia) ist ausreichend Auswahl vorhanden. In den zahlreichen örtlichen Vereinen kann man sich zudem hervorragend sozial engagieren.
Sonstige Angaben
Wir sind der allein beauftragte Makler und freuen uns auf Sie und Ihre Anfrage.
Für weitere Informationen stehen wir Ihnen gerne persönlich zur Verfügung.
Um eine schnelle Bearbeitung zu gewährleisten, bitten wir Sie, uns Ihre Kontaktdaten
mit E-Mail-Adresse und Telefon-Nummer zu übermitteln.
Wir vermitteln - mit Sicherheit.
Grundriss
Erdgeschoß
>
>
Obergeschoß
>
>
ImmoScout24 Gold Partner
>
>
Immowelt Platin Partner
>
>
Top 10 Immobilienpreis
>
>
Adresse
97291 Thüngersheim
Interessante Orte
Preis- und Lageinformationen
Preistrend für Bestandsimmobilien in Thüngersheim