Entdecken Sie Ihr neues Zuhause mit einer Terrasse, einem geräumigen Dachstudio und viel Platz zum Einrichten.
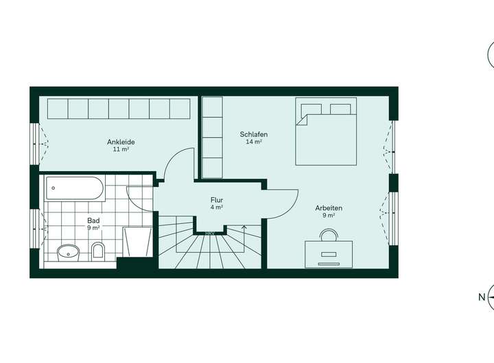
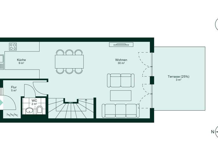
Herzlich willkommen in Ihrem neuen Reihenhaus, wo Komfort und Raumangebot im Vordergrund stehen. Das Erdgeschoss beeindruckt mit einem großzügigen Wohnbereich und einer offenen Küche, die zum gemeinsamen Kochen einlädt. Aus dem Wohnzimmer gelangen Sie direkt auf die Terrasse, perfekt für entspannte Stunden im Freien. Im Obergeschoss erwarten Sie ein gemütliches Schlafzimmer mit integriertem Arbeitsbereich und ein separates Ankleidezimmer.
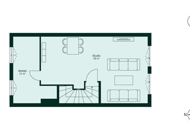
Das Dachgeschoss bietet ein vielseitig einsetzbares Studio, das Sie nach Belieben gestalten können. Abgerundet wird das Raumangebot durch einen praktischen Abstellraum und einen geräumigen Keller im Untergeschoss, ideal für Ihre Aufbewahrungslösungen.
Geräumig mit Terrasse und Dachstudio
42579 Heiligenhaus
Die vollständige Adresse der Immobilie erhalten Sie vom Anbieter.
Auf Karte anzeigen
Die vollständige Adresse der Immobilie erhalten Sie vom Anbieter.
Finanzierungszertifikat
In nur zwei Minuten zu Ihrem persönlichen Finanzierungszertifkat.
Infos
| Haustyp | Reihenmittelhaus |
|---|---|
| Wohnfläche ca. | 142 m2 |
| Nutzfläche | 43,67 m2 |
| Grundstücksfläche | 341 m2 |
| Bezugsfrei ab | November 2027 |
| Zimmer | 4 |
| Badezimmer | 1 |
| Garage/Stellplatz | Außenstellplatz |
| Anzahl Garage/Stellplatz | 2 |
Kosten
| Kaufpreis |
599.900 € |
|---|---|
| Provision | Nein |
Finanzierungsrechner:
Kaufpreis:
600.000 €
Eigenkapital:
600.000 €
Monatliche Rate
0 €
Effektiver Jahreszins
0 %
Sollzinsbindung
10 Jahre
Bausubstanz & Energieausweis
| Baujahr | 2025 |
|---|---|
| Objektzustand | Erstbezug |
| Qualität der Austattung | Gehoben |
| Heizungsart | Fußbodenheizung |
Beschreibung des Objekts
Ausstattung
- Terrasse mit Garten
- Dachstudio
- Effizienzhaus 40
- Badezimmer und Gäste-WC
- Badewanne und Dusche
- Fußbodenheizung
- zwei Außenstellplätze
Lage
Düsseldorf oder Essen, Duisburg oder Wuppertal: Von den Südringterrassen aus erreichen Berufspendler die umliegenden Städte schnell und bequem. Gleich mehrere Bushaltestellen liegen in unmittelbarer Nähe, genau wie die Kita. Der Weg zur Schule lässt sich aber auch mit dem Rad flott zurücklegen.
Sonstige Angaben
Aktion noch bis zum 31.12.2025
Wohnglück in Heiligenhaus finden und Kinderbonus sichern
Familien willkommen: Bei Reservierung eines Hauses in den Südringterrassen erhalten Sie einen attraktiven Kinderbonus mit 10.000 € je Kind, ein zusätzlicher finanzieller Freiraum für das, was Familien wirklich wichtig ist. Gilt bei Reservierung vom 01.09. bis zum 31.12.2025 und nur für die Häuser 031-040. *maximal 30.000 €
Adresse
42579 Heiligenhaus
Interessante Orte
Preis- und Lageinformationen
Preistrend für Bestandsimmobilien in Heiligenhaus