Ein urbaner Wohntraum mit Weitblick und Technik-Komfort:
Diese außergewöhnliche Maisonettewohnung bietet auf ca. 113 m² Wohnfläche das Beste aus zwei Welten – modernes Wohnen auf hohem Niveau und ein ruhiges Zuhause mit beeindruckender Dachterrasse von ca. 42 m². Die Kombination aus lichtdurchfluteten Räumen, klarer Architektur und smarter Technik schafft ein Wohnambiente, das inspiriert.
Das Herzstück der Wohnung ist der offene Wohn-, Ess- und Kochbereich im unteren Geschoss. Hier verschmelzen auf über 58 m² hochwertiges Echtholzparkett, stilvolle Details und eine topausgestattete Einbauküche mit Marken-Einbaugeräten zu einem einladenden Lebensmittelpunkt.
Für optimale Ordnung sorgt eine separate Speisekammer.
Der direkte Zugang auf die 42 qm große und überwiegend überdachte Dachterrasse bietet einen traumhaften Outdoorbereich, ideal für die perfekte Frühstückslounge sowie die abendliche Chillout-Zone. Mit beeindruckendem Panoramablick über die Dächer stilvoller Stadthäuser bis ins grüne, rheinhessische Hügelland.
Das Gäste-WC auf derselben Etage ergänzt das Raumangebot funktional, ohne auf Eleganz zu verzichten.
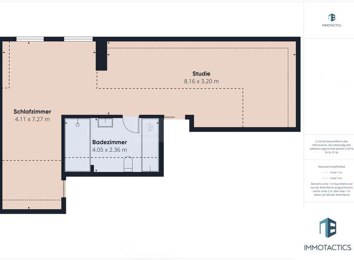
Eine Etage darüber eröffnet sich ein Rückzugsort mit Loft-Charakter: Das großzügige Schlafzimmer bietet viele Einrichtungsmöglichkeiten, vom gemütlichen Schlafbereich bis zur Ankleidezone.
Angrenzend hieran betreten Sie das modern designte Tageslichtbad mit Badewanne, bodengleicher Dusche und edlen Armaturen, welches mit seiner großen Dachfensterfläche eine einzigartige Atmosphäre schafft.
Ein zusätzliches Studio eröffnet Optionen für Homeoffice, Hobby, Gäste oder einfach ein stiller Ort zum lesen und entspannen.
Technisch präsentiert sich diese Wohnung auf höchstem Standard zu zeitgemäßem Wohnen: Fußbodenheizung in allen Räumen, elektrische Rollläden, 3-fach-verglaste Fenster, elektrische Dachrollos, Raffstores und ein integriertes Smart-Home-System sorgen für maximalen Komfort und Effizienz.
Ein Aufzug bringt Sie barrierefrei von der Tiefgarage bis vor Ihre Wohnungstür und ein separater Kellerraum sorgt für zusätzlichen Stauraum.
Zusätzlich können bis zu zwei Tiefgaragenstellplätze und ein Außenstellplatz erworben werden.
Diese Wohnung ist kein Kompromiss – sie ist ein Statement. Für Singles mit Stil, Paare mit Weitblick oder Anleger mit Anspruch. Wer modernes Wohnen mit Wohlfühlatmosphäre sucht, wird hier nicht einfach fündig, sondern glücklich.
Erleben Sie dieses Wohngefühl live und vereinbaren Sie jetzt Ihren persönlichen Besichtigungstermin.
Skyline-Flair trifft smartes Wohngefühl - Maisonette mit Panorama & XXL Dachterrasse - inkl. Video!
55218 Ingelheim am Rhein
Die vollständige Adresse der Immobilie erhalten Sie vom Anbieter.
Auf Karte anzeigen
Die vollständige Adresse der Immobilie erhalten Sie vom Anbieter.
Finanzierungszertifikat
In nur zwei Minuten zu Ihrem persönlichen Finanzierungszertifkat.
Infos
| Wohnungskategorie | Maisonette |
|---|---|
| Etage | 3 von 3 |
| Wohnfläche ca. | 113 m2 |
| Bezugsfrei ab | nach Vereinbarung |
| Zimmer | 2 |
| Schlafzimmer | 1 |
| Badezimmer | 1 |
| Garage/Stellplatz | Tiefgarage |
| Anzahl Garage/Stellplatz | 2 |
Kosten
| Kaufpreis |
499.000 € |
|---|---|
| Hausgeld |
448 € |
| Preis für Garage/Stellplatz | 20.000 € |
| Provision |
3,57% inkl. gesetzlicher Umsatzsteuer |
Finanzierungsrechner:
Kaufpreis:
600.000 €
Eigenkapital:
600.000 €
Monatliche Rate
0 €
Effektiver Jahreszins
0 %
Sollzinsbindung
10 Jahre
Bausubstanz & Energieausweis
| Baujahr | 2014 |
|---|---|
| Objektzustand | Neuwertig |
| Qualität der Austattung | Gehoben |
| Heizungsart | Fußbodenheizung |
| Wesentliche Energieträger | Pelletheizung |
| Energieausweis | liegt vor |
| Energieausweistyp | Verbrauchsausweis |
| Energieverbrauchskennwert | 86,0 kWh/(m²*a) |
| Energieeffizienzklasse | C |
86,0
kWh/(m²*a)
Energieeffizienzklasse C
- A+
- A
- B
- C
- D
- E
- F
- G
- H
- 0
- 25
- 50
- 75
- 100
- 125
- 150
- 175
- 200
- 225
- >250
Beschreibung des Objekts
Ausstattung
• 113 qm Wohnfläche
• 42 qm Dachterrasse, größtenteils überdacht
• moderne Einbauküche mit hochwertigen Einbaugeräten
• separate Speisekammer
• Gäste-WC
• Tageslichtbad mit Dusche und Badewanne
• Fußbodenheizung
• 3-fach verglaste Fenster
• elektrische Rollläden
• elektrische Verdunkelungsrollos an Dachfenstern
• elektrische Raffstores
• Smart Home-System
• Aufzug
• Kellerraum
• Tiefgaragenstellplatz
• Außenstellplatz
Lage
Zentral, gut angebunden und mit hohem Freizeitwert – diese Lage in Nieder-Ingelheim spricht besonders Menschen an, die urbanen Komfort mit entspannter Lebensqualität verbinden möchten.
Ideal für den schnellen Einkauf zwischendurch oder den entspannten Wocheneinkauf zu Fuß ist der nächste Supermarkt in rund zehn Gehminuten bequem erreichbar und eine ärztliche Versorgung liegt sogar in direkter Nachbarschaft.
Wer sportlich aktiv ist, profitiert ebenfalls von kurzen Wegen:
Das moderne Ingelheimer Schwimmbad ist in zehn Minuten zu Fuß erreichbar, ein gut ausgestattetes Fitnessstudio in nur sechs Minuten – perfekt für individuelle Trainingszeiten ganz ohne Anfahrtsstress.
Auch der Bahnhof ist schnell erreichbar und bietet direkte Verbindungen nach Mainz, Wiesbaden und Frankfurt – ideal für Berufspendler. Mit dem Auto sind Sie über die nahegelegene B41 und A60 flexibel und zügig unterwegs.
Besonders praktisch: Eine DHL-Packstation ist in nur zwei Minuten fußläufig erreichbar – ideal für alle, die flexibel und unkompliziert Pakete empfangen oder versenden möchten.
Für die Freizeitgestaltung hält das Umfeld viel bereit: Spaziergänge oder Radtouren entlang des Rheins, gemütliche Abende in den nahegelegenen Restaurants oder kulturelle Angebote im Stadtzentrum sorgen für Abwechslung und Lebensqualität.
Ingelheim punktet mit moderner Infrastruktur, aktiver Stadtkultur und einem angenehmen sozialen Umfeld – perfekt für alle, die nach einem Zuhause mit Stil, Komfort und guter Anbindung suchen.
Sonstige Angaben
Die in unserem Exposé enthaltenen Aussagen basieren ausschließlich auf Informationen, die uns vom Verkäufer und von Handwerkern zur Verfügung gestellt wurden.
Wir übernehmen daher keine Gewähr für die Vollständigkeit und Richtigkeit der Angaben.
Das Immobilienangebot ist freibleibend.
Irrtum und Zwischenverkauf bleiben vorbehalten.
Weitere Details zum Objekt erläutern wir Ihnen gerne bei einem Besichtigungstermin.
Wir bitten um Ihr Verständnis dafür, dass wir nur Anfragen mit vollständigen Adressdaten inklusive Vor- und Zuname, Anschrift, Telefon-/Mobilnummer und Email Adresse bearbeiten können.
Sie suchen nach der passenden Finanzierung? Wir finden sie!
Als ungebundene Finanzierungsvermittler vergleichen wir über 900 Banken und finden einen optimalen Kredit für Sie.
Sparen Sie Geld und Zeit! Mit Sicherheit günstiger als Ihre Hausbank.
Informieren Sie sich jetzt hier, kostenfrei und unverbindlich über Finanzierungsmöglichkeiten zu dieser Immobilie. Fördermittelberatung inklusive.
Wir freuen uns auf den Kontakt zu Ihnen.
Immotactics GmbH
0671 – 20272030
info@immotactics.de
Grundriss
OG
>
>
DG
>
>
Keller
>
>
Adresse
55218 Ingelheim am Rhein
Interessante Orte
Preis- und Lageinformationen
Preistrend für Bestandsimmobilien in Ingelheim am Rhein