Willkommen in diesem attraktiven Einfamilienhaus, das sich direkt an der Tonkuhle befindet.
Mit einer großzügigen Wohnfläche von etwa 138 m² erstreckt sich das Haus über drei Etagen und bietet Ihnen viel Platz für individuelle Gestaltung.
Im Eingangsbereich erwarten Sie ein praktisches Gäste-WC sowie ein Hauswirtschaftsraum. Gehen Sie weiter, gelangen Sie in den offenen Wohn- und Essbereich, der durch große bodentiefe Fenster besticht und eine angenehme Atmosphäre schafft.
Im ersten Obergeschoss befinden sich zwei/drei gemütliche Schlafzimmer, ein vielseitig nutzbares Büro oder Gästezimmer sowie ein Badezimmer. Praktisch: Die Waschmaschine und der Trockner sind im Badezimmer integriert, was zusätzlichen Komfort bietet.
Eine Etage höher finden Sie das größte Schlafzimmer des Hauses, das über einen kleinen Bereich für eine offene Ankleide verfügt. Zudem steht Ihnen hier ein geräumiger Abstellraum zur Verfügung, der reichlich Stauraum bietet.
Die Wohnräume werden mit Vinylboden ausgestattet, während im Badezimmer Fliesen verlegt werden.
Der Außenbereich dieser Immobilie umfasst ein Carport, das zusätzlichen Schutz für Ihr Fahrzeug bietet.
Lassen Sie sich von diesem charmanten Einfamilienhaus begeistern und entdecken Sie die Möglichkeiten, die es Ihnen bietet!
Neubau: Einfamilienhaus in Oldenburg in attaktiver Lage zum Kauf - direkt an der Tonkuhle!
An der Tonkuhle 4c,
26131 Oldenburg (Oldenburg)
Auf Karte anzeigen
Finanzierungszertifikat
In nur zwei Minuten zu Ihrem persönlichen Finanzierungszertifkat.
Infos
| Haustyp | Einfamilienhaus |
|---|---|
| Wohnfläche ca. | 138 m2 |
| Nutzfläche | 17,87 m2 |
| Grundstücksfläche | 239 m2 |
| Bezugsfrei ab | sofort |
| Zimmer | 5 |
| Schlafzimmer | 3 |
| Badezimmer | 1 |
| Garage/Stellplatz | Carport |
| Anzahl Garage/Stellplatz | 1 |
Kosten
| Kaufpreis |
649.000 € |
|---|---|
| Provision | Nein |
Finanzierungsrechner:
Kaufpreis:
600.000 €
Eigenkapital:
600.000 €
Monatliche Rate
0 €
Effektiver Jahreszins
0 %
Sollzinsbindung
10 Jahre
Bausubstanz & Energieausweis
| Baujahr | 2023 |
|---|---|
| Objektzustand | Erstbezug |
| Heizungsart | Fußbodenheizung |
| Energieausweis | liegt vor |
| Energieausweistyp | Bedarfsausweis |
| Energieverbrauchskennwert | 12,8 kWh/(m²*a) |
| Energieeffizienzklasse | A+ |
12,8
kWh/(m²*a)
Energieeffizienzklasse A+
- A+
- A
- B
- C
- D
- E
- F
- G
- H
- 0
- 25
- 50
- 75
- 100
- 125
- 150
- 175
- 200
- 225
- >250
Beschreibung des Objekts
Ausstattung
+ Luft-Wasser-Wärmepumpe
+ PV-Anlage
+ elektrische Rollläden
+ Fußbodenheizung
+ Carport
+ KfN (Klimafreundlicher Neubau)
+ direkte Nähe zur Tonkuhle
Lage
Das Objekt befindet sich an der Tonkuhle 4 in 26131 Oldenburg und liegt somit in dem Oldenburger Stadtteil Eversten.
Die Einkaufsmöglichkeiten und Geschäfte für den alltäglichen Gebrauch befinden sich in der Nähe des Objektes. Diese sind sowohl fußläufig als auch mit dem Auto innerhalb von ungefähr 5 Minuten schnell zu erreichen.
Diverse Bildungseinrichtungen wie Kindergärten und verschiedene Schulformen liegen ebenfalls in der näheren Umgebung.
Die Lage verfügt über optimale Verkehrsanbindungen. So können Sie die Ziele auch mit dem öffentlichen Personennahverkehr erreichen. Im Umkreis des Einfamilienhauses liegen in circa 300 Meter Entfernung die Bushaltestellen und in circa 1 km Entfernung auch die Autobahnauffahrt Oldenburg-Eversten.
Direkt bei der Immobilie befindet sich die Tonkuhle. Diese ist ein beliebtes Ausflugsziel und bietet Ihnen die Möglichkeit für tolle und entspannte Spaziergänge entlang des Wasser.
Oldenburg bietet Ihnen auch ein großes Angebot an Freizeitmöglichkeiten. Hierzu zählen zum Beispiel Spielplätze, ein Hallenbad, einige Sportvereine und Sportplätze, ein Kino.
Sonstige Angaben
Unsere Immobilienangebote verstehen sich freibleibend und unverbindlich. Zwischenvermittlung ausdrücklich vorbehalten. Die Angaben zum Objekt basieren auf erteilten Informationen Dritter. Für die Richtigkeit und Vollständigkeit kann deshalb keine Haftung übernommen werden.
Wir können Anfragen nur mit vollständig angegebenem Namen, Adresse und Telefonnummer bearbeiten. Wir bitten um Ihr Verständnis.
Die erforderlichen Energieangaben wurden entweder bereits im Exposé eingetragen oder der Energieausweis befindet sich derzeit in Bearbeitung.
Alle in dieser Anzeige gemachten Angaben, insbesondere zu den Energieverbrauchswerten, beruhen auf den Informationen aus dem uns vorliegenden Energieausweis. Trotz sorgfältiger Prüfung können unvollständige oder fehlende Angaben nicht vollständig ausgeschlossen werden. Für die Richtigkeit und Vollständigkeit der Angaben übernehmen wir daher keine Gewähr. Der vollständige Energieausweis kann jederzeit angefordert und eingesehen werden. Sollten Angaben im Exposé fehlen oder unvollständig sein, bitten wir höflich um Mitteilung, damit wir diese ergänzen können. Maßgeblich sind in jedem Fall die Daten aus dem vorliegenden Energieausweis. Sollte dieser in Bearbeitung sein, werden die Angaben umgehend nach Erhalt des Ausweises aufgenommen.
Energieausweis:
Bedarfsausweis,
Endenergiebedarf 12,80 kWh/(m²xa),
Energieausweis gültig bis 28.07.2035,
Baujahr lt. Energieausweis2023,
Luft/Wasser Wärmepumpe,
EnergieeffizienzklasseA+
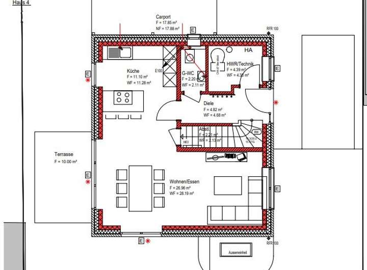
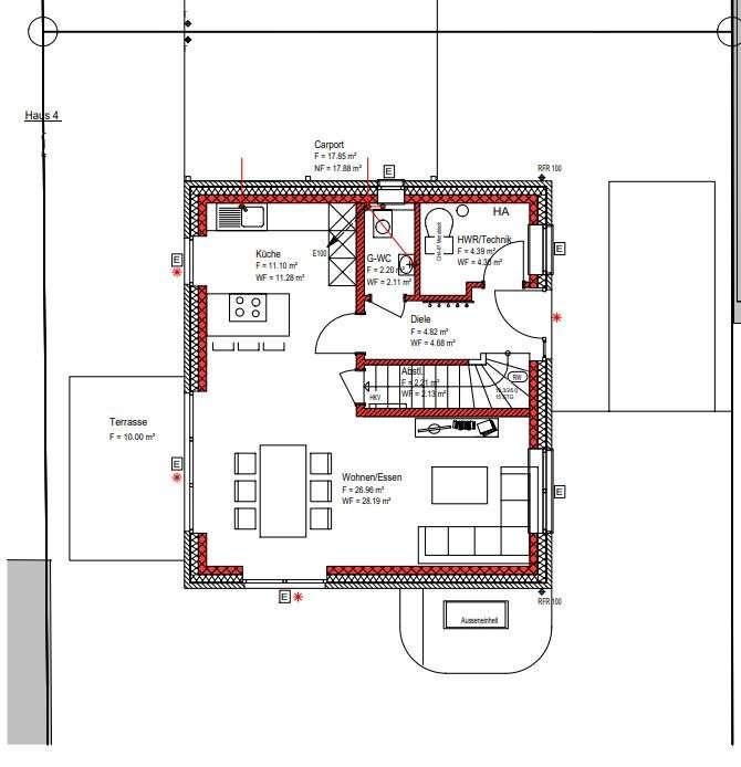
Grundriss
Grundriss Erdgeschoss
>
>
Grundriss Obergeschoss
>
>
Grundriss Dachgeschoss
>
>
Adresse
An der Tonkuhle 4c, 26131 Oldenburg (Oldenburg)
Interessante Orte
Preis- und Lageinformationen
Preistrend für Bestandsimmobilien in Eversten