Hinweis
Wir bitten Sie um Verständnis, dass wir aufgrund des geringen Angebots von Wohnraum und anderseits der enorm gestiegenen Anfragen nicht mehr alle Interessenten kontaktieren können. Die Vermieter erwarten von uns grundsätzlich Vorschläge von Wohnungssuchenden, die von der Personenanzahl dem angebotenen Wohnraum entsprechen. Die in einem festen Arbeitsverhältnis stehen und über eine einwandfreie Schufa- Auskunft verfügen und Nichtraucher sind. Tierhaltung ist in diesem Objekt nur eingeschränkt erlaubt! Wenn Sie einem Kriterium nicht entsprechen sollten, können wir Sie bei Ihrer Wohnungssuche leider nicht unterstützen. Wir hoffen auf Ihr Verständnis und bitten Sie, bevor mit uns Kontakt aufnehmen, selbst zu prüfen, ob Sie die o. a. Bedingungen alle erfüllen.
Zur Immobilie:
Bei dieser Immobilie handelt es sich um ein modernes Einfamilienhaus in absoluter Bestlage von Gemünd. Das hochwertige Neubauobjekt überzeugt durch eine durchdachte Raumaufteilung, moderne Architektur und eine exzellente Ausstattung – ideal für Familien oder anspruchsvolle Paare, die Wert auf Komfort, Energieeffizienz und Lebensqualität legen.
Besonders hervorzuheben ist das zukunftsweisende Heiz- und Energiekonzept. Das Haus erreicht die Energieeffizienzklasse A+ und ermöglicht somit dauerhaft niedrige Betriebs- und Nebenkosten.
Ausstattungsmerkmale im Energiebereich:
Moderne Wärmepumpenheizung
Photovoltaikanlage mit Stromspeicher
Effiziente Nutzung erneuerbarer Energien
Dieses System sorgt nicht nur für eine umweltfreundliche Energieversorgung, sondern reduziert Ihre laufenden Kosten spürbar – ein echter Mehrwert gegenüber herkömmlichen Immobilien.
Ein weiteres Highlight ist das großzügige Grundstück, das Ihnen vielfältige Nutzungsmöglichkeiten bietet – ob für Familienfeste, einen Gemüsegarten oder einfach zum Entspannen im Grünen. Die Terrasse mit ca. 20–25 m² (nicht in der Wohnfläche enthalten) lädt zum Verweilen ein und erweitert den Wohnbereich in die Natur.
Inklusive moderner Einbauküche
Das Angebot wird durch eine hochwertige, neue Einbauküche abgerundet, die perfekt in das moderne Wohnkonzept integriert ist. Für die Nutzung der Einbauküche fällt ein monatlicher Aufpreis von 100 Euro zur Miete an – ein fairer Preis für zusätzlichen Komfort und sofortige Kochbereitschaft.
Besondere Zusatzoption: Einliegerwohnung für Ihre Gäste
Angrenzend an das Haus befindet sich eine separate Einliegerwohnung, die nicht dauerhaft vermietet wird, sondern als Ferienwohnung genutzt wird. Als Mieter des Hauses haben Sie die Möglichkeit, Ihre Gäste dort bei Bedarf unterzubringen – zu vergünstigten Konditionen. Eine ideale Lösung, wenn Familie oder Freunde zu Besuch kommen, ohne dass zusätzlicher Platz im Haus benötigt wird.
Fazit
Dieses Einfamilienhaus vereint hochwertige Bauqualität, zukunftssichere Energieversorgung und eine begehrte Lage – ideal für alle, die modern, nachhaltig und komfortabel wohnen möchten.
Erstbezug mit Stil – Familienfreundlicher Neubau in Toplage
53937 Schleiden
Die vollständige Adresse der Immobilie erhalten Sie vom Anbieter.
Auf Karte anzeigen
Die vollständige Adresse der Immobilie erhalten Sie vom Anbieter.
Infos
| Haustyp | Einfamilienhaus |
|---|---|
| Etagenzahl | 2 |
| Wohnfläche ca. | 150 m2 |
| Grundstücksfläche | 500 m2 |
| Bezugsfrei ab | nach Vereinbarung |
| Zimmer | 5 |
| Schlafzimmer | 5 |
| Badezimmer | 2 |
| Garage/Stellplatz | Außenstellplatz |
| Anzahl Garage/Stellplatz | 1 |
Kosten
| Kaltmiete |
1.550 € |
|---|---|
| Nebenkosten | + 300 € |
| Heizkosten | in Nebenkosten enthalten |
| Gesamtmiete | 1.850 € |
| Kaution o. Genossenschaftsanteile | 4950,00 |
Weiter mieten oder doch kaufen?
Wer in Miete wohnt, überweist dem Vermieter im Laufe der Jahre hohe Summen, die sich
auch in die eigenen vier Wände investieren lassen könnten.
Bausubstanz & Energieausweis
| Baujahr | 2025 |
|---|---|
| Objektzustand | Erstbezug |
| Qualität der Austattung | Gehoben |
| Heizungsart | Wärmepumpe |
| Wesentliche Energieträger | Strom |
| Energieausweis | liegt vor |
| Energieausweistyp | Bedarfsausweis |
| Energieverbrauchskennwert | 21,7 kWh/(m²*a) |
| Energieeffizienzklasse | A+ |
21,7
kWh/(m²*a)
Energieeffizienzklasse A+
- A+
- A
- B
- C
- D
- E
- F
- G
- H
- 0
- 25
- 50
- 75
- 100
- 125
- 150
- 175
- 200
- 225
- >250
Beschreibung des Objekts
Ausstattung
Glasfaseranschluss:
Glasfaser liegt im Haus und ist in der Ferienwohnung schon aktiv.
Für das Haupthaus muss noch ein Vertrag abgeschlossen werden bei dem die 2. Glasfaser aktiviert wird (Dose setzten).
Im Haus selber sind LAN Kabel in jeden Raum verlegt.
Lage
Schleiden-Gemünd, ein malerischer Ort am Rande des Nationalparks Eifel, besticht durch seine natürliche Schönheit und reizvolle Lage. Eingebettet in eine idyllische Landschaft, bietet der Ort eine einzigartige Kulisse für Erholung und Naturerlebnisse. Mit zahlreichen Freizeitmöglichkeiten und Wanderwegen in der Nähe lädt Schleiden-Gemünd dazu ein, die Schönheit der Eifel zu genießen. Die ruhige Umgebung und die Nähe zur Natur machen den Ort zu einem beliebten Rückzugsort, während eine gute Anbindung an umliegende Städte bestehen bleibt. Schleiden-Gemünd ist somit ideal für Naturliebhaber und Outdoor-Enthusiasten.
Die Infrastruktur ist gut entwickelt und bietet alle notwendigen Einrichtungen für den täglichen Bedarf. Lokale Geschäfte, Supermärkte, Restaurants und Cafés sind leicht erreichbar und sorgen für Bequemlichkeit in der Alltagsversorgung. Medizinische Einrichtungen und Bildungseinrichtungen gewährleisten eine umfassende Versorgung für Familien.
Die Nähe zu umliegenden Städten ermöglicht es, von den Annehmlichkeiten des ländlichen Lebens zu profitieren, ohne auf städtische Einrichtungen verzichten zu müssen.
Sonstige Angaben
Die Angaben zum Objekt stammen vom Vermieter. Trotz sorgfältiger Prüfung können wir für die Richtigkeit keine Gewähr übernehmen. Irrtum, Auslassungen und Zwischenvermietung bleiben vorbehalten. Die eingestellten Zeichnungen und Darstellungen können durch Vergrößerungen/ Verkleinerungen unmaßstäblich sein und sind als Handskizzen zu verstehen. Angaben zu Flächeninhalten und Kubatur sind cirka Angaben.
Wir bitten um Ihr Verständnis, dass wir aufgrund des Bestellerprinzips, welches
vom Staat für Vermietungen angeordnet wurde , in erster Linie die Interessen
der Vermieter vertreten.
Von daher müssen wir auch deren Anforderungen an die Mieter berücksichtigen.
Unsere Dienstleistung ist für Mieter unentgeltlich, daher erwarten wir von diesen
auch eine gewisse Flexibilität und Entgegenkommen bei der Terminvergabe.
Bei ernsthaftem Interesse an einer Mietimmobilie, sollte ein Termin auch u.U. während
der üblichen Arbeitszeit möglich sein.
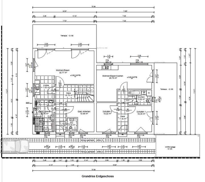
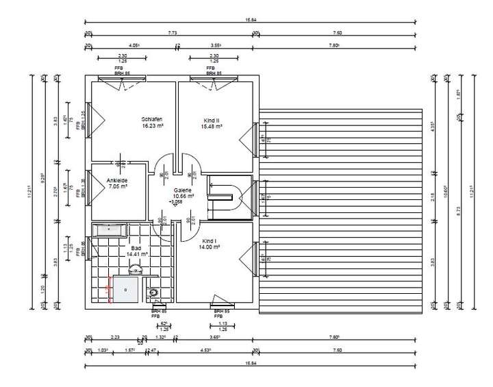
Grundriss
Grundriss Erdgeschoss
>
>
Grundriss Obergeschoss
>
>
Adresse
53937 Schleiden
Interessante Orte
Preis- und Lageinformationen
Preistrend für Bestandsimmobilien in Schleiden