Ein seltenes Juwel – mit Geschichte, Eleganz und beeindruckender Substanz
Inmitten der geschichtsträchtigen Villenkolonie Babelsberg, wo einst Diplomaten, Bankiers und Intellektuelle residierten, erhebt sich diese prachtvolle Landhausvilla aus dem Jahre 1910 – einst Sommersitz des Bankiers Frank Urbig. Auch Kunsthistoriker zählten zu den Persönlichkeiten dieser aussergewöhnlichen Nachbarschaft.
Erbaut um 1910 inmitten der renommierten Villenkolonie Babelsberg, gehört dieses herrschaftliche Anwesen zu den historischen Juwelen Potsdams. Gekrönt von einem imposanten Mansarddach mit klassischer Linienführung, verleiht das Dach dem Gebäude eine herausragende Präsenz – ein prägendes Merkmal der Gründerzeit. Die behutsam aufgearbeitete, historische Holztreppe betont den authentischen Charakter der Architektur.
Das großzügige Grundstück von ca. 1.314 m² begeistert durch eine liebevoll gestaltete Gartenlandschaft mit einem zentralen Springbrunnen – eine grüne Oase mit stimmungsvoller Ausstrahlung. Die Wohnfläche von rund 323 m² verteilt sich auf neun großzügige Zimmer. In den oberen Etagen befinden sich sechs lichtdurchflutete Schlaf- und Arbeitsräume, ein Ankleidezimmer sowie zwei neue Bäder nebst Wellness-Bereich.
Das Erdgeschoss ist geprägt von einem weitläufigen Wohnbereich mit herrschaftlichem Kamin, der fließend in den Essbereich übergeht. Direkt gegenüber liegt die exklusive bulthaup b2-Einbauküche, u.a. Bora-Kochfeld mit integriertem Abzug, hochwertigen V-Zug-Geräten und einem Weinkühlschrank – die perfekte Umgebung für kulinarische Raffinesse.
Sämtliche Fenster und Türen wurden aufwendig erneuert – in höchster Qualität nebst Sicherheitsstandard. Im Zuge dieser Arbeiten erhielt das Haus eine vernetzte Viessmann-Gasheizung, eine Grünbeck-Wasserenthärtungsanlage sowie ein hochmodernes Smart-Home-System mit steuerbarer Videoüberwachung. Eine Garage für drei große Fahrzeuge (z. B. SUVs) mit neuen, elektrischen Hörmann-Toren und eine Elektroauto-Ladestation komplettieren den zeitgemäßen Komfort.
* Historische Landhausvilla als großzügiges Familienrefugium
* Baujahr: 1910 (Sommersitz des Bankiers Frank Urbig)
* Dachform: Stilprägendes Mansarddach
* ca. 1.314 m² großes Grundstück, ca. 398 m² Wohn-/Nutzfläche
* 2019/2020 Umfassende Modernisierung
* Komplette Erneuerung sämtlicher Fenster & Türen
* Modernisierung der Heizungs- & Wassertechnik
* Hochwertige Sicherheitstechnik mit vernetztem Alarmsystem
* Luxuriöse Oberflächen & Sanitäranlagen
* Brunnenanlage zur Gartenbewässerung
* Elektrisches Zufahrtstor, Video-Gegensprechanlage
* Hochwertig ausgebauter Kellerbereich, u.a. privater Fitnessbereich & temperierter Weinkeller
Dieses Anwesen vereint in einzigartiger Weise historische Eleganz, modernste Technik und eine der feinsten Wohnlagen Potsdams. Ein wahres Meisterstück für Kenner und Liebhaber klassischer Villenarchitektur mit Anspruch auf Exklusivität, Privatsphäre und stilvolle Repräsentanz.
Eindrucksvolles Anwesen in der historischen Villenkolonie Babelsberg
14482 Potsdam
Die vollständige Adresse der Immobilie erhalten Sie vom Anbieter.
Auf Karte anzeigen
Die vollständige Adresse der Immobilie erhalten Sie vom Anbieter.
Finanzierungszertifikat
In nur zwei Minuten zu Ihrem persönlichen Finanzierungszertifkat.
Infos
| Haustyp | Villa |
|---|---|
| Etagenzahl | 3 |
| Wohnfläche ca. | 323 m2 |
| Nutzfläche | 398 m2 |
| Grundstücksfläche | 1.314 m2 |
| Zimmer | 9 |
| Schlafzimmer | 6 |
| Badezimmer | 2 |
| Garage/Stellplatz | Garage |
| Anzahl Garage/Stellplatz | 3 |
Kosten
| Kaufpreis |
3.470.000 € |
|---|---|
| Provision |
3.57 % inkl. MwSt. Bei Abschluss eines notariellen Kaufvertrages ist eine Käuferprovision vom Käufer in Höhe von 3.57 % inkl. MwSt. aus dem Kaufpreis fällig. |
Finanzierungsrechner:
Kaufpreis:
600.000 €
Eigenkapital:
600.000 €
Monatliche Rate
0 €
Effektiver Jahreszins
0 %
Sollzinsbindung
10 Jahre
Bausubstanz & Energieausweis
| Baujahr | 1910 |
|---|---|
| Letzte Sanierung | 2020 |
| Objektzustand | Modernisiert |
| Qualität der Austattung | Luxus |
| Energieausweis | liegt zur Besichtigung vor |
Beschreibung des Objekts
Ausstattung
* Ein seltenes Juwel – mit Geschichte, Eleganz und beeindruckender Substanz
* Historische Landhausvilla als großzügiges Familienrefugium
* Baujahr: 1910 (Sommersitz des Bankiers Frank Urbig)
* Dachform: Stilprägendes Mansarddach
* ca. 1.314 m² großes Grundstück
* ca. 323 m² Wohnfläche, ca. 398 m² Nutzfläche
* Sonnenterrasse & BBQ Terrasse im Erdgeschoss
* 9 großzügige Zimmer / 5-6 Schlafzimmer & 2 Bäder im 1 OG. und DG.
* Großzügiger Wohnbereich mit Kamin vis a vis Essbereich Fine Dining
* Exklusive bulthaup-Küche b2, nebst Geräte u.a. V-Zug und Bora, integrierter Weinkühlschrank
* Fußbodenheizung u.a. Bäder
* Liebevoll gepflegte Gartenlandschaft, eleganter Springbrunnen
* Brunnenanlage für automatische Gartenbewässerung
* Garagenstellplätze für 3 Fahrzeuge (SUV-tauglich) Fläche ca. 66 m²
* Ladestation für Elektrofahrzeuge vorhanden
* 2019/2020 Umfassende Modernisierung
* Klimaanlage im ersten Obergeschoss
* Hochwertiger Parkettboden in Wohnräumen
* Komplette Erneuerung sämtlicher Fenster & Türen
* Luxuriöse Oberflächen & Sanitäranlagen
* Modernisierung der Heizungs- & Wassertechnik
* Hochwertige Sicherheitstechnik mit vernetztem Alarmsystem
* Elektrisches Zufahrtstor, Video-Gegensprechanlage
Lage
Potsdam, die rund 190.000 Einwohner zählende Landeshauptstadt Brandenburgs, gilt als eine der kulturell und architektonisch bedeutendsten Städte Deutschlands. Als UNESCO-Weltkulturerbe beeindruckt sie mit einem einzigartigen Zusammenspiel aus barocker Stadtarchitektur, prachtvollen Schlössern, weitläufigen Parks und hochkarätigen Kultureinrichtungen. Zugleich ist Potsdam ein dynamischer Wirtschafts- und Wissenschaftsstandort mit wachsender internationaler Bedeutung.
Die Landhausvilla befindet sich in der renommierten Villenkolonie Neubabelsberg, einer der exklusivsten Wohnlagen Potsdams. Umgeben von historischer Architektur und einer traditionsreichen Nachbarschaft – darunter der einstige Sommersitz des Bankiers Frank Urbig, sowie Villen historischer Persönlichkeiten wie Otto Casper und Friedrich Sarre – verbindet dieser Standort Prestige mit Geschichte. Der Stadtteil Babelsberg steht für kulturelle Strahlkraft, filmhistorische Bedeutung und höchste Lebensqualität. Diese exklusive Villenkolonie wurde um 1900 als Refugium des gehobenen Berliner Bürgertums geschaffen und liegt eingebettet zwischen dem Griebnitzsee und dem Park Babelsberg. Die prachtvollen Villen und großzügigen Grundstücke prägen bis heute das elegante Erscheinungsbild dieser begehrten Wohnlage.
Verkehrstechnisch ist Neubabelsberg ideal angebunden. Die Berliner Stadtgrenze liegt in unmittelbarer Nähe, die City West sowie der Grunewald sind schnell erreicht. Über die Autobahnen A115 und A10, aber auch mit S-Bahn, Regionalexpress und Bus ist eine hervorragende Erreichbarkeit innerhalb der Metropolregion Berlin-Brandenburg gewährleistet. Zum Flughafen Berlin-Brandenburg (BER) sind es ca. 30 Autominuten. Eine Direktverbindung per Regionalbahn führt von Potsdam in nur wenigen Minuten bis zum Berliner Hauptbahnhof.
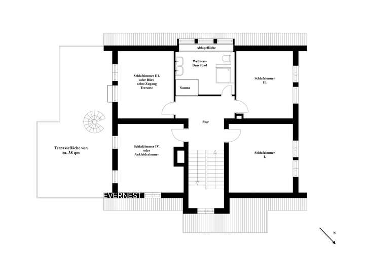
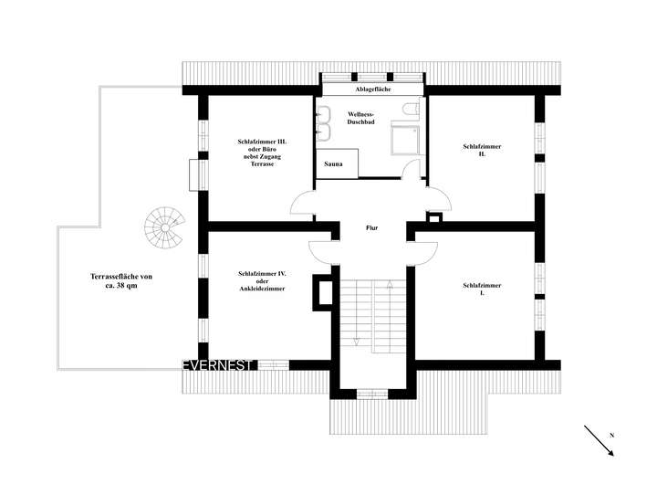
Grundriss
Erdgeschoss
>
>
Obergeschoss
>
>
Dachgeschoss
>
>
Kellergeschoss
>
>
Lageplan
>
>
Adresse
14482 Potsdam
Interessante Orte
Preis- und Lageinformationen
Preistrend für Bestandsimmobilien in Babelsberg Nord