Dieses außergewöhnliche Anwesen vereint historischen Charme mit naturnahem Wohnen und viel Raum für individuelle Entfaltung. Der großzügige Resthof wurde ursprünglich im Jahr 1861 erbaut und befindet sich auf einem beeindruckenden Grundstück von insgesamt ca. 6.854 m² – mit Blick ins Grüne und liebevoll angelegten Außenanlagen.
Ein Teil des Grundstücks ist als Gartenland gestaltet und bietet mit seiner großzügigen Terrasse, einem idyllischen Teich und zahlreichen alten Bäumen ein unvergleichliches Naturerlebnis. Zusätzlich gibt es einen gepflegten Obstgarten mit einem gemütlichen Gartenhaus sowie eine separate Schafskoppel mit Stall, die derzeit von zwei Schafen bewohnt wird.
In den letzten Jahrzehnten wurde das Haus von den Eigentümern mit viel Sorgfalt instand gehalten. Dabei wurde der ursprüngliche Charakter des Hauses stets bewahrt. Das Reetdach wurde etappenweise erneuert, zuletzt im Jahr 2023. Die Verteilung der Elektrik wurde Anfang 2025 überarbeitet.
Für modernen Wohnkomfort sorgen eine Fußbodenheizung im Wohnzimmer, Esszimmer, Bad und Gäste-WC sowie ein im Jahr 2013 vollständig saniertes Vollbad. Auch das Gäste-WC wurde im Zuge der letzten Jahre modernisiert. Die Beheizung erfolgt über eine Ölheizung, die in Kombination mit einer Wärmepumpe für die Warmwasserbereitung arbeitet. Dank der niedrigen Vorlauftemperatur bietet das Haus gute Voraussetzungen für einen späteren Umstieg auf eine moderne Wärmepumpenheizung.
Ein Glasfaseranschluss ist vorhanden, ebenso wie ein Brunnen zur kosteneffizienten Gartenbewässerung.
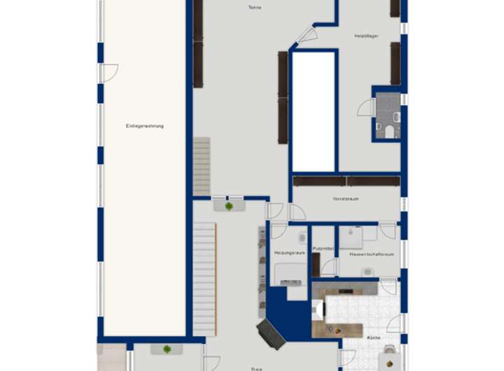
Hervorzuheben ist die separate Einliegerwohnung mit eigenem Eingang, die seit über 20 Jahren an einen zuverlässigen Mieter vermietet ist. Das Mietverhältnis ist von einem guten, respektvollen Miteinander geprägt. Die monatliche Warmmiete beträgt aktuell 465 €, Nebenkostenabrechnungen wurden nicht erstellt.
Zum Anwesen gehören außerdem eine große, charakteristische Tenne mit diversen Nebenräumen sowie ein großzügiger Heuboden, der potenziell als zusätzliche Ausbaureserve dienen könnte.
Dieses Haus eignet sich ideal für Menschen mit Sinn für das Besondere, die das ländliche Leben in einem stilvoll erhaltenen historischen Gebäude genießen und weiterführen möchten.
Reetgedecktes Traumhaus mit großem Grundstück und Einliegerwohnung – Stilvoll & Besonders
25582 Kaaks
Die vollständige Adresse der Immobilie erhalten Sie vom Anbieter.
Auf Karte anzeigen
Die vollständige Adresse der Immobilie erhalten Sie vom Anbieter.
Finanzierungszertifikat
In nur zwei Minuten zu Ihrem persönlichen Finanzierungszertifkat.
Infos
| Wohnfläche ca. | 210 m2 |
|---|---|
| Nutzfläche | 223 m2 |
| Grundstücksfläche | 6.854 m2 |
| Zimmer | 6 |
| Badezimmer | 2 |
| Garage/Stellplatz | Carport |
Kosten
| Kaufpreis |
695.000 € |
|---|---|
| Provision |
3,57 % inkl. ges. MwSt.* |
Finanzierungsrechner:
Kaufpreis:
600.000 €
Eigenkapital:
600.000 €
Monatliche Rate
0 €
Effektiver Jahreszins
0 %
Sollzinsbindung
10 Jahre
Bausubstanz & Energieausweis
| Baujahr | 1861 |
|---|---|
| Objektzustand | Gepflegt |
| Qualität der Austattung | Gehoben |
| Heizungsart | Zentralheizung |
| Wesentliche Energieträger | Öl |
| Energieausweis | liegt vor |
| Energieausweistyp | Bedarfsausweis |
| Energieverbrauchskennwert | 311,1 kWh/(m²*a) |
| Energieeffizienzklasse | H |
311,1
kWh/(m²*a)
Energieeffizienzklasse H
- A+
- A
- B
- C
- D
- E
- F
- G
- H
- 0
- 25
- 50
- 75
- 100
- 125
- 150
- 175
- 200
- 225
- >250
Beschreibung des Objekts
Lage
Die Gemeinde Kaaks mit ihren Ortsteilen Eversdorf und Kaaksburg liegt in der landschaftlich reizvollen Steinburger Geest, nördlich von Itzehoe. Historisch verlief hier der Ochsenweg, ein alter Handels- und Viehtriebpfad von der Westküste bis zum Itzehoer Ochsenmarkt. Heute sorgt die nahegelegene Autobahn A23 für eine sehr gute Verkehrsanbindung: Hamburg ist in ca. 45 Minuten erreichbar, das beliebte Nordseebad St. Peter-Ording liegt etwa eine Stunde entfernt.
Zahlreiche Wander- und Radwege durch Wälder und Moorlandschaften sowie ein großzügiger Sport- und Freizeitplatz mit Pavillon bieten den rund 450 Einwohnern Möglichkeiten zur Naherholung. Die Dorfgemeinschaft ist aktiv und familiär geprägt: Ein Kinderfestausschuss organisiert regelmäßig Veranstaltungen für Kinder und Jugendliche, während die traditionsreiche Freiwillige Feuerwehr – gegründet im Jahr 1889 – das kulturelle Leben maßgeblich mitgestaltet.
Auch für Gewerbetreibende und Freiberufler bietet Kaaks ein attraktives Umfeld. So haben sich unter anderem eine Tankstelle mit Waschanlage und Imbiss, das gehobene Restaurant „Brüdigams Wildwechsel“ mit sechs Gästezimmern sowie selbstständig Tätige aus kreativen und medizinischen Bereichen hier etabliert. Der dörfliche Charakter wird durch zahlreiche landwirtschaftliche Betriebe, vor allem mit Milchviehhaltung, lebendig gehalten.
Sonstige Angaben
*3,57 % inkl. ges. MwSt. verdient und fällig bei notarieller Beurkundung. Wir haben einen provisionspflichtigen Maklervertrag in gleicher Höhe (3,57 %) mit dem Verkäufer abgeschlossen.
Grundriss
Dachgeschoss
>
>
Erdgeschoss
>
>
Adresse
25582 Kaaks
Interessante Orte
Preis- und Lageinformationen
Preistrend für Bestandsimmobilien in Kaaks