Willkommen in Ihrem neuen Zuhause! Dieses attraktive Reihenmittelhaus aus dem Baujahr 1983 bietet Ihnen auf großzügigen 115 m² Wohnfläche alles, was das Herz begehrt. Mit insgesamt fünf Zimmern eignet sich die Immobilie ideal für Familien oder Paare, die viel Platz und eine angenehme Wohnatmosphäre suchen.
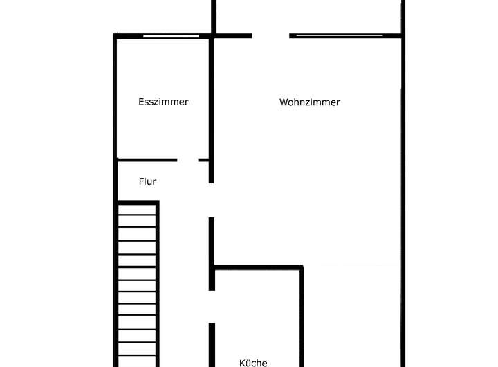
Das Haus überzeugt durch eine durchdachte Raumaufteilung. Im Erdgeschoss befindet sich eine Einbauküche ist perfekt ausgestattet und bietet ausreichend Platz für kulinarische Abenteuer. Vom Wohn-Esszimmer, das mit einem Kamin versehen ist, gelangen Sie über eine ca. 15m² große Terrasse in den eingefriedeten 311 m²großen Garten, der mit einem Pool versehen wurde. Ein weiteres Zimmer befindet sich im Erdgeschoss. Auch ein Gäste-WC ist vorhanden.
Im Obergeschoss finden Sie weitere Zimmer, die individuell genutzt werden können – sei es als Kinderzimmer, Arbeitszimmer oder Gästezimmer. Auch ein Tageslichtbad mit Badewanne ist im Obergeschoss vorhanden. Ein Balkon zur Hofseite bietet Ihnen einen herrlichen Ausblick auf den Dobbertiner See und ist der ideale Ort, um den Tag ausklingen zu lassen.
Das Haus ist voll unterkellert, was Ihnen zusätzlichen Stauraum und vielseitige Nutzungsmöglichkeiten bietet. Ob als Hobbyraum, Werkstatt oder Abstellfläche – hier sind Ihrer Kreativität keine Grenzen gesetzt. Eine großzügige Garage, mit angebauten Lagerfläche, hinter dem Grundstück rundet das Angebot ab und sorgt für einen sicheren Stellplatz Ihres Fahrzeugs.
Dieses Reihenmittelhaus vereint Komfort, Funktionalität und eine angenehme Wohnatmosphäre. Lassen Sie sich von den Vorzügen dieser Immobilie begeistern.
Attraktives Reihenmittelhaus in Dobbertin – Komfort und Charme vereint
19399 Dobbertin
Die vollständige Adresse der Immobilie erhalten Sie vom Anbieter.
Auf Karte anzeigen
Die vollständige Adresse der Immobilie erhalten Sie vom Anbieter.
Finanzierungszertifikat
In nur zwei Minuten zu Ihrem persönlichen Finanzierungszertifkat.
Infos
| Haustyp | Reihenmittelhaus |
|---|---|
| Etagenzahl | 2 |
| Wohnfläche ca. | 115 m2 |
| Nutzfläche | 15 m2 |
| Grundstücksfläche | 389 m2 |
| Bezugsfrei ab | Sofort |
| Zimmer | 5 |
| Schlafzimmer | 3 |
| Badezimmer | 2 |
| Anzahl Garage/Stellplatz | 3 |
Kosten
| Kaufpreis |
140.000 € |
|---|---|
| Provision |
3.57 % inkl. gesetzl. MwSt. |
Finanzierungsrechner:
Kaufpreis:
600.000 €
Eigenkapital:
600.000 €
Monatliche Rate
0 €
Effektiver Jahreszins
0 %
Sollzinsbindung
10 Jahre
Bausubstanz & Energieausweis
| Baujahr | 1983 |
|---|---|
| Letzte Sanierung | 2022 |
| Heizungsart | Zentralheizung |
| Wesentliche Energieträger | Öl |
| Energieausweis | liegt vor |
| Energieausweistyp | Bedarfsausweis |
| Energieeffizienzklasse | E |
Energieeffizienzklasse E
- A+
- A
- B
- C
- D
- E
- F
- G
- H
- 0
- 25
- 50
- 75
- 100
- 125
- 150
- 175
- 200
- 225
- >250
Beschreibung des Objekts
Ausstattung
Einbauschränke
Arbeitszimmer
Einbauküche
Blick ins Grüne
Seeblick
Fliesen
Teppich
PVC
Vollunterkellert
Kamin
Lage
Eingebettet in die malerische Landschaft Mecklenburg-Vorpommerns, bietet die exklusive Lage in der Lindenstraße 5d in Dobbertin ein unvergleichliches Wohnerlebnis für anspruchsvolle Käufer. Diese charmante Ortschaft ist bekannt für ihre Ruhe und natürliche Schönheit. Die Nachbarschaft besticht durch ihre idyllische Lage am Dobbertiner See, der nur einen kurzen Spaziergang entfernt liegt und zahlreiche Freizeitmöglichkeiten wie Segeln und Angeln bietet.
Die Infrastruktur von Dobbertin überzeugt durch ihre Nähe zu wichtigen Verkehrsanbindungen, Einkaufsmöglichkeiten, Ärzten, Schulen und Kindergärten. Die nächstgrößere Stadt Goldberg erreichen Sie in ca. 9 Autominuten. Die Stadt Schwerin, mit ihren kulturellen und historischen Attraktionen, ist in nur etwa 45 Minuten mit dem Auto erreichbar. Für internationale Reisen liegt der Flughafen Rostock-Laage nur eine Stunde entfernt, was die Verbindung zu globalen Zielen erleichtert.
Kulturell Interessierte werden vom historischen Kloster Dobbertin begeistert sein, dass nur wenige Minuten entfernt liegt und regelmäßig kulturelle Veranstaltungen und Führungen anbietet. Die Umgebung ist reich an Wander- und Radwegen, die durch die atemberaubende Natur führen und Erholung und Abenteuer gleichermaßen bieten.
Sonstige Angaben
Der Makler-Vertrag mit uns und/oder unserem Beauftragten kommt durch die Beauftragung der Maklertätigkeit in Textform (z.B. E-Mail mit Bestätigung der gewollten Inanspruchnahme) zustande. Die Höhe der Courtage richtet sich nach den ab dem 23.12.2020 in Kraft getretenen gesetzlichen Regelungen zur Teilung der Maklercourtage. Hiernach wird die Courtage regelmäßig für beide Parteien (Eigentümer und Käufer) jeweils in Höhe von 3 % zuzüglich Umsatzsteuer in jeweils geltender Höhe, derzeit also insgesamt 7,14 % des Kaufpreises einschließlich Umsatzsteuer bei notariellem Vertragsabschluss verdient und fällig. Die Höhe der Bruttocourtage unterliegt einer Anpassung bei Steuersatzänderung. […] Grunderwerbssteuer, Notar- und Gerichtskosten trägt der Käufer.
Grundriss
Erdgeschoss
>
>
Obergeschoss
>
>
Kellergeschoss
>
>
Adresse
19399 Dobbertin
Interessante Orte
Preis- und Lageinformationen
Preistrend für Bestandsimmobilien in Dobbertin