Dieses moderne Reihenhaus im Neubaugebiet „Am Rothenborn“ in Landstuhl bietet mit ca. 220 m² Wohnfläche und einer klar strukturierten Raumaufteilung, ideal für Familien oder eine hochwertige und nachhaltige Vermietung zum Beispiel an Angehörige der US-Streitkräfte.
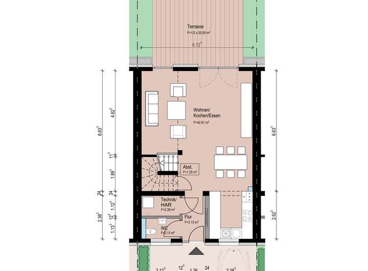
Auf dem Eigentumsgrundstück entsteht eine Reihenhauszeile mit vier baugleichen Häusern. Im Erdgeschoss liegt ein Gäste-WC, der Hausanschlussraum und der großzügige Wohn- und Essbereich. Dieser öffnet sich zur Terrasse und dem Gartenanteil. Im 1. Obergeschoss befindet sich der Elternbereich mit Schlafzimmer, Bad en Suite und Ankleide. Im 2. Obergeschoss stehen mehrere Schlafzimmer, ein weiteres großes Bad und ein Hauswirtschaftsraum zur Verfügung. Das Staffelgeschoss bietet ein vielseitig nutzbares Studio mit Zugang zur südlich ausgerichteten Dachterrasse. Die Raumaufteilung bietet ausreichend Platz für größere Haushalte oder Wohngemeinschaften mit Anspruch. Vor dem Haus stehen zwei Stellplätze zur Verfügung.
Die Häuser werden nach dem neuesten Stand der Technik und Energiestandard erbaut, verfügen über eine effiziente Fußbodenheizung mit Einzelraumsteuerung und werden über das Nahwärmenetz der Pfalzwerke beheizt. Die Außenwände bestehen aus einem Kalksandsteinmauerwerk, versehen mit einem hochwertigen Wärmedämmverbundsystem. Die Kunststoff-Fenster mit dreifacher Wärmeschutzverglasung sind mit elektrische Kunststoffrollläden mit ausgestattet. Im Innenbereich sind aller Räume im Erdgeschoss, die Bäder und Hauswirtschaftsräume gefliest, während Schlafzimmer, Ankleide und Flure mit Eichenparkett oder Vinyl-Designboden ausgestattet sind. Die Sanitärobjekte stammen von Villeroy & Boch und die Armaturen von Hansgrohe.
Individuelle Änderungen an Grundriss und Ausstattung sind nach Absprache möglich.
Für Kapitalanleger besonders interessant: Bei Vermietung erfüllt das Objekt die Voraussetzungen für die degressive AfA gemäß §7 EStG i.H.v. 5 % im Jahr, oder die reguläre Neubau-Abschreibung von 3 % im Jahr.
Neubau-AfA nutzen! Schlüsselfertiges Reihenhaus in attraktiver Lage!
66849 Landstuhl
Die vollständige Adresse der Immobilie erhalten Sie vom Anbieter.
Auf Karte anzeigen
Die vollständige Adresse der Immobilie erhalten Sie vom Anbieter.
Finanzierungszertifikat
In nur zwei Minuten zu Ihrem persönlichen Finanzierungszertifkat.
Infos
| Haustyp | Reihenmittelhaus |
|---|---|
| Etagenzahl | 4 |
| Wohnfläche ca. | 220 m2 |
| Grundstücksfläche | 189 m2 |
| Zimmer | 6 |
| Schlafzimmer | 4 |
| Badezimmer | 2 |
| Anzahl Garage/Stellplatz | 2 |
Kosten
| Kaufpreis |
689.800 € |
|---|---|
| Provision |
2.0 % inkl. gesetzl. MwSt. |
Finanzierungsrechner:
Kaufpreis:
600.000 €
Eigenkapital:
600.000 €
Monatliche Rate
0 €
Effektiver Jahreszins
0 %
Sollzinsbindung
10 Jahre
Bausubstanz & Energieausweis
| Baujahr | 2027 |
|---|---|
| Heizungsart | Fußbodenheizung |
| Wesentliche Energieträger | Fernwärme |
| Energieausweis | liegt vor |
| Energieausweistyp | Bedarfsausweis |
| Energieverbrauchskennwert | 71,0 kWh/(m²*a) |
| Energieeffizienzklasse | B |
71,0
kWh/(m²*a)
Energieeffizienzklasse B
- A+
- A
- B
- C
- D
- E
- F
- G
- H
- 0
- 25
- 50
- 75
- 100
- 125
- 150
- 175
- 200
- 225
- >250
Beschreibung des Objekts
Ausstattung
Fliesen
Parkett
PVC
Lage
Das Reihenhaus befindet sich im Neubaugebiet „Am Rothenborn“ in Landstuhl, einer gefragten, naturnahen Wohnlage mit moderner Umgebung und guter Infrastruktur. Die Innenstadt, Einkaufsmöglichkeiten, Schulen und Kindergärten sind schnell erreichbar. Ebenso besteht eine gute Anbindung an die B40 sowie die A6 in Richtung Kaiserslautern und Saarbrücken.
Landstuhl ist durch das US-Militärkrankenhaus sowie die Nähe zur Air Base ein wirtschaftlich stabiler Standort – auch für die Vermietung an internationale Mietinteressenten gut geeignet.
Sonstige Angaben
Der Makler-Vertrag mit uns und/oder unserem Beauftragten kommt durch die Beauftragung der Maklertätigkeit in Textform (z.B. E-Mail mit Bestätigung der gewollten Inanspruchnahme) zustande. Die Höhe der Courtage richtet sich nach den ab dem 23.12.2020 in Kraft getretenen gesetzlichen Regelungen zur Teilung der Maklercourtage. Hiernach wird die Courtage regelmäßig für beide Parteien (Eigentümer und Käufer) jeweils in Höhe von 2 % zuzüglich Umsatzsteuer in jeweils geltender Höhe, derzeit also insgesamt 4,76 % des Kaufpreises einschließlich Umsatzsteuer bei notariellem Vertragsabschluss verdient und fällig. Die Höhe der Bruttocourtage unterliegt einer Anpassung bei Steuersatzänderung. Grunderwerbssteuer, Notar- und Gerichtskosten trägt der Käufer.
Grundriss
Erdgeschoss
>
>
1. Obergeschoss
>
>
2. Obergeschoss
>
>
Dachgeschoss
>
>
Adresse
66849 Landstuhl
Interessante Orte
Preis- und Lageinformationen
Preistrend für Bestandsimmobilien in Landstuhl