Ihr perfektes Zuhause für die Familie, das eine idyllische Umgebung mit modernem Wohnkomfort vereint.
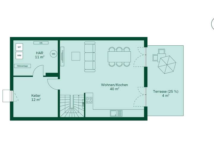
Willkommen in Ihrem neuen Zuhause. Im Untergeschoss genießen Sie einen großzügigen Wohn- und Küchenbereich, ideal für gesellige Abende mit der Familie. Der Keller bietet hier zusätzlichen Stauraum und der angrenzende Hauswirtschaftsraum sorgt für praktische Ordnung. Auf der Terrasse können Sie sonnige Stunden genießen und Grillabende mit Ihren Gästen veranstalten.
Im Erdgeschoss finden Sie zwei gemütliche Kinder- und ein Arbeitszimmer, perfekt für Home Office oder Ihr Hobby. Eines der beiden Bäder befindet sich neben dem Eingang. Die Garage bietet Schutz für Ihr Auto. Im Obergeschoss erwarten Sie ein Schlafzimmer mit Ankleide und ein weiteres modernes Bad, wodurch Ihr Zuhause elegant vollendet wird.
Familienfreundliches Zuhause auf drei Etagen
42489 Wülfrath
Die vollständige Adresse der Immobilie erhalten Sie vom Anbieter.
Auf Karte anzeigen
Die vollständige Adresse der Immobilie erhalten Sie vom Anbieter.
Finanzierungszertifikat
In nur zwei Minuten zu Ihrem persönlichen Finanzierungszertifkat.
Infos
| Haustyp | Doppelhaushaelfte |
|---|---|
| Wohnfläche ca. | 135 m2 |
| Nutzfläche | 38,87 m2 |
| Grundstücksfläche | 272 m2 |
| Bezugsfrei ab | 2026 |
| Zimmer | 6 |
| Schlafzimmer | 3 |
| Badezimmer | 2 |
| Garage/Stellplatz | Garage |
Kosten
| Kaufpreis |
584.900 € |
|---|---|
| Provision | Nein |
Finanzierungsrechner:
Kaufpreis:
600.000 €
Eigenkapital:
600.000 €
Monatliche Rate
0 €
Effektiver Jahreszins
0 %
Sollzinsbindung
10 Jahre
Bausubstanz & Energieausweis
| Objektzustand | Erstbezug |
|---|---|
| Qualität der Austattung | Gehoben |
| Heizungsart | Fußbodenheizung |
Beschreibung des Objekts
Ausstattung
- Wärmepumpe
- Terrasse und Garten
- Außenstellplatz und Garage
- Fußbodenheizung
- bodengleiche Dusche
- Badewanne
- bodentiefe Fenster
- Handtuchheizkörper
- elektrische Rollläden
Lage
Hier wohnen Sie familienfreundlich mit kurzen Wegen im Alltag und in die Natur: Zur Kita sind es 3 Minuten, zu Grundschule und Gymnasium 10 Minuten zu Fuß. Altstadt, Supermärkte, Hallenbad; alles befindet sich in der Nähe. Nur 10 Minuten zum Stadtpark und noch schneller zur Mettmanner Quelle.
Adresse
42489 Wülfrath
Interessante Orte
Preis- und Lageinformationen
Preistrend für Bestandsimmobilien in Wülfrath