In diesem modernen Familienzuhause haben Sie jede Menge Platz, sich innen einzurichten und außen die frische Luft zu genießen.
Willkommen in Ihrem neuen Zuhause. Im Untergeschoss finden Sie eine praktische Garage und einen geräumigen Keller. Das Erdgeschoss bietet eine offene Küche, die nahtlos in den Wohn- und Essbereich übergeht, perfekt für gemütliche Abende mit Freunden. Die angrenzende Terrasse lädt zum Entspannen im Freien ein.
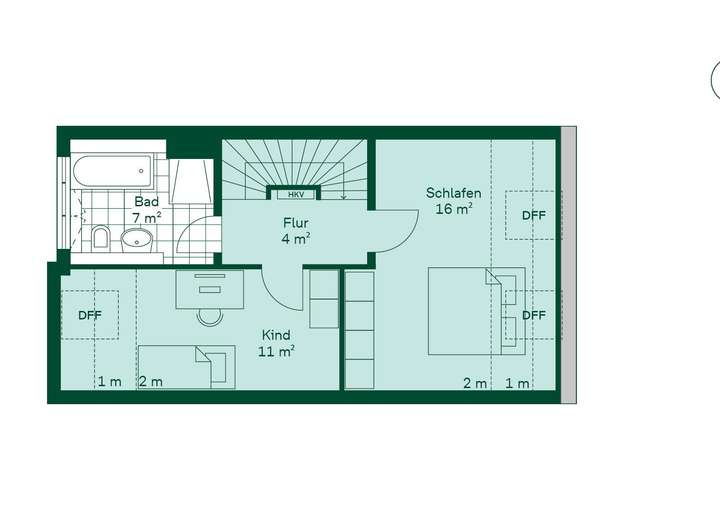
Im Obergeschoss befinden sich zwei Räume, die ideal als Schlaf- und Kinderzimmer geeignet sind, ergänzt durch ein modernes Bad mit Wanne und Dusche. Das Dachgeschoss bietet ein Studio, das wunderbar für Ihr Home Office oder als Hobbyraum eingerichtet werden kann. Ein Zuhause, das Komfort und Funktionalität vereint.
Stadthaus mit Keller und Terrasse
42489 Wülfrath
Die vollständige Adresse der Immobilie erhalten Sie vom Anbieter.
Auf Karte anzeigen
Die vollständige Adresse der Immobilie erhalten Sie vom Anbieter.
Finanzierungszertifikat
In nur zwei Minuten zu Ihrem persönlichen Finanzierungszertifkat.
Infos
| Haustyp | Reihenmittelhaus |
|---|---|
| Wohnfläche ca. | 113 m2 |
| Nutzfläche | 37,89 m2 |
| Grundstücksfläche | 180 m2 |
| Bezugsfrei ab | 2026 |
| Zimmer | 4 |
| Schlafzimmer | 2 |
| Badezimmer | 1 |
| Garage/Stellplatz | Garage |
Kosten
| Kaufpreis |
529.900 € |
|---|---|
| Provision | Nein |
Finanzierungsrechner:
Kaufpreis:
600.000 €
Eigenkapital:
600.000 €
Monatliche Rate
0 €
Effektiver Jahreszins
0 %
Sollzinsbindung
10 Jahre
Bausubstanz & Energieausweis
| Objektzustand | Erstbezug |
|---|---|
| Qualität der Austattung | Gehoben |
| Heizungsart | Fußbodenheizung |
Beschreibung des Objekts
Ausstattung
- Wärmepumpe
- Terrasse und Garten
- Außenstellplatz und Garage
- Fußbodenheizung
- bodengleiche Dusche
- Badewanne
- bodentiefe Fenster
- Handtuchheizkörper
- elektrische Rollläden
Lage
Hier wohnen Sie familienfreundlich mit kurzen Wegen im Alltag und in die Natur: Zur Kita sind es 3 Minuten, zu Grundschule und Gymnasium 10 Minuten zu Fuß. Altstadt, Supermärkte, Hallenbad; alles befindet sich in der Nähe. Nur 10 Minuten zum Stadtpark und noch schneller zur Mettmanner Quelle.
Adresse
42489 Wülfrath
Interessante Orte
Preis- und Lageinformationen
Preistrend für Bestandsimmobilien in Wülfrath