Bitte beachten Sie, dass wir uns in der Zeit vom 22.12.2025 bis einschließlich 04.01.2026 in den Betriebsferien befinden. Ab dem 05.01.2026 sind wir wieder persönlich für Sie erreichbar.
Ihre Anfrage über das Kontaktformular wird weiterhin automatisch beantwortet, und das vollständige Exposé mit 360°-Tour wird Ihnen zugesendet.
Dieses freistehende und zurückgelegene Einfamilienhaus wurde 1974 in Fertigbaubauweise errichtet und um einen Ausbau des Dachgeschosses in 1980 erweitert.
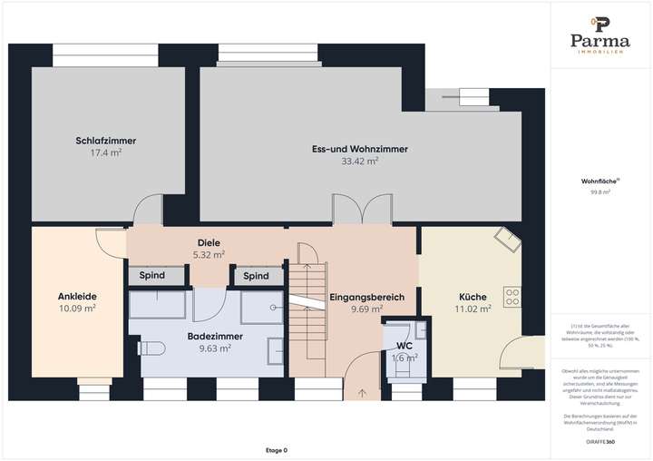
Das Erdgeschoss verfügt neben dem Eingangsbereich über ein Gäste-WC, eine Küche mit Essecke und Zugang zum Grundstück, ein offenes Ess-und Wohnzimmer mit Pellet-Kaminofen und Zugang zur Terrasse, ein Schlafzimmer, ein Ankleidezimmer, ein Tageslichtbad mit ebenerdiger Dusche und Wanne sowie ausreichend Stauraum in den vorhandenen Einbauschränken.
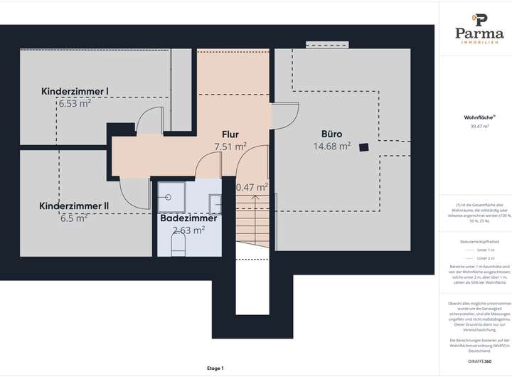
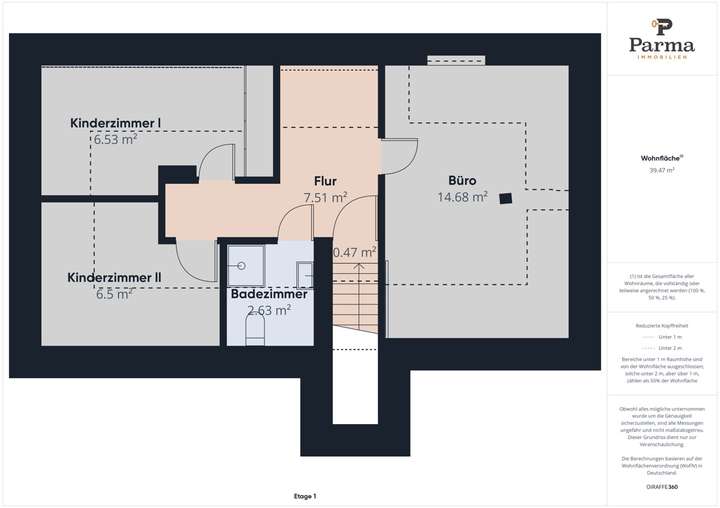
Das Dachgeschoss beherbergt neben einem Flur, ein Tageslichtbad mit Dusche, zwei Kinderzimmer und ein Büro.
Der Keller des Objekts besteht aus fünf Räumen. Darunter befinden sich unter anderem ein Vorratsraum, eine Waschküche mit Zugang in den Garten, ein Kellerraum zur individuellen Nutzung mit angrenzendem Hausanschluss-/Heizungsraum sowie ein großzügiger Hobbyraum mit Sauna.
Der großzügig angelegte Garten bietet eine gelungene Mischung aus Beet- und Wiesenfläche mit Terrassenfläche und rundet das Immobilienangebot mit einem Gerätehaus ab. Das gesamte Grundstück ist eingezäunt und über eine Toreinfahrt neben der frontal gelegenen Garage zu betreten.
Fordern Sie unverbindlich über das Kontaktformular ein Exposé sowie die 360°Tour an.
Modernisiertes Einfamilienhaus in guter Randlage von Düren-Rölsdorf
52355 Düren
Die vollständige Adresse der Immobilie erhalten Sie vom Anbieter.
Auf Karte anzeigen
Die vollständige Adresse der Immobilie erhalten Sie vom Anbieter.
Finanzierungszertifikat
In nur zwei Minuten zu Ihrem persönlichen Finanzierungszertifkat.
Infos
| Haustyp | Einfamilienhaus |
|---|---|
| Etagenzahl | 1 |
| Wohnfläche ca. | 140 m2 |
| Nutzfläche | 100 m2 |
| Grundstücksfläche | 768 m2 |
| Bezugsfrei ab | nach Vereinbarung |
| Zimmer | 6 |
| Schlafzimmer | 3 |
| Badezimmer | 2 |
Kosten
| Kaufpreis |
477.000 € |
|---|---|
| Provision |
3,57 % inkl. 19 % MwSt. |
Finanzierungsrechner:
Kaufpreis:
600.000 €
Eigenkapital:
600.000 €
Monatliche Rate
0 €
Effektiver Jahreszins
0 %
Sollzinsbindung
10 Jahre
Bausubstanz & Energieausweis
| Baujahr | 1974 |
|---|---|
| Objektzustand | Modernisiert |
| Heizungsart | Zentralheizung |
| Wesentliche Energieträger | Pelletheizung |
| Energieausweis | liegt vor |
| Energieausweistyp | Bedarfsausweis |
| Energieverbrauchskennwert | 185,9 kWh/(m²*a) |
| Energieeffizienzklasse | F |
185,9
kWh/(m²*a)
Energieeffizienzklasse F
- A+
- A
- B
- C
- D
- E
- F
- G
- H
- 0
- 25
- 50
- 75
- 100
- 125
- 150
- 175
- 200
- 225
- >250
Beschreibung des Objekts
Ausstattung
* Fertigbau (Ständerwerk) der Fa. Nordhaus auf massiv gebautem Kellergeschoss
* Bodenbeläge: Fliesen, Vinyl und Laminat
* ca. 140 m² Wohnfläche
* ca. 100 m² Nutzfläche
* Tageslichtbad mit Dusche, Wanne und WC im EG
* Tageslichtbad mit Dusche und WC im DG
* 2-fach verglaste Kunststofffenster Bj. 2012 und 2020
* elektrisch steuerbare Rollläden im EG
* Solarbetriebene Rollläden im DG
* PV-Anlage mit 4,68 kWp Bj. 2013 mit Einspeisungsvertrag (Ende 2033)
* Thermische Voltaikanlage auf Garagendach Bj. 2013
* Erneuerung Gegensprechanlage Bj. 2013
* Pellet-Heizung mit Warmwasserspeicher Fa. Viessmann Bj. 2016
* Erneuerung Garagentor (Sektionaltor) Bj. 2020
* Überarbeitung der Elektrik Bj. 2020
* Umfangreiche Sanierungen in der Immobilie Bj. 2020
* Einbauküche (ohne Kühlschrank) Bj. 2006/2020
* Pellet-Kaminofen Fa. Rika im Wohnzimmer Bj. 2021
* gepflegtes Grundstück mit Gartengerätehaus
* Terrasse mit elektrisch steuerbarer Markise
* Lärmschutzwand
und vieles mehr....
Lage
Rölsdorf ist mit etwas mehr als 2.300 Einwohnern ein Stadtteil der Stadt Düren im Kreis Düren. Alle erforderlichen Geschäfte des täglichen Bedarfs wie Bäckerei, Supermärkte und Apotheken sind nur wenige Minuten entfernt und bequem zu erreichen. In unmittelbarer Nähe befinden sich ein Spielplatz, ein Kindergarten und der Volkspark.
Es gibt zwei Busverbindungen nach Düren über die Dürener Kreisbahn. Der Hauptbahnhof Düren liegt ca. drei Kilometer entfernt und bietet Anschluss nach Köln, Aachen, Heimbach/Eifel und Linnich. Die Autobahn A4 in Richtung Köln-Aachen ist etwa neun Kilometer von Rölsdorf entfernt. Das städtische Radverkehrsnetz ermöglicht eine gute Verbindung zu den benachbarten Stadtteilen Lendersdorf, Birgel, Gürzenich und dem Gesamtgebiet Düren.
Sonstige Angaben
Bei Fragen stehen wir Ihnen gerne zur Verfügung. Bitte nehmen
Sie Kontakt über das Kontaktformular auf.
Jacqueline Henot
Immobilienmaklerin
Parma Immobilien
Monschauer Straße 64
52355 Düren
Kontakt
Telefon: +49 2421 9748688
Mobil: +4915731935118
E-Mail: info@parmaimmobilien.de
www.parmaimmobilien.de
Grundriss
Erdgeschoss
>
>
Dachgeschoss
>
>
Kellergeschoss
>
>
Adresse
52355 Düren
Interessante Orte
Preis- und Lageinformationen
Preistrend für Bestandsimmobilien in Düren