„Vorort“ Merten - in Bornheim - entstehen in Kürze mit dem Neubauprojekt „Mertener Mühle - Schöner Leben im Rheinland“ der EHP Immobiliengruppe GmbH 33 Häuser zum Kauf, davon 30 Doppelhaushälften und drei freistehende Einfamilienhäuser auf Erbbaurechtsgrundstücken.
Sie haben die Wahl zwischen den beiden Haustypen Cubic 160 mit Keller oder dem Cubic 135 ohne Keller.
Dürfen wir Ihnen Ihr zukünftiges Haus vorstellen?
Im Haustyp Cubic 160 ist viel Platz auch für die große Familie - denn die unterkellerten Doppelhaushälften mit Flachfach und mit sechs Zimmern bieten jede Menge Raum für das harmonische Zusammenleben unter einem Dach.
Der Haustyp Cubic 135 überzeugt durch fünf Zimmer, verteilt auf insgesamt drei Ebenen, mit genug Platz für die vier- bis fünfköpfige Familie.
Die großzügig geschnittenen Doppelhaushälften mit Flachdach kommen auf eine Gesamtfläche von 202 m² bzw. 150 m², davon 160 m² bzw. 135 m² Wohnfläche. Die Grundstücksgrößen variieren dabei von ca. 300 bis 340 m² .
Ihr neues Heim betreten Sie durch den überdachten Eingang und erreichen von dort aus das Erdgeschoss mit Diele, Gäste-WC, Esszimmer mit Küche und das großzügige Wohnzimmer, dem Herzstück des Hauses. Über dieses gelangen Sie zur Terrasse und in den großen Garten – der perfekte Ort für Grillabende mit Ihren Liebsten oder ein Familienfrühstück am Sonntagmorgen. In der oberen Etage befinden sich drei Schlafzimmer – zwei Kinderzimmer sowie das Elternschlafzimmer mit begehbarer Ankleide – und ein großes Tageslicht-Badezimmer mit Badewanne und Dusche. Eine Etage höher findet sich das geräumige und ausgebaute Dachgeschoss, das einen idealen Rückzugsort für beispielsweise das Hobby oder das Arbeiten von zu Hause bietet.
Der Haustyp Cubic 160 ist voll unterkellert - ein großzügiger Abstell-/Hauswirtschafts-/ Haustechnikraum machen das Leben pratktisch.
Ein wohnlich ausgebautes Gäste- oder Arbeitszimmer mit Tageslicht bieten genug Platz für Ihre Wohnträume.
Beim Haustyp Cubic 135 befindet sich die Haustechnik im Hausanschlussraum im Eingangsbereich des Erdgeschosses.
*Projektvorstellung & Open-House am So., 07.12., 11.30 Uhr, Paul-Hindemith-Str. 1, 53332 Bornheim*
Helmut-Schmidt-Straße 16,
53332 Bornheim
Auf Karte anzeigen
Finanzierungszertifikat
In nur zwei Minuten zu Ihrem persönlichen Finanzierungszertifkat.
Infos
| Haustyp | Doppelhaushaelfte |
|---|---|
| Wohnfläche ca. | 162 m2 |
| Grundstücksfläche | 318 m2 |
| Bezugsfrei ab | vsl. Q1 2027 |
| Zimmer | 6 |
| Schlafzimmer | 5 |
| Badezimmer | 1 |
| Anzahl Garage/Stellplatz | 2 |
Kosten
| Kaufpreis |
519.900 € |
|---|---|
| Provision | Nein |
Finanzierungsrechner:
Kaufpreis:
600.000 €
Eigenkapital:
600.000 €
Monatliche Rate
0 €
Effektiver Jahreszins
0 %
Sollzinsbindung
10 Jahre
Bausubstanz & Energieausweis
| Baujahr | 2026 |
|---|---|
| Bauphase | Haus in Planung (projektiert) |
| Qualität der Austattung | Gehoben |
| Heizungsart | Wärmepumpe |
| Wesentliche Energieträger | Umweltwärme |
| Energieausweis | liegt vor |
| Energieausweistyp | Bedarfsausweis |
| Energieverbrauchskennwert | 18,2 kWh/(m²*a) |
| Energieeffizienzklasse | A+ |
18,2
kWh/(m²*a)
Energieeffizienzklasse A+
- A+
- A
- B
- C
- D
- E
- F
- G
- H
- 0
- 25
- 50
- 75
- 100
- 125
- 150
- 175
- 200
- 225
- >250
Beschreibung des Objekts
Ausstattung
Die moderne Bauweise beinhaltet:
- Konventionelle Massivbauweise mit 36,5 cm starkem Porotonaußenmauerwerk, Bimsstein und Kalksandstein
- tragende und nichttragende Innenwände werden gemauert
- Hochwertige 3-fach verglaste Kunststofffensterelemente mit Rollladen
- Eigene Luft-Wasser-Wärmepumpe mit großem Warmwasserspeicher
- PV-Anlage
- Fußbodenheizung mit separaten Raumthermostaten
- Keine Verwendung von Fertigbauteilen
- Voll ausgestattetes Tageslichtbadezimmer mit Badewanne und bodengleicher Dusche inkl. Boden- und Wandfliesen
- Gäste-WC mit Boden- und Wandfliesen
- Gepflasterte Terrasse mit Außenzapfstelle
- 2-Holm-Stahltreppe mit Treppenstufen und Holzhandlauf aus Buche
- Blowerdoortest inklusive
Cubic 135 - ohne Keller:
- ein zusätzlicher Hausanschlussraum im Erdgeschoss hat Platz für die Haustechnik für die Waschmaschine & Co.
Cubic 160 - mit Keller:
- Vollunterkellerung, Ausführung in WU-Beton inkl. Kellerdämmung (weiße Wanne)
- Ein Raum im Untergeschoss wird zur vollständigen wohnlichen Nutzung als Homeoffice/Gästezimmer/Hobbyraum mit Fußbodenheizung ausgestattet
Lage
WILLKOMMEN IN BORNHEIM
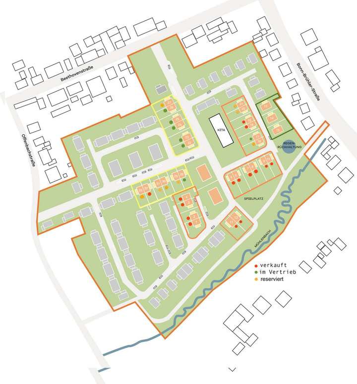
Das Neubauprojekt „Mertener Mühle - Schöner Leben im Rheinland“ liegt eingebettet in ein gewachsenes Wohngebiet im beschaulichen Bornheimer Stadtteil Merten, der zu den größten „Vororten“ der Gemeinde zählt. Aufgrund der sehr guten Infrastruktur mit mehreren KITAs, einer Grundschule, einer Sekundarschule, Arztpraxen, Einkaufsmöglichkeiten, diversen Restaurants und Gaststätten, ist der Stadtteil insbesondere bei Familien sehr beliebt.
Einkäufe und kleine Besorgungen erledigen Sie einfach zu Fuß. Auch der Weg zur KITA ist nicht weit, denn auf dem Baugebiet wird eine neue Kindertagesstätte errichtet. Die umliegenden Felder und Wälder locken Aktive zu ausgedehnten Wanderungen oder Joggingrunden ins Freie. Generell gibt es in Merten viel zu entdecken: Zahlreiche Naherholungsgebiete und Wanderwege, Sehenswürdigkeiten wie das Schloss Bornheim oder die Herseler Werth, ein buntes Vereinsleben, Kultur und Brauchtum tragen zur hohen Lebensqualität der Gemeinde bei - hier ist das Leben lebenswert.
Durch die sehr gute Anbindung über ÖPNV und die Autobahn profitieren Berufstätige von kurzen Wegen nach Bonn oder Köln - und als „Gigabit-Stadt“ treibt Bornheim den Glasfaserausbau konsequent voran, so dass auch das Arbeiten von zu Hause dank schnellem Internet reibungslos möglich ist.
Sonstige Angaben
Die in diesem Exposé sowie in Anlagen und Plänen enthaltenen Angaben und Objektbeschreibungen beruhen ausschließlich auf Angaben des Eigentümers bzw. sonstiger Dritter. Der Makler hat die sachliche Richtigkeit und Vollständigkeit nicht überprüft und übernimmt daher keine Haftung.
Ein etwaig dargestellter Grundriss ist nicht maßstabgerecht und dient nur als Einrichtungsvorschlag. Maßgeblich sind die Angaben im Kaufvertrag.
CLOUDBERRY Real Estate GmbH
Als spezialisierter Vertrieb für Neubauprojekte unterstützen wir Sie bei der Suche nach der passenden Immobilie. Unser Anspruch ist es, Sie umfangreich und kompetent zu beraten, unabhängig davon, ob es sich um Ihr neues Zuhause oder eine attraktive Kapitalanlage handelt. Bei Bedarf kümmern wir uns auch um eine individuell passende Finanzierung und den Verkauf Ihrer bisherigen Immobilie.
Grundriss
Grundriss Cubic 160 OG Links
>
>
Grundriss Cubic 160 DG Links
>
>
Grundriss Cubic 160 KG Links
>
>
Grundriss Cubic 160 DG Links
>
>
Straßenansicht DHH 22-27
>
>
Lageplan
>
>
Adresse
Helmut-Schmidt-Straße 16, 53332 Bornheim
Interessante Orte
Preis- und Lageinformationen
Preistrend für Bestandsimmobilien in Bornheim