Diese charmante Doppelhaushälfte in Schöneiche bei Berlin bietet auf zwei Etagen ein behagliches Zuhause für Paare oder kleine Familien, die naturnah und gleichzeitig stadtnah wohnen möchten. Mit einer Wohnfläche von ca. 120 m² und einem großzügigen Grundstück von etwa 1.200 m² überzeugt diese Immobilie durch ihr ausgewogenes Raumangebot und viel Platz im Außenbereich.
Das Haus verfügt über insgesamt vier Zimmer, die sich ideal als Wohn-, Schlaf- und Arbeitsbereiche nutzen lassen. Ein Badezimmer steht zur Verfügung und wurde im Rahmen der letzten Modernisierungsmaßnahmen im Jahr 2004 zeitgemäß angepasst. Die Ausstattung ist als normal einzustufen und erlaubt mit wenigen Handgriffen individuelle Anpassungen an den eigenen Geschmack.
Für weitere Informationen fordern Sie sich bitte ein ausführliches Exposé an.
Ihr neues Zuhause in Schöneiche – grün und stadtnah
15566 Schöneiche bei Berlin
Die vollständige Adresse der Immobilie erhalten Sie vom Anbieter.
Auf Karte anzeigen
Die vollständige Adresse der Immobilie erhalten Sie vom Anbieter.
Finanzierungszertifikat
In nur zwei Minuten zu Ihrem persönlichen Finanzierungszertifkat.
Infos
| Haustyp | Doppelhaushaelfte |
|---|---|
| Etagenzahl | 2 |
| Wohnfläche ca. | 120 m2 |
| Grundstücksfläche | 1.200 m2 |
| Zimmer | 4 |
| Badezimmer | 1 |
| Garage/Stellplatz | Carport |
| Anzahl Garage/Stellplatz | 1 |
Kosten
| Kaufpreis |
410.000 € |
|---|---|
| Provision |
3,57 % inkl. gesetzlicher MwSt. Verdient und fällig mit Beurkundung des notariellen Kaufvertrages. Der Immobilienmakler hat einen provisionspflichtigen Maklervertrag mit dem Verkäufer in gleicher Höhe abgeschlossen. |
Finanzierungsrechner:
Kaufpreis:
600.000 €
Eigenkapital:
600.000 €
Monatliche Rate
0 €
Effektiver Jahreszins
0 %
Sollzinsbindung
10 Jahre
Bausubstanz & Energieausweis
| Baujahr | 1926 |
|---|---|
| Letzte Sanierung | 2004 |
| Bauphase | Haus fertig gestellt |
| Objektzustand | Renovierungsbedürftig |
| Qualität der Austattung | Normal |
| Heizungsart | Zentralheizung |
| Wesentliche Energieträger | Gas |
| Energieausweis | liegt zur Besichtigung vor |
Beschreibung des Objekts
Ausstattung
- Glasfaser
- Hobbyraum
- Außen Jalousien
Lage
Die naturnahe Lage in Schöneiche bei Berlin kombiniert ruhiges Wohnen mit einer hervorragenden Infrastruktur. Umgeben von Wäldern und dem idyllischen Erpetal bietet die Umgebung zahlreiche Freizeitmöglichkeiten wie Wandern, Radfahren und Wassersport an den nahegelegenen Seen. Einkaufsmöglichkeiten, Restaurants und ein Wochenmarkt sorgen für eine komfortable Nahversorgung. Familien profitieren von einem breiten Bildungs- und Freizeitangebot. Die ausgezeichnete Verkehrsanbindung ermöglicht eine schnelle Verbindung nach Berlin – ob mit dem Auto oder öffentlichen Verkehrsmitteln. Trotz der Nähe zur Hauptstadt bleibt die Wohngegend grün und entspannt. Hier verbindet sich Natur mit urbanem Komfort und macht das Leben besonders lebenswert.
Sonstige Angaben
Unser Ansatz bei MPW Immobilien ist einfach: Ihre Zufriedenheit steht an erster Stelle. Als Ihre persönlichen Berater in der Welt der Immobilien, schaffen wir Vertrauen durch klare Transparenz und fundiertes Fachwissen in unserer Arbeit. Sie erhalten kompetente Unterstützung beim Kauf und Verkauf von Immobilien. Seit 1993 konzentrieren wir uns darauf, die individuellen Bedürfnisse von Eigentümer/-innen und Käufer/-innen zu verstehen und zu erfüllen. Wir begleiten Sie in jedem Schritt – von der ersten Kontaktaufnahme bis zur Schlüsselübergabe. Haben Sie Fragen? Wir sind nur einen Anruf oder eine E-Mail entfernt und freuen uns darauf, Sie zu unterstützen.
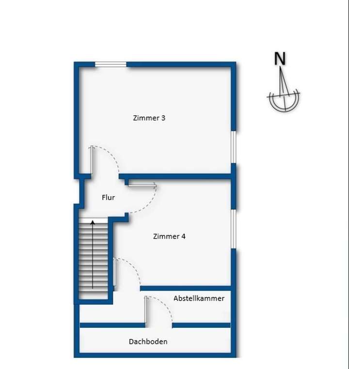
Grundriss
Grundrissskizze Erdgeschoss
>
>
Grundrissskizze Obergeschoss
>
>
Adresse
15566 Schöneiche bei Berlin
Interessante Orte
Preis- und Lageinformationen
Preistrend für Bestandsimmobilien in Schöneiche bei Berlin