Ach wie gut, dass niemand weiß..., dass ich schon ca. 220 Jahre alt bin. Keiner sieht`s mir an. Denn sowohl optisch als auch technisch bin ich auf dem neuesten Stand. Mein Besitzer hat mich überaus pfleglich behandelt und von 2016 bis 2019 mein komplettes "Innenleben" aufwändig kernsaniert. Besuchen Sie mich, ich zeige Ihnen was alles in mir steckt. Mir fehlt es an nichts - Platz, Gemütlichkeit, Moderne... stehen für Sie zum Einzug bereit.
Über meinen Flur gelangen Sie linker Hand ins Gäste-WC, in eine Diele und in den Haushaltsraum. Rechter Hand empfängt Sie voll Licht und Transparenz das Herzstück, der Ess-/Wohnbereich in ansprechender Größe.
Meine Highlights auf dieser Ebene sind zum einen der Herd mit Holzbefeuerung, welcher behagliche Wärme bei klirrender Kälte liefert und zugleich für ein gemütliches Ambiente sorgt. Zum anderen meine moderne Küche mit praktischen Zugang zur Speisekammer..., heute koch ich, morgen back ich...
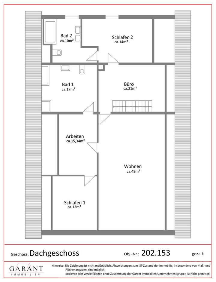
In meinem Obergeschoss sind weitere Besonderheiten versteckt. Meine Galerie mit dekorativen Kaminofen eignet sich bestens als Büro oder auch als Rückzugort zum Lesen eines Buches. Durch mein weiträumig konzipiertes Wohnzimmer finden Sie Zutritt in ein Schlafzimmer mit Durchgang in die Ankleide und Zugang zum trendig designten Duschbad. Zu all diesen Schätzen offeriere ich noch ein Schlafzimmer mit Wannenbad En Suite..., Luxus und Komfort ideal verknüpft! Es ist ein Leichtes aus dem Spitzboden noch mehr Wohnraum entstehen zu lassen.
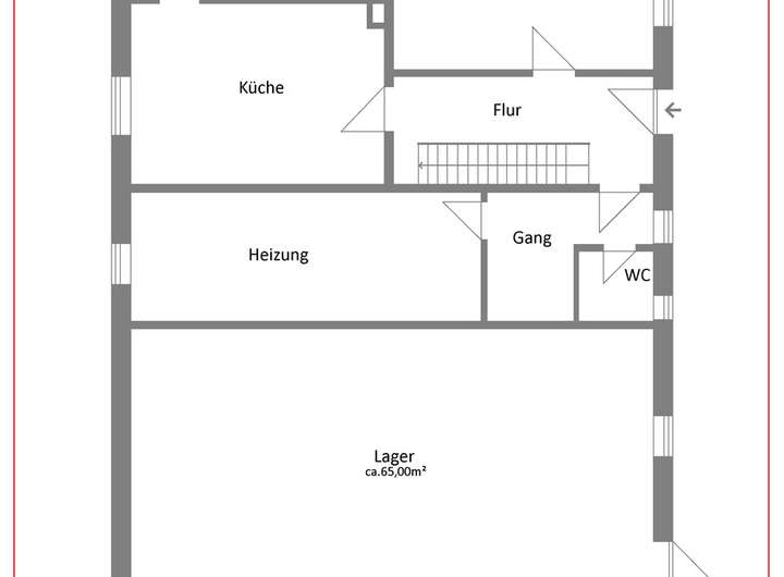
Ausreichend Stauraum finden Sie in meinem Lagerraum.
Mein "Außenleben" komplettiert das gesamte Anwesen. Die fast endlose Wiese lässt Freiraum zur individuellen Gestaltung und Umsetzen eigener Ideen - ein Eldorado für Kinder, Gartenfreunde und Tiere.
Eine im Haus integrierte Werkstatt, Garage und Stellplätze sind vorhanden.
Klingt wie ein Märchen? Nein, ich bin pure Realität. Mit all meinen vielen Accessoires biete ich Ihnen und Ihrer Familie ein Zuhause mit Wohlfühlcharakter. Mich muss man einfach mögen!
Neuwertig - Hochwertig - Top gepflegtes Einfamilienhaus in idyllischer Kulisse
91637 Wörnitz
Die vollständige Adresse der Immobilie erhalten Sie vom Anbieter.
Auf Karte anzeigen
Die vollständige Adresse der Immobilie erhalten Sie vom Anbieter.
Finanzierungszertifikat
In nur zwei Minuten zu Ihrem persönlichen Finanzierungszertifkat.
Infos
| Haustyp | Einfamilienhaus |
|---|---|
| Etagenzahl | 2 |
| Wohnfläche ca. | 173 m2 |
| Grundstücksfläche | 2.512 m2 |
| Bezugsfrei ab | nach Absprache |
| Zimmer | 6 |
| Schlafzimmer | 3 |
| Badezimmer | 2 |
| Garage/Stellplatz | Garage |
| Anzahl Garage/Stellplatz | 1 |
Kosten
| Kaufpreis |
449.800 € |
|---|---|
| Provision |
2,38 % inkl. ges. MwSt. Die Maklercourtage für den Käufer beträgt 2 % aus dem Kaufpreis zuzüglich der gesetzlichen MwSt., somit gesamt 2,38 %. |
Finanzierungsrechner:
Kaufpreis:
600.000 €
Eigenkapital:
600.000 €
Monatliche Rate
0 €
Effektiver Jahreszins
0 %
Sollzinsbindung
10 Jahre
Bausubstanz & Energieausweis
| Baujahr | 1800 |
|---|---|
| Letzte Sanierung | 2019 |
| Objektzustand | Neuwertig |
| Qualität der Austattung | Normal |
| Heizungsart | Zentralheizung |
| Wesentliche Energieträger | Öl |
| Energieausweis | liegt vor |
| Energieausweistyp | Verbrauchsausweis |
| Energieverbrauchskennwert | 96,8 kWh/(m²*a) |
| Energieeffizienzklasse | C |
96,8
kWh/(m²*a)
Energieeffizienzklasse C
- A+
- A
- B
- C
- D
- E
- F
- G
- H
- 0
- 25
- 50
- 75
- 100
- 125
- 150
- 175
- 200
- 225
- >250
Beschreibung des Objekts
Ausstattung
* Glasfaseranschluss
* Küche im Kaufpreis enthalten
* Küchenherd mit Holzbefeuerung
* weiße Sichtholzbalkendecke
* Fachwerk zum Teil freigelegt
* Gäste-WC im Erdgeschoss
* Holzofenanschluss im Büro und Wohnzimmer
* Tageslicht-Duschbad en suite
* Tageslicht-Wannenbad en suite
* Fliesen, Vinyl
* Spitzboden ausbaubar
* Brunnen
* Lagerraum mit Starkstromanschluss
* Garage, zwei Stellplätze
Lage
Stattlich stehe ich in Waldhausen, einem landwirtschaftlich geprägten Ortsteil der mittelfränkischen Gemeinde Wörnitz. Direkt vor meiner Haustür erstreckt sich der Naturpark Frankenhöhe mit seiner reizvollen Landschaft. Hier schöpfen Sie neue Kraft, finden Abstand vom Alltag und Erholung pur..., wie im Paradies.
Dombühl und Wörnitz sind ca. 4 km entfernt. Dombühl verfügt über einen Dorfladen mit Dorfcafé sowie einer Vielfalt an kulinarischen Angeboten. Arzt, Kosmetikstudio, öffentliche Einrichtungen für Kinder und zahlreiche Möglichkeiten zur sportlichen Betätigung sind vorhanden
(Freibad, Sportgelände).
Einen Indoor-Spielplatz, ein Fitnessstudio, eine Tankstelle und ausreichende Einkaufsmöglichkeiten finden Sie in Wörnitz. Im nahe gelgenen Schillingsfürst können verschiedene Bildungseinrichtungen besucht werden.
Ihr Auto lassen Sie stehen? Bus und Bahn gewähren eine optimale Anbindung an den öffentlichen Nah- und Fernverkehr. Dombühl liegt an der Bahnstrecke Nürnberg-Crailsheim-Stuttgart und ist an das Netz der S-Bahn Nürnberg eingebunden.
Zu den Autobahnanbindung A6 und A7 ist es nur eine kurze Distanz.
Sonstige Angaben
Energieverbrauchsausweis Energiekennwert: 96,80 kWh/(qm*a) Energieeffizienz: Klasse C (kl.100) Heizung: Zentralheizung mit Öl Baujahr laut Energieausweis: 1800
1 x Garage, 2 x Stellplatz außen
Modernisierungen von 2016 bis 2019
* Fenster/Dachflächenfenster
* Ölheizung, Heizungsrohre, Heizkörper
* Solartherme
* Wasser- und Abwasserleitungen
* Brunnenanschluss (Bewässerung für Waschmaschinen,
WC's und Garten)
* Elektrik (Sicherungskasten, Hauptleitung, Kabelleitungen, Lampen)
* Photovoltaikvorbereitung
* Böden
* Bäder
* Dach mit Holzfaserdämmplatten und Klemmfilz gedämmt
* Innenräume und Außenfassade neu verputzt
* Gipsplatten in Verbindung mit OSB-Platten eingebaut
* Innentüren
* Granit Fensterbänke
* Kamin
Grundriss
202153-KG
>
>
202153-EG
>
>
202153-DG
>
>
Adresse
91637 Wörnitz
Interessante Orte
Preis- und Lageinformationen
Preistrend für Bestandsimmobilien in Wörnitz