In privilegierter Hanglage über der Lauenburger Altstadt liegt diese stilvolle Villa mit spektakulärem, unverbaubarem 180-Grad-Blick über die Elbe. Auf einem 1.914 m² großen Grundstück verbindet das Haus Großzügigkeit, Ruhe und architektonische Klarheit.
Das Herzstück im Erdgeschoss bildet das lichtdurchflutete Esszimmer mit bodentiefen Fenstern, in denen sich das Tageslicht im polierten, rosafarbenen Marmorboden spiegelt. Ein original schwedischer Kachelofen sorgt für wohlige Wärme und eine behagliche Atmosphäre. Angrenzend liegt das Wohnzimmer mit vier Fenstertüren und fantastischem Ausblick auf Elbe und Altstadt – offen bis unter das Dach und geprägt von luftiger Großzügigkeit. Eine elegante Marmortreppe führt von hier über eine Empore ins Dachgeschoss.
Ergänzt wird die Etage durch eine große Küche, ein Gäste-WC sowie eine separate Einliegerwohnung (ca. 31 m²) mit eigenem Zugang – ideal für Gäste, Homeoffice oder zur Vermietung.
Die teils überdachte Südterrasse schmiegt sich an die Hausseite und bietet sonnige Rückzugsorte mit einmaliger Atmosphäre.
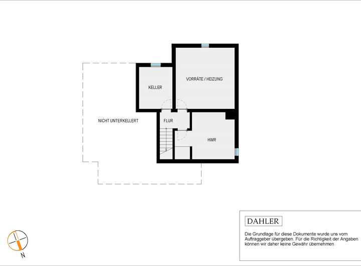
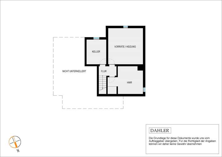
Im Dachgeschoss befinden sich eine offene Galerie, das Hauptschlafzimmer mit Ankleide und Vollbad sowie ein weiteres flexibel nutzbares Zimmer. Das Kellergeschoss umfasst drei Räume mit Tageslicht und guter Deckenhöhe: Heizungs- und Vorratsraum, eine Waschküche und ein weiteres flexibel nutzbares Zimmer.
Eine repräsentative Auffahrt mit automatischer Schranke, hochwertige Materialien und viel Licht in allen Räumen machen diese Villa zu einem besonderen Rückzugsort – für Menschen, die das Seltene, die Stille und ein durchdachtes Wohnkonzept schätzen.
Wohnen mit der Elbe – stilvolle Architektenvilla mit Einliegerwohnung
21481 Lauenburg/Elbe
Die vollständige Adresse der Immobilie erhalten Sie vom Anbieter.
Auf Karte anzeigen
Die vollständige Adresse der Immobilie erhalten Sie vom Anbieter.
Finanzierungszertifikat
In nur zwei Minuten zu Ihrem persönlichen Finanzierungszertifkat.
Infos
| Haustyp | Einfamilienhaus |
|---|---|
| Etagenzahl | 1 |
| Wohnfläche ca. | 250 m2 |
| Nutzfläche | 50 m2 |
| Grundstücksfläche | 1.914 m2 |
| Zimmer | 5 |
| Schlafzimmer | 3 |
| Badezimmer | 2 |
| Garage/Stellplatz | Außenstellplatz |
| Anzahl Garage/Stellplatz | 2 |
Kosten
| Kaufpreis |
0 € |
|---|---|
| Provision |
3,57 % inkl. MwSt. bezogen auf den beurkundeten Kaufpreis |
Finanzierungsrechner:
Kaufpreis:
600.000 €
Eigenkapital:
600.000 €
Monatliche Rate
0 €
Effektiver Jahreszins
0 %
Sollzinsbindung
10 Jahre
Bausubstanz & Energieausweis
| Baujahr | 1994 |
|---|---|
| Objektzustand | Gepflegt |
| Heizungsart | Fußbodenheizung |
| Wesentliche Energieträger | Erdgas leicht |
| Energieausweis | liegt vor |
| Energieausweistyp | Bedarfsausweis |
| Energieverbrauchskennwert | 163,4 kWh/(m²*a) |
| Energieeffizienzklasse | F |
163,4
kWh/(m²*a)
Energieeffizienzklasse F
- A+
- A
- B
- C
- D
- E
- F
- G
- H
- 0
- 25
- 50
- 75
- 100
- 125
- 150
- 175
- 200
- 225
- >250
Beschreibung des Objekts
Ausstattung
Allgemein
- Baujahr: 1994 (Neubau in massiver Bauweise, teilintegriert: Haus von 1954)
- Grundstück: ca. 1.914 m² in Hanglage mit 180°-Elbblick
- Wohnfläche: ca. 240,34 m² inkl. Einliegerwohnung (ca. 31 m²) ohne Terrasse
- Außenwände: Kalksandstein mit Kerndämmung, weiß gestrichenes Verblendmauerwerk
- Innenwände: Kalksandstein, verputzt, teils tapeziert, weiß gestrichen
- Geschossdecke: Beton
- Dach: Satteldach mit Gauben
- Fenster: Holzfenster mit 2-fach-Isolierverglasung, abschließbaren goldfarbenen Fensteroliven
- Innentüren: Weiß, teilweise mit Glasausschnitten, mit stilvollen Drückergarnituren
Innenausstattung
- Bodenbeläge EG: Polierter rosafarbener Natursteinmarmor (Esszimmer, Diele, Flur, WC, Küche, Kellerflur)
- Bodenbeläge OG & Wohnzimmer: Heller Teppichboden
- Bodenbeläge in den Bädern und Kellerräumen: Fliesen
- Treppen: Marmortreppe zum Keller (massiv, durchgehend), offene Metalltreppe mit Marmor-Stufen zum Dachgeschoss
- Kachelofen: Original schwedischer, weiß glasierter Kachelofen mit goldfarbener Tür
- Küche: U-förmige Einbauküche mit weißen profilierten Fronten, hochwertige Elektrogeräte deutscher Hersteller
- Bäder: Vollbad im Dachgeschoss mit Tageslicht (2 Dachflächenfenster). Duschbad in der Einliegerwohnung.
- Ausstattung mit Villeroy & Boch (Sanitär) und Vola (Armaturen)
Technik & Energie
- Heizung: Gas-Niedertemperaturtherme (Viessmann, Baujahr 1994), zentrale Versorgung für Heizung und Warmwasser
- Wärmeverteilung: Fußbodenheizung im Erdgeschoss, Heizkörper in den übrigen Bereichen
- Hauswirtschaftsraum: Anschlüsse für Waschmaschine und Trockner, zusätzlich Waschbecken und Dusche
Außenbereich & Sicherheit
- Terrasse: Südterrasse mit Teilüberdachung, hellgraue Fliesen
- Markisen: Zwei Markisen an der Südseite
- Zufahrt: Repräsentative Einfahrt mit Wendemöglichkeit, automatische Schranke
- Garten: Hanggrundstück mit Rasenflächen, altem Baumbestand und dichter Bepflanzung
- Sicherheit: Alarmanlage
Lage
Lauenburg/Elbe liegt im Dreiländereck von Schleswig-Holstein, Niedersachsen und Mecklenburg-Vorpommern – direkt an den Hängen und Ufern der Elbe. Die südlichste Stadt Schleswig-Holsteins beeindruckt mit ihrer historischen Altstadt, bunten Fachwerkhäusern, kopfsteingepflasterten Gassen und einem einzigartigen Blick über das Flusstal.
Diese Villa befindet sich in exponierter Hanglage mit unverbaubarem 180-Grad-Elbblick – die Altstadt liegt sprichwörtlich zu Füßen. Cafés, Restaurants, kleine Geschäfte, Ärzte und kulturelle Einrichtungen sind fußläufig erreichbar, ebenso wie Rad- und Wanderwege entlang des Elbufers. Auch sportlich hat die Umgebung viel zu bieten: Ob Joggen, Radfahren, Wassersport oder Tennis – hier kommen Aktive auf ihre Kosten.
Die Hamburger City ist sowohl mit dem Auto als auch mit dem Zug in ca. 50 Minuten erreichbar. Auch Lüneburg, Büchen und Geesthacht liegen in unmittelbarer Nähe – ideal für Berufspendler und alle, die naturnah und dennoch gut angebunden wohnen möchten.
Grundriss
Grundriss Erdgeschoss
>
>
Grundriss Dachgeschoss
>
>
Grundriss Kellergeschoss
>
>
Adresse
21481 Lauenburg/Elbe
Interessante Orte
Preis- und Lageinformationen
Preistrend für Bestandsimmobilien in Lauenburg/Elbe