Liebe Interessenten,
wir bieten Ihnen zwei moderne Haushälften zu einem Verkaufspreis von jeweils 409.990,00€ an.
Das Projekt befindet sich gegenwärtig in der Herstellung und kann insbesondere in der Leistungsphase Innenausbau vom potentiellen Käufer mitgestaltet werden. Somit kann der Käufer zielgerichtet bei Boden- und Wandbelägen mitwirken.
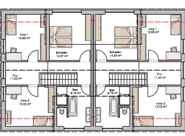
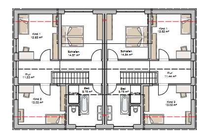
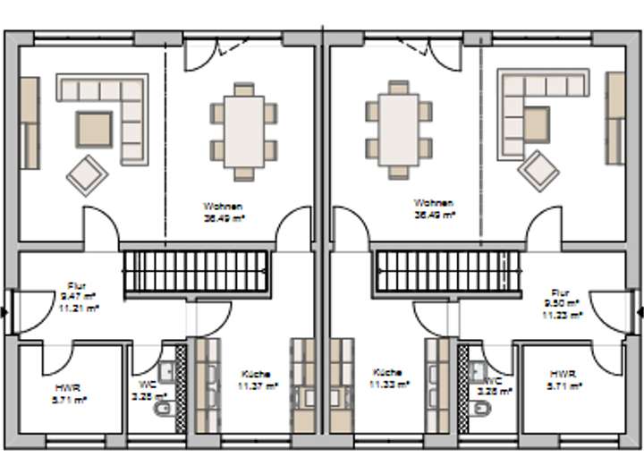
Die Immobilie verfügt über ein Vollbad im Dachgeschoss sowie ein Gäste- WC im Erdgeschoss.
Versorgt werden beide Haushälften durch eine Luft- Wasser- Wärmepumpe, welche für die Warmwasseraufbereitung und Flächenheizung zuständig ist.
Des Weiteren verfügt das Dach über eine Aufsparrendämmung, wodurch die Wärmebrücken minimiert und der sommerliche Wärmeschutz im Dachgeschoss gewährleistet werden.
Im Hinblick auf die Energieeffizienz wird je Haushälfte eine 5 kWp Photovoltaik- Anlage mit Batteriespeicher installiert, sodass die monatlichen Unterhaltungskosten stark reduziert werden. Ein Energieausweis wird bei Kauf zur Verfügung gestellt.
Die Grundstücke befinden sich in zweiter Reihe mit Blick zum Feld. Die Zufahrt erfolgt für beide Parteien über eine gemeinsame, asphaltierte oder gepflasterte sowie beleuchtete Fahrstraße.
Die Grundstücksflächen teilen sich wie folgt auf:
- Grundstück: ca. 850,00 m²
- Zufahrtsteilung mit Parkplatzmöglichkeiten: ca. 175,00 m²
Es ist zu beachten, dass der Verkauf unter Ausschluss von Maklertätigkeit erfolgt, wodurch die Kosten für Käufer und Verkäufer minimiert werden.
Doppelhaushälfte als Neubau mit jeweils 4 Zimmern und geh. Innenausstattung
18320 Ahrenshagen-Daskow
Die vollständige Adresse der Immobilie erhalten Sie vom Anbieter.
Auf Karte anzeigen
Die vollständige Adresse der Immobilie erhalten Sie vom Anbieter.
Finanzierungszertifikat
In nur zwei Minuten zu Ihrem persönlichen Finanzierungszertifkat.
Infos
| Haustyp | Doppelhaushaelfte |
|---|---|
| Etagenzahl | 2 |
| Wohnfläche ca. | 132 m2 |
| Nutzfläche | 160 m2 |
| Grundstücksfläche | 1.025,5 m2 |
| Bezugsfrei ab | 1.12.2025 |
| Zimmer | 4 |
| Schlafzimmer | 3 |
| Badezimmer | 1 |
| Garage/Stellplatz | Carport |
Kosten
| Kaufpreis |
409.990 € |
|---|---|
| Provision | Nein |
Finanzierungsrechner:
Kaufpreis:
600.000 €
Eigenkapital:
600.000 €
Monatliche Rate
0 €
Effektiver Jahreszins
0 %
Sollzinsbindung
10 Jahre
Bausubstanz & Energieausweis
| Baujahr | 2025 |
|---|---|
| Bauphase | Haus im Bau |
| Objektzustand | Erstbezug |
| Qualität der Austattung | Gehoben |
| Heizungsart | Wärmepumpe |
| Wesentliche Energieträger | Solarheizung, Strom |
| Energieausweis | liegt zur Besichtigung vor |
Beschreibung des Objekts
Ausstattung
Fußbodenheizung, Parkettboden, Natursteinfliesen Wand- und Boden, Bodentiefe Fenster mit Rolladen als sommerlichen Wärme- und Einbruchsschutz, Aufsparrendämmung zur Wärmebrückenminimierung
Lage
Die Immobilie befindet sich in der Herstellung im Ort Ahrenshagen-Daskow. Vor Ort gibt es eine Kita, sowie eine Grundschule mit Hort. Weiterhin verfügt die Gemeinde über verschiedene Vereine (Fußball, Volleyball, Gymnastik), Organisationen und offene Treffpunkte.
Nahegelegen befindet sich die Bernsteinstadt Ribnitz- Damgarten, sowie die Stadt Marlow mit verschiedenen Einkaufsmöglichkeiten, sowie Gastronomieoptionen.
Einige Museen, eine gute medizinische Versorgung und verschiedene Erholungs- und Sportangebote (u. a. eine Grün- und Parkanlage) erreichen Sie ebenfalls im näheren Umkreis.
Der Strand in Dierhagen ist circa 20 Minuten Fahrtweg entfernt.
Grundriss
DG_Bild
>
>
EG_Bild
>
>
Grundriss_DG
>
>
Grundriss_EG
>
>
Adresse
18320 Ahrenshagen-Daskow
Interessante Orte
Preis- und Lageinformationen
Preistrend für Bestandsimmobilien in Ahrenshagen-Daskow