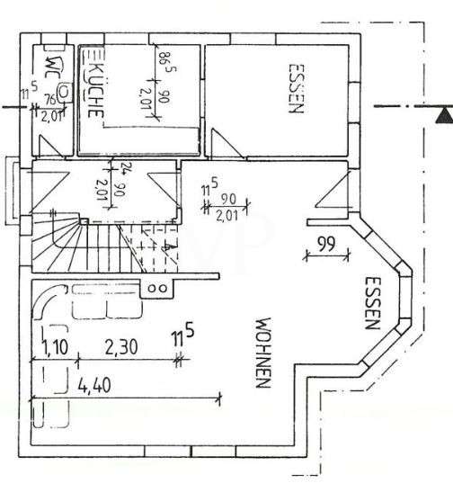
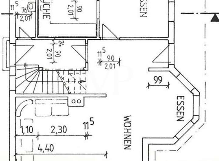
Schon beim Betreten des Hauses spürt man den ganz eigenen Charakter dieser Immobilie – ein Ort, der Geschichten erzählt und auf eine liebevolle Auffrischung wartet. Der Eingangsbereich ist klar strukturiert: Zur Linken liegt das kleine Gäste-WC, funktional und mit Tageslicht ausgestattet. Rechterhand führt eine massive Holztreppe ins Obergeschoss – ein authentisches Detail, das dem Haus seinen ursprünglichen Charme verleiht.
Geht man geradeaus weiter, öffnet sich der Blick: Rechts zweigt die Treppe in den Keller ab, geradeaus betritt man das gemütliche Wohn-Esszimmer. Auch wenn der Stil etwas in die Jahre gekommen ist, lädt der Raum mit seinem Kamin zu warmen Stunden ein – hier schlummert Potenzial für einen Ort voller Geborgenheit.
Zur Linken des Wohnzimmers befindet sich die Küche – kompakt, gut nutzbar und mit klarer Trennung vom Wohnbereich. Sie bietet die perfekte Grundlage für individuelle Gestaltungsideen und eine moderne Neugestaltung. Sie können das Grundstück, aus dem Wohn-Essbereich betreten.
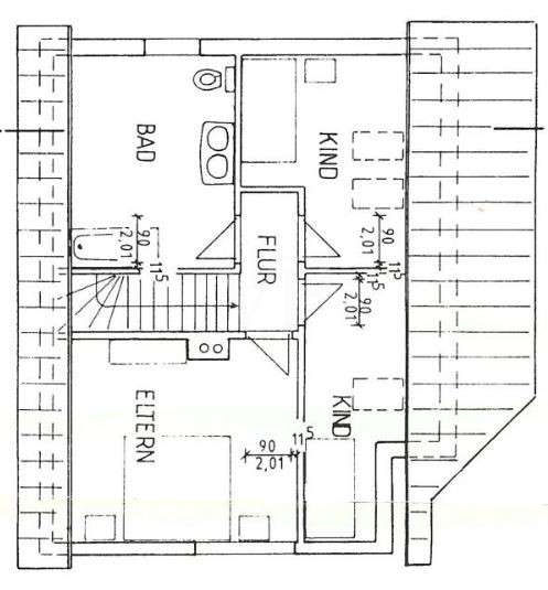
Im Obergeschoss erwarten einen drei Zimmer, die viel Raum für Familie, Gäste oder ein Homeoffice bieten. Das Badezimmer mit Blick in den Garten bringt viel natürliches Licht hinein und schafft eine freundliche Atmosphäre.
Der Garten selbst ist ein kleiner Rückzugsort – mit einem charmanten Schuppen für Gartengeräte und einem kleinen Teich, der eine besondere Note setzt. Hier ist Platz für grüne Ideen, gemütliche Nachmittage oder spielende Kinder.
Dieses Haus ist kein Neubau – aber eines mit Potenzial. Es braucht Zuwendung, ja – aber es gibt viel zurück. Für Menschen mit Ideen, mit Herz und dem Wunsch, sich ein echtes Zuhause zu schaffen, bietet es die perfekte Grundlage: ein ehrliches, solides Haus mit Seele und Perspektive.
EINFAMILIENHAUS PERFEKT FÜR EINE KLEINE FAMILIE MIT GARTEN UND HEIMATNÄHE FÜR WEINBÖHLA
01689 Weinböhla
Die vollständige Adresse der Immobilie erhalten Sie vom Anbieter.
Auf Karte anzeigen
Die vollständige Adresse der Immobilie erhalten Sie vom Anbieter.
Finanzierungszertifikat
In nur zwei Minuten zu Ihrem persönlichen Finanzierungszertifkat.
Infos
| Haustyp | Einfamilienhaus |
|---|---|
| Etagenzahl | 2 |
| Wohnfläche ca. | 110 m2 |
| Grundstücksfläche | 700 m2 |
| Zimmer | 5 |
| Schlafzimmer | 3 |
| Badezimmer | 1 |
| Garage/Stellplatz | Außenstellplatz |
| Anzahl Garage/Stellplatz | 1 |
Kosten
| Kaufpreis |
379.000 € |
|---|---|
| Provision |
Käuferprovision beträgt 3,57 % (inkl. MwSt.) des beurkundeten Kaufpreises |
Finanzierungsrechner:
Kaufpreis:
600.000 €
Eigenkapital:
600.000 €
Monatliche Rate
0 €
Effektiver Jahreszins
0 %
Sollzinsbindung
10 Jahre
Bausubstanz & Energieausweis
| Baujahr | 1996 |
|---|---|
| Letzte Sanierung | 2008 |
| Bauphase | Haus fertig gestellt |
| Objektzustand | Gepflegt |
| Qualität der Austattung | Normal |
| Heizungsart | Zentralheizung |
| Wesentliche Energieträger | Gas |
| Energieausweis | liegt vor |
| Energieausweistyp | Bedarfsausweis |
| Energieverbrauchskennwert | 120,3 kWh/(m²*a) |
| Energieeffizienzklasse | D |
120,3
kWh/(m²*a)
Energieeffizienzklasse D
- A+
- A
- B
- C
- D
- E
- F
- G
- H
- 0
- 25
- 50
- 75
- 100
- 125
- 150
- 175
- 200
- 225
- >250
Beschreibung des Objekts
Ausstattung
*Garage *
*5 Zimmer *
*Baujahr 1996 *
*schönes Grundstück*
*unterkellert*
*Baumbestand*
*ruhige angelegte Ecken*
*kleiner Teich*
*zentrale Lage*
*Brunnen*
*Gerätehäuschen*
*Garage im Keller*
Lage
Das Einfamilienhaus befindet sich in einer schönen Wohnlage von Weinböhla, einer charmanten Gemeinde nordwestlich von Dresden. Die Umgebung ist geprägt von gepflegten Einfamilienhäusern, viel Grün und einer familienfreundlichen Atmosphäre. Hier vereinen sich ländliche Idylle und städtische Nähe auf ideale Weise.
Die Straßenbahnlinie 4 verbindet Weinböhla direkt mit Dresden und sorgt für eine unkomplizierte und stressfreie Pendelmöglichkeit – ideal für Berufspendler und Familien. Auch der S-Bahn-Anschluss im nahegelegenen Coswig ist schnell erreichbar. Darüber hinaus besteht über die Bundesstraße B6 eine sehr gute Anbindung an die Autobahn A4, die in wenigen Fahrminuten zu erreichen ist.
Einkaufsmöglichkeiten, Ärzte, Schulen, Kindergärten und Freizeiteinrichtungen befinden sich in unmittelbarer Nähe und sind teils fußläufig erreichbar. Für Naturliebhaber bietet die Umgebung zahlreiche Wander- und Radwege durch die reizvolle Landschaft der Lößnitz und die Weinberge entlang der Elbe.
Weinböhla liegt im Landkreis Meißen in Sachsen und ist über die Straßenbahnlinie 4 der Dresdner Verkehrsbetriebe (DVB) mit Dresden, Radebeul und Coswig verbunden. Zudem ist Weinböhla über zwei Buslinien (411 und 421) der Verkehrsgesellschaft Meißen an Meißen angebunden. Die Straßenbahnlinie 4 endet in Weinböhla und bietet auch nachts Anschluss als Teil des GuteNachtLinien-Netzes. Ein Zug fährt auch direkt nach Dresden.
Weinböhla befindet sich im Landkreis Meißen, etwa 13 km nordwestlich von Dresden.
Die Gemeinde besteht aus den Ortsteilen Weinböhla und Neuer Anbau.
Sonstige Angaben
GELDWÄSCHE: Als Immobilienmaklerunternehmen ist die von Poll Immobilien GmbH nach § 2 Abs. 1 Nr. 14 und § 11 Abs. 1, 2 Geldwäschegesetz (GwG) dazu verpflichtet, bei der Begründung einer Geschäftsbeziehung die Identität des Vertragspartners festzustellen und zu überprüfen, bzw. sobald ein ernsthaftes Interesse an der Durchführung des Immobilienkaufvertrages besteht. Hierzu ist es erforderlich, dass wir nach § 11 Abs. 4 GwG die relevanten Daten Ihres Personalausweises festhalten (wenn Sie als natürliche Person handeln) – beispielsweise mittels einer Kopie. Bei einer juristischen Person benötigen wir eine Kopie des Handelsregisterauszugs, aus welchem der wirtschaftlich Berechtigte hervorgeht. Das Geldwäschegesetz sieht vor, dass der Makler die Kopien bzw. Unterlagen fünf Jahre aufbewahren muss. Als unser Vertragspartner haben Sie auch eine Mitwirkungspflicht nach § 11 Abs. 6 GwG.
HAFTUNG: Wir weisen darauf hin, dass die von uns weitergegebenen Objektinformationen, Unterlagen, Pläne etc. vom Verkäufer bzw. Vermieter stammen. Eine Haftung für die Richtigkeit oder Vollständigkeit der Angaben übernehmen wir daher nicht. Es obliegt daher unseren Kunden, die darin enthaltenen Objektinformationen und Angaben auf ihre Richtigkeit hin zu überprüfen. Alle Immobilienangebote sind freibleibend und vorbehaltlich Irrtümer, Zwischenverkauf- und Vermietung oder sonstiger Zwischenverwertung.
UNSER SERVICE FÜR SIE ALS EIGENTÜMER:
Planen Sie den Verkauf oder die Vermietung Ihrer Immobilie, so ist es für Sie wichtig, deren Marktwert zu kennen. Lassen Sie kostenfrei und unverbindlich den aktuellen Wert Ihrer Immobilie professionell durch einen unserer Immobilienspezialisten einschätzen. Unser bundesweites und internationales Netzwerk ermöglicht es uns, Verkäufer bzw. Vermieter und Interessenten bestmöglich zusammenzuführen.
Grundriss
teilunterkellerung
>
>
Erdgeschoss
>
>
Dachgeschoss
>
>
Adresse
01689 Weinböhla
Interessante Orte
Preis- und Lageinformationen
Preistrend für Bestandsimmobilien in Weinböhla