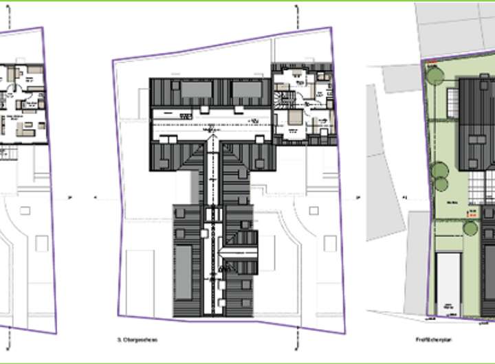
Zum Verkauf steht ein ca. 1.053 m² großes Baugrundstück in ruhiger und begehrter Stadtrandlage von Frankfurt-Berkersheim. Für das Grundstück liegt eine projektierte Planung vor, die aus Abstimmungen mit der Stadt entwickelt wurde.
Eine Bauvoranfrage oder Genehmigung wurde bisher nicht eingereicht.
Laut aktueller Planung lassen sich rund 1.550 m² BGF oberirdisch und ca. 1.050 m² Wohnfläche realisieren. Zudem sind 15 Stellplätze vorgesehen.
Das Grundstück bietet hervorragende Voraussetzungen für eine attraktive Wohnprojektentwicklung in einem gewachsenen und gut angebundenen Stadtteil von Frankfurt.
Projektiertes Baugrundstück in begehrter Stadtrandlage!
60435 Frankfurt am Main
Die vollständige Adresse der Immobilie erhalten Sie vom Anbieter.
Auf Karte anzeigen
Die vollständige Adresse der Immobilie erhalten Sie vom Anbieter.
Finanzierungszertifikat
In nur zwei Minuten zu Ihrem persönlichen Finanzierungszertifkat.
Infos
| Vermarktungsart | Kaufen |
|---|---|
| Grundstücksfläche | 1.053 m2 |
| Erschließung | Erschlossen |
| Empfohlene Nutzung | Mehrfamilienhaus |
| Bebaubar nach | Bebauungsplan |
Kosten
| Miete pro Jahr |
0 € |
|---|---|
| Provision | Nein |
Finanzierungsrechner:
Kaufpreis:
600.000 €
Eigenkapital:
600.000 €
Monatliche Rate
0 €
Effektiver Jahreszins
0 %
Sollzinsbindung
10 Jahre
Beschreibung des Objekts
Lage
- Ruhige Stadtrandlage
- Direkte ÖPNV-Verbindung zum Hauptbahnhof
- Per PKW in 20 Minuten in die Innenstadt
-Direkte Anbindung an die Autobahn A661
Sonstige Angaben
Die Planung sowie alle relevanten Unterlagen stellen wir Ihnen gerne im Rahmen des Exposés zur Verfügung.