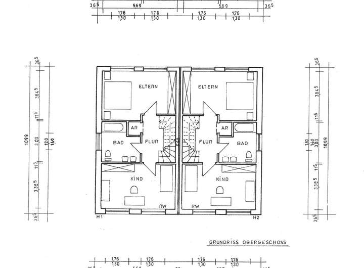
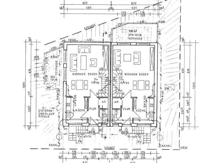
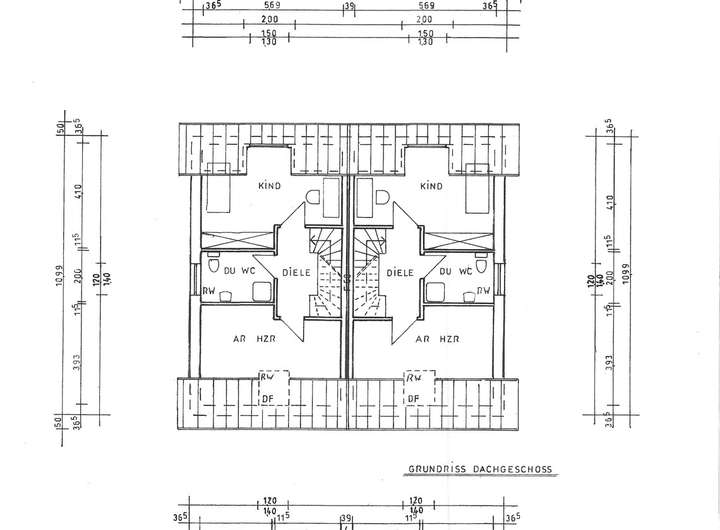
Zum Verkauf steht ein attraktives Baugrundstück mit bereits erteilter Baugenehmigung für zwei moderne Doppelhaushälften. Die Planung der Doppelhäuser erfolgt ohne Keller, jedoch mit großzügigen und gut durchdachten Grundrissen. Jede Haushälfte bietet ca. 148 m² Wohnfläche und zusätzlich ca. 21 m² Nutzfläche, ideal für Familien oder Paare, die Wert auf modernes Wohnen und ausreichend Platz legen.
Grundstücksdetails:
Baugenehmigung:
Vorhanden für 2 Doppelhaushälften ohne Keller mit 2 Stellplätzen pro Haus
Wohnfläche pro Haushälfte:
ca. 148 m²
Nutzfläche pro Haushälfte:
ca. 21 m²
Bodengutachten:
Bereits erstellt
Planung:
Schlüsselfertige, ansprechende Grundrissgestaltung
Besonderheiten:
Das Baugrundstück bietet eine hervorragende Lage in einem ruhigen, familienfreundlichen Wohngebiet. Das Bodengutachten liegt vor, was die bauliche Planung vereinfacht und zusätzliche Sicherheit bietet. Die Doppelhaushälften wurden so konzipiert, dass sie komfortables und stilvolles Wohnen auf hohem Niveau ermöglichen.
großzügiges Grundstück mit Baugenehmigung für 2 Doppelhaushälften
53783 Eitorf
Die vollständige Adresse der Immobilie erhalten Sie vom Anbieter.
Auf Karte anzeigen
Die vollständige Adresse der Immobilie erhalten Sie vom Anbieter.
Finanzierungszertifikat
In nur zwei Minuten zu Ihrem persönlichen Finanzierungszertifkat.
Infos
| Vermarktungsart | Kaufen |
|---|---|
| Grundstücksfläche | 557 m2 |
| Empfohlene Nutzung | Doppelhaus |
| Grundflächenzahl (GRZ) | 0.31 |
| Verfügbar ab | sofort |
Kosten
| Miete pro Jahr |
140.000 € |
|---|---|
| Provision |
Die Courtage in Höhe von 2,38% (inkl. MwSt) beläuft sich auf den Kaufpreis. |
Finanzierungsrechner:
Kaufpreis:
600.000 €
Eigenkapital:
600.000 €
Monatliche Rate
0 €
Effektiver Jahreszins
0 %
Sollzinsbindung
10 Jahre
Beschreibung des Objekts
Sonstige Angaben
Die oben angegebene Außenprovision i.H.v 2,38% (inkl. MwSt) ist mit der notariellen Beurkundung des Kaufvertrages durch den Käufer fällig.
Die hier genannten Daten und Fakten beruhen auf den Angaben des Verkäufers. Für die Richtigkeit und Vollständigkeit wird keine Gewähr übernommen.