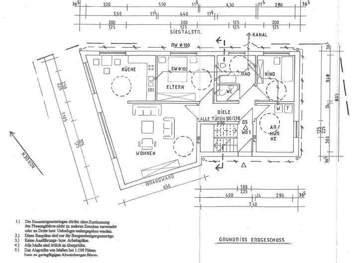
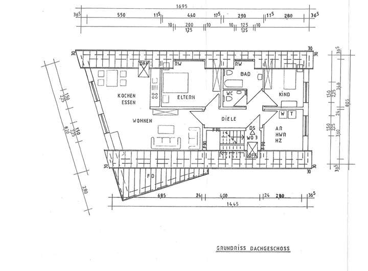
Zum Verkauf steht ein attraktives Baugrundstück mit bereits genehmigtem Bauprojekt für ein hochwertiges Mehrfamilienhaus mit drei Wohneinheiten. Die geplante Immobilie bietet insgesamt 292,80 m² Wohnfläche, verteilt auf drei komfortable und großzügige Wohnungen. Hinzu kommen 25,20 m² Nutzfläche, die zusätzlichen Stauraum und funktionalen Nutzen bieten. Auf dem Grundstück befinden sich außerdem vier Außenstellplätze, die für ausreichend Parkmöglichkeiten sorgen und den Komfort für die zukünftigen Bewohner erhöhen.
Grundstücksdetails:
Baugenehmigung:
Erteilt für ein 3-Parteienhaus
Gesamtwohnfläche:
ca. 292,80 m²
Nutzfläche:
ca. 25,20 m²
Stellplätze: 4 Außenstellplätze geplant
Die durchdachte Planung des Mehrparteienhauses ermöglicht ein komfortables Wohnkonzept mit viel Raum und Licht. Alle Wohneinheiten zeichnen sich durch eine moderne und effiziente Gestaltung aus, die ideal auf die Bedürfnisse zukünftiger Bewohner zugeschnitten ist. Durch die vorhandene Baugenehmigung kann das Bauvorhaben zeitnah umgesetzt werden, ohne dass weitere Genehmigungen erforderlich sind. Die vier geplanten Außenstellplätze bieten einen klaren Mehrwert in dieser begehrten Wohngegend.
attraktives Grundstück mit Baugenehmigung für 3 Parteienhaus
53783 Eitorf
Die vollständige Adresse der Immobilie erhalten Sie vom Anbieter.
Auf Karte anzeigen
Die vollständige Adresse der Immobilie erhalten Sie vom Anbieter.
Finanzierungszertifikat
In nur zwei Minuten zu Ihrem persönlichen Finanzierungszertifkat.
Infos
| Vermarktungsart | Kaufen |
|---|---|
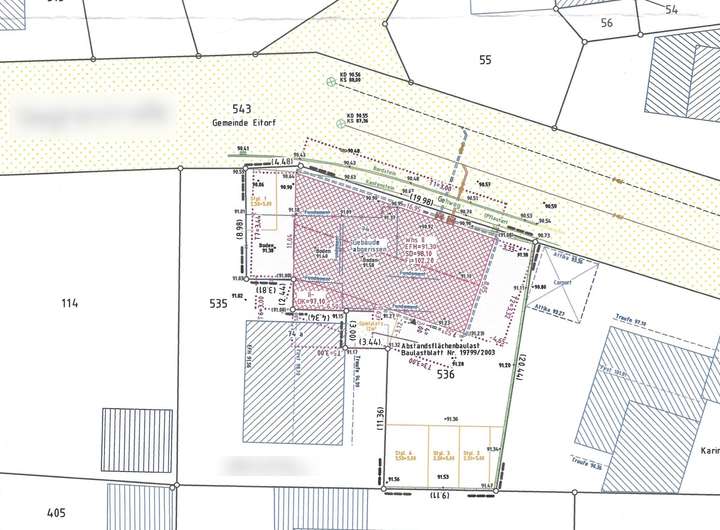
| Grundstücksfläche | 361 m2 |
| Erschließung | Erschlossen |
| Empfohlene Nutzung | Mehrfamilienhaus |
| Bebaubar nach | wie Nachbarbebauung |
| Verfügbar ab | sofort |
Kosten
| Miete pro Jahr |
135.000 € |
|---|---|
| Provision |
Die Courtage in Höhe von 2,38% (inkl. MwSt) beläuft sich auf den Kaufpreis. |
Finanzierungsrechner:
Kaufpreis:
600.000 €
Eigenkapital:
600.000 €
Monatliche Rate
0 €
Effektiver Jahreszins
0 %
Sollzinsbindung
10 Jahre
Beschreibung des Objekts
Sonstige Angaben
Die oben angegebene Außenprovision i.H.v 2,38% (inkl. MwSt) ist mit der notariellen Beurkundung des Kaufvertrages durch den Käufer fällig.
Die hier genannten Daten und Fakten beruhen auf den Angaben des Verkäufers. Für die Richtigkeit und Vollständigkeit wird keine Gewähr übernommen.