Ideal für Selbstnutzer oder Kapitalanleger – mit hochwertiger Eigentümerwohnung, großem Garten, großzügige Abstellfläche und vielseitigen Nutzungsmöglichkeiten...
Dieses gepflegte, freistehende 4-Familienhaus in gefragter Wohnlage von Dortmund-Asseln überzeugt durch seine Kombination aus solider Kapitalanlage und attraktiver Eigennutzungsmöglichkeit.
Das im Ursprungsjahr ca. 1929 errichtete Gebäude wurde 1969 erweitert, umfassend saniert und seitdem fortlaufend modernisiert.
Zuletzt wurde das Dachgeschoss im Jahr 2007 zu einer charmanten kleinen Wohnung ausgebaut.
Das große Grundstück mit ca. 1.742 m² ist bestens für Gartenfans geeignet, die gerne ihre Freizeit im Freien verbringen möchten.
Auf dem Grundstück befinden sich insgesamt fünf Garagen (eine am Haus mit Zugang zum Garten, vier im Hof), 1 Carport sowie zusätzliche Stellplätze für 4 Fahrzeuge vor der Garage am Haus.
Die Hoffläche bietet zudem ausreichend Platz z. B. für ein Campingfahrzeug, andere große Fahrzeuge oder weitere PKW´s.
Besonderes Highlight ist die großzügige, hochwertig modernisierte Eigentümerwohnung im Erdgeschoss mit ca. 108 m² Wohnfläche, 3,5 Zimmern mit zum Teil überdachter Terrasse und einem wunderschön angelegten Garten in Südausrichtung.
Die vielen individuellen Nutzungsmöglichkeiten – ideal für Familien, Selbstständige oder Paare mit Platzbedarf werden Sie hoffentlich begeistern. Diese Wohnung wird ca. im März 2026 vom Eigentümer frei gezogen. Ebenso werden die Wohnungen im 1. Obergeschoss rechts und die moderne Dachgeschosswohnung ca. im März 2026 frei gezogen.
Die jährliche IST-Mieteinnahme beträgt zurzeit 17.880 € zzgl. Nebenkostenvorauszahlungen. Bei einer voll Vermietung (kalkulierte ME für EG-Whg. und Garagen) läge die nachhaltige SOLL-Mieteinnahme bei ca. 36.120 € zzgl. Nebenkostenvorauszahlungen. Die Nebenkosten werden pauschal abgerechnet. Die Strom- und Heizkosten werden direkt von den Mietern mit dem jeweiligen Versorger abgerechnet.
Kontaktieren Sie uns für weitere Informationen oder einen Besichtigungstermin.
Wir freuen uns, Ihnen dieses besondere Objekt vorzustellen!
Ideal für Selbstnutzer oder Kapitalanleger...
44319 Dortmund
Die vollständige Adresse der Immobilie erhalten Sie vom Anbieter.
Auf Karte anzeigen
Die vollständige Adresse der Immobilie erhalten Sie vom Anbieter.
Finanzierungszertifikat
In nur zwei Minuten zu Ihrem persönlichen Finanzierungszertifkat.
Infos
| Haustyp | Mehrfamilienhaus |
|---|---|
| Etagenzahl | 2 |
| Wohnfläche ca. | 285 m2 |
| Grundstücksfläche | 1.742 m2 |
| Bezugsfrei ab | ca. März 2026 |
| Zimmer | 10 |
| Anzahl Garage/Stellplatz | 11 |
Kosten
| Kaufpreis |
735.000 € |
|---|---|
| Provision |
3,57 % inkl. ges. MwSt. |
| Mieteinnahmen | 1.490 € |
Finanzierungsrechner:
Kaufpreis:
600.000 €
Eigenkapital:
600.000 €
Monatliche Rate
0 €
Effektiver Jahreszins
0 %
Sollzinsbindung
10 Jahre
Bausubstanz & Energieausweis
| Baujahr | 1969 |
|---|---|
| Letzte Sanierung | 2007 |
| Bauphase | Haus fertig gestellt |
| Objektzustand | Modernisiert |
| Qualität der Austattung | Normal |
| Heizungsart | Etagenheizung |
| Wesentliche Energieträger | Gas |
| Energieausweis | liegt vor |
| Energieausweistyp | Bedarfsausweis |
| Energieverbrauchskennwert | 239,7 kWh/(m²*a) |
| Energieeffizienzklasse | G |
239,7
kWh/(m²*a)
Energieeffizienzklasse G
- A+
- A
- B
- C
- D
- E
- F
- G
- H
- 0
- 25
- 50
- 75
- 100
- 125
- 150
- 175
- 200
- 225
- >250
Beschreibung des Objekts
Ausstattung
Individuelle Ausstattungsmerkmale:
- Gartenhaus
- Bäder mit Fenster
- Markise
- Kunststoff-Rollläden
- Gäste-WC
- Balkon
- Terrasse
- Gesamtwohnfläche: ca. 285 m² (ca. 108 m² freiwerdend,
ca. 60 m² freiwerdend, ca. 51 m² vermietet, ca. 66 m² freiwerdend)
- Eigentümerwohnung (EG): ca. 108 m², 3,5 Zimmer, mit direktem
Garten- und Kellerzugang, viele Räume im Keller, Kaminanschluss
- Laufend modernisierter und gepflegter Gesamtzustand
- Satteldach von ca. 1992
- KST-Isolierglasfenster mit teilw. elektrischen KST-Rollläden
- 3 x Gas-Brennwert-Kombithermen (1x ca. 2007 und 2x ca. 2025)
- 1 x Gas-Kombitherme von ca. 1991
- Genehmigter Dachgeschossausbau 2007 (1x Whg. mit ca. 66 m² Wfl.)
- Neuer Hausanstrich mit "Lotusfarbe" in ca. 2015
- Zum größten Teil modernisierte Bäder und zeitgemäße Grundrisse
- Carport: 1
- Garagen: 5 (1 am Haus mit Zugang zum Garten und 4 im Hof)
- Außenstellplätze: 2 vor Garage am Haus
- Hoffläche mit viel Stellfläche – auch für Camper oder
große Fahrzeuge
- Garten in Südlage mit überdachter Sonnenterrasse mit Markise
- ALU-Terrassendach mit VS-Glas
- Gartenhaus
- Großer Balkon im Obergeschoss über die gesamte Giebelseite
- Separater Zugang zur Eigentümerwohnung vom Garten möglich
- Kombination aus Wohnen und Arbeiten sind gut umsetzbar
- Ruhiger, familienfreundlicher Garten mit viel Platz zum Spielen &
Entspannen
- Voll unterkellert u.a. mit viel Stauraum für EG-Wohnung und weiterem
Duschbad/WC
- Oberböden: Laminat, Fliesen und Granit
- Erbbaurecht: nein
Lage
Ideal für Familien...
Dortmund-Asseln ist ein beliebter Stadtteil im Osten Dortmunds und zeichnet sich durch seine ruhige, familienfreundliche Umgebung mit hervorragender Infrastruktur aus.
Die Umgebung bietet eine gewachsene Wohnstruktur, eine gute Nahversorgung und viele Grünflächen.
In unmittelbarer Nähe befinden sich Schulen, Kindergärten, Ärzte, Einkaufsmöglichkeiten und Sportvereine. Die Anbindung an den öffentlichen Nahverkehr ist sehr gut – die S-Bahn-Station “Dortmund-Asseln Mitte” sowie mehrere Buslinien sind schnell erreichbar.
Mit dem Auto gelangen Sie über die B1, B236 oder A40 zügig in die Dortmunder Innenstadt oder ins Ruhrgebiet. Die Stadtbahnlinie-Haltestelle ist 100 m entfernt.
Die beliebte in Kombination mit der guten Infrastruktur macht diesen Standort sowohl für Familien als auch für Berufspendler attraktiv.
Sonstige Angaben
Die Erdgeschosswohnung mit Garten und 4 Garagen wird ca. im März 2026 vom Eigentümer frei gezogen. Ideal für einen Selbstnutzer.
Ebenso werden die Wohnungen im 1. Obergeschoss rechts und die moderne Dachgeschosswohnung ca. im März 2026 frei gezogen.
Wir freuen uns auf Ihre Nachricht.
Bitte haben Sie Verständnis, dass Besichtigungstermine erst nach erfolgter diskreter Außenbesichtigung vereinbart werden. Bitte nehmen Sie Rücksicht auf Eigentümer, Nachbarn oder Mieter und verletzen Sie nicht deren Privatsphäre.
Laut Gebäudeenergiegesetz (GEG) weisen wir Sie auf die Möglichkeit hin, zusätzlich noch einen Termin mit einem Energieberater Ihrer Wahl wahrzunehmen.
Die Sparkasse Dortmund ist der führende Finanzdienstleister in Dortmund. Das Team des Immobilien-Centers bündelt die Aktivitäten in den Bereichen Finanzierung und Immobilienvermittlung. Gerne unterbreiten wir Ihnen eine maßgeschneiderte Finanzierung und stellen den Kontakt zu unseren Finanzierungsexperten her.
VERBRAUCHERINFO
1. Maklerleistung ist der Nachweis der Gelegenheit zum Abschluss eines Vertrages bzw. Vermittlung eines Vertrages über eine Immobilie gegen die Courtagezahlungspflicht des Kunden
2. Unternehmer,Anschrift,Beschwerdeadressat
LBSi NordWest, Himmelreichallee 40, 48149 Münster, Tel:0251/973233-997, eMail:info@lbsi-nw.de
GF:Martin Englert, Volker Goldbeck
3. Es besteht ein Widerrufsrecht
4. Weitere Infos: verbraucherinfo.lbsi-nordwest.de
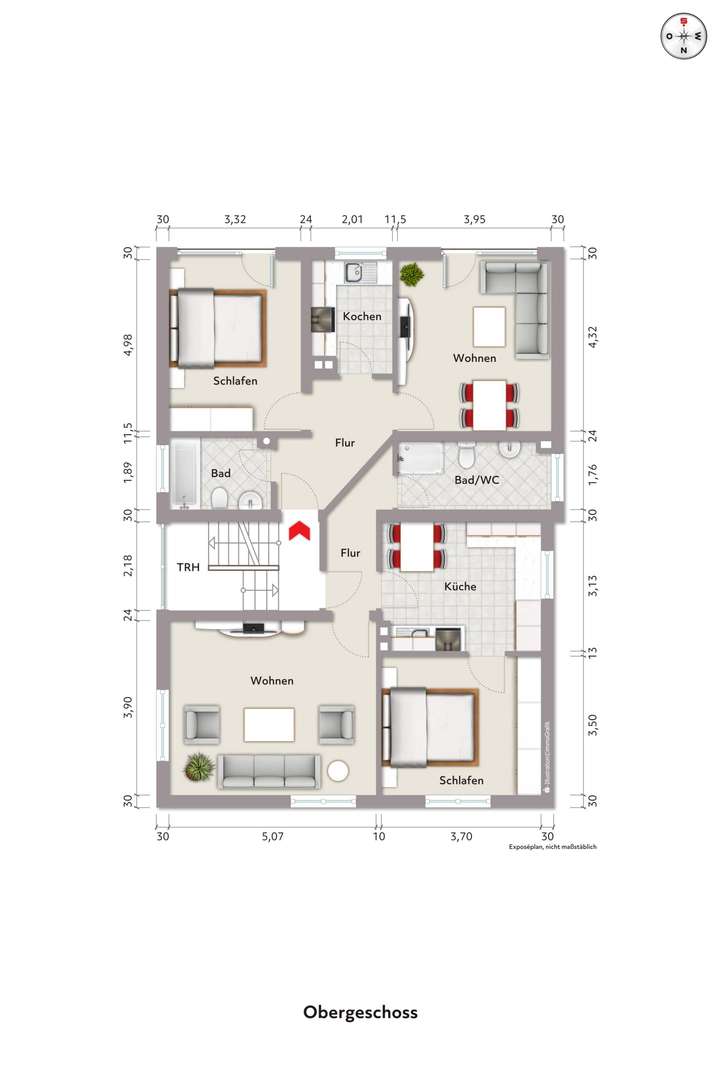
Grundriss
69633821
>
>
69633791
>
>
69741511
>
>
69633801
>
>
Adresse
44319 Dortmund
Interessante Orte
Preis- und Lageinformationen
Preistrend für Bestandsimmobilien in Asseln