Ob für den Eigenbedarf mit großzügigem Raumangebot für Familie, Beruf und Freizeit – oder als verlässliche Kapitalanlage mit nachhaltiger Vermietbarkeit: Diese rund 116 m² große Erdgeschosswohnung in einer ruhigen Wohnlage von Bad Kreuznach erfüllt höchste Ansprüche an Wohn- und Investitionsqualität. Die gelungene Kombination aus durchdachter Grundrissgestaltung, gepflegter Ausstattung, privatem Gartenanteil und einem verkehrsberuhigten Umfeld macht dieses Objekt zu einer seltenen Gelegenheit.
Das gesamte Gebäude wurde im Jahr 2013 umfassend kernsaniert. Im Zuge der Sanierung wurden unter anderem sämtliche Strom- und Wasserleitungen erneuert, dreifach verglaste Fenster verbaut sowie die Heizungsanlage durch ein modernes Pellet-System ersetz, welche ebenfalls eine Fußbodenheizung in der gesamten Wohnung beinhaltet. Die energetische Einstufung der Wohnung (Klasse B) sorgt für dauerhaft niedrige Betriebskosten und spiegelt den insgesamt sehr gepflegten technischen Zustand wider.
Aktuell ist die Wohnung vermietet – bei Bedarf ist eine Eigennutzung nach Absprache möglich. Somit eignet sie sich sowohl für Kapitalanleger mit langfristigem Horizont als auch für künftige Eigennutzer, die heute investieren und morgen einziehen möchten.
FÜR DIESE EIGENTUMSWOHNUNG kostenfrei und unverbindlich ein Kreditangebot einholen.
Wir prüfen über 900 Banken für Sie und binden alle verfügbaren Fördermittel ein.
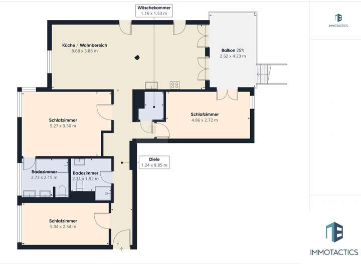
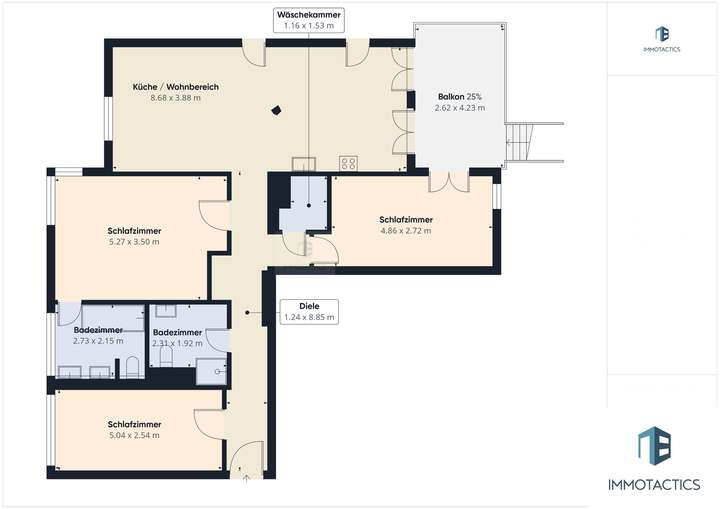
Wohnqualität trifft Variabilität: Drei Schlafzimmer, zwei Bäder, offenes Wohnkonzept
Die Aufteilung der Wohnung ist ein echtes Plus: Drei abgeschlossene Schlafzimmer eröffnen vielfältige Nutzungsmöglichkeiten – für Familien, Berufstätige mit Homeoffice oder als Kombination aus Wohnen und Arbeiten. Der Wohn- und Essbereich ist großzügig geschnitten, lichtdurchflutet und bildet das zentrale Element der Wohnung. Eine moderne, offen gestaltete Küche schafft einen fließenden Übergang zum Wohnbereich – ein Ort, der sowohl Funktionalität als auch Atmosphäre bietet.
Zwei voll ausgestattete Bäder – darunter ein im amerikanischem Stil gebautem Masterbad mit Tageslicht, Badewanne und Doppelwaschtisch, welches vom Schlafzimmer aus begehbar ist, sowie ein weiteres Duschbad – sorgen für komfortable Abläufe im Alltag. Praktisch: Ein separater Hauswirtschaftsraum mit Waschmaschinenanschluss bietet zusätzlichen Stauraum.
Privater Gartenanteil – Wohnraum mit Mehrwert
Besonders hervorzuheben ist der private Garten, der direkt über den überdachten Balkon zugänglich ist. Diese grüne Fläche erweitert den Wohnbereich nach draußen und bietet Raum für Erholung, Spiel oder individuelle Gestaltungsideen – ein echter Mehrwert für alle, die Wert auf Außenfläche legen.
Zur Wohnung gehören zwei Stellplätze: ein Carport-Stellplatz sowie ein zusätzlicher Außenstellplatz. Beide befinden sich in direkter Nähe zur Wohnung und sorgen für bequemes und sicheres Parken – sowohl für den eigenen Gebrauch als auch für Gäste.
Der Kaufpreis pro Stellplatz beträgt jeweils 10.000 €.
Fazit: Eine Investition in Lebensqualität – und in Zukunftssicherheit
Diese Erdgeschosswohnung überzeugt mit einer gelungenen Verbindung aus Wohnkomfort, moderner Ausstattung und attraktiver Lage. Der durchdachte Grundriss, der private Gartenanteil und die solide technische Basis schaffen ideale Voraussetzungen – für ein entspanntes Wohnen ebenso wie für eine nachhaltige Kapitalanlage.
Ob zur Eigennutzung oder als Investment: Wer Wert auf Qualität, Beständigkeit und Entwicklungspotenzial legt, trifft mit diesem Objekt eine fundierte Entscheidung. Immobilien mit diesem Profil sind selten – und entsprechend gefragt.
Moderne 4 Zimmer-Erdgeschosswohnung mit 2 Bädern und Garten - Ideal Für Familien, Paare & Anleger
55543 Bad Kreuznach
Die vollständige Adresse der Immobilie erhalten Sie vom Anbieter.
Auf Karte anzeigen
Die vollständige Adresse der Immobilie erhalten Sie vom Anbieter.
Finanzierungszertifikat
In nur zwei Minuten zu Ihrem persönlichen Finanzierungszertifkat.
Infos
| Wohnungskategorie | Erdgeschosswohnung |
|---|---|
| Etagenzahl | 3 |
| Wohnfläche ca. | 116 m2 |
| Bezugsfrei ab | nach Vereinbarung |
| Zimmer | 4 |
| Schlafzimmer | 3 |
| Badezimmer | 2 |
| Anzahl Garage/Stellplatz | 2 |
Kosten
| Kaufpreis |
390.000 € |
|---|---|
| Hausgeld |
520 € |
| Preis für Garage/Stellplatz | 10.000 € |
| Provision |
3,57% inkl. gesetzlicher Umsatzsteuer. |
Finanzierungsrechner:
Kaufpreis:
600.000 €
Eigenkapital:
600.000 €
Monatliche Rate
0 €
Effektiver Jahreszins
0 %
Sollzinsbindung
10 Jahre
Bausubstanz & Energieausweis
| Baujahr | 1955 |
|---|---|
| Letzte Sanierung | 2013 |
| Objektzustand | Neuwertig |
| Qualität der Austattung | Gehoben |
| Heizungsart | Zentralheizung |
| Wesentliche Energieträger | Pelletheizung |
| Energieausweis | liegt vor |
| Energieausweistyp | Verbrauchsausweis |
| Energieverbrauchskennwert | 65,1 kWh/(m²*a) |
| Energieeffizienzklasse | B |
65,1
kWh/(m²*a)
Energieeffizienzklasse B
- A+
- A
- B
- C
- D
- E
- F
- G
- H
- 0
- 25
- 50
- 75
- 100
- 125
- 150
- 175
- 200
- 225
- >250
Beschreibung des Objekts
Ausstattung
Großzügige ca. 116 m² Wohnfläche im Erdgeschoss
Drei Schlafzimmer – ideal für Familien oder Homeoffice
Offener Wohn-Essbereich mit Zugang zu Balkon und Garten
Zwei Bäder: Tageslichtbad mit Wanne + separates Duschbad
Zusätzliches Gäste-WC
Großer überdachter Balkon mit direktem Gartenzugang
Privater Gartenbereich
Abstellraum in der Wohnung
Bodenbeläge: Hochwertiges Parkett und Fliesen
Personenaufzug im Haus – barrierearme Erreichbarkeit
Zentrale Pelletheizung (Energieklasse B)
Baujahr der Haustechnik 2013 – modern und effizient
Schnelle Anbindung an A61, Innenstadt & ÖPNV
Zwei Stellplätze jeweils 10.000 €.
Lage
Die Immobilie befindet sich in einem attraktiven, aufgewerteten Wohnquartier im südlichen Teil von Bad Kreuznach. Die Lage ist zentral und dennoch ruhig, geprägt von viel Grün und einer angenehmen Wohnstraßen-Atmosphäre mit Tempo-30-Zone und überwiegend Anliegerverkehr.
Die Anbindung ist optimal: kurze Wege ins Zentrum, frische Luft und Grün in der unmittelbaren Umgebung sowie eine ruhige Wohnstraße garantieren hohen Wohnkomfort. Insgesamt überzeugt die Lage mit einer seltenen Kombination aus Stadtnähe, naturnahem Umfeld und urbanem Flair.
In nur etwa 10 Minuten erreicht man die Anschlussstellen der Autobahn A 61 zur A 60 in Richtung Mainz und Wiesbaden und Rhein Main Gebiet. Damit ist die Erreichbarkeit sowohl für Pendler als auch für Vielfahrer ideal.
Sonstige Angaben
Die in unserem Exposé enthaltenen Aussagen basieren ausschließlich auf Informationen, die uns vom Verkäufer und von Handwerkern zur Verfügung gestellt wurden.
Wir übernehmen daher keine Gewähr für die Vollständigkeit und Richtigkeit der Angaben.
Das Immobilienangebot ist freibleibend.
Irrtum und Zwischenverkauf bleiben vorbehalten.
Weitere Details zum Objekt erläutern wir Ihnen gerne bei einem Besichtigungstermin.
Wir bitten um Ihr Verständnis dafür, dass wir nur Anfragen mit vollständigen Adressdaten inklusive Vor- und Zuname, Anschrift, Telefon-/Mobilnummer und Email Adresse bearbeiten können.
Sie suchen nach der passenden Finanzierung? Wir finden sie!
Als ungebundene Finanzierungsvermittler vergleichen wir über 900 Banken und finden einen optimalen Kredit für Sie.
Sparen Sie Geld und Zeit! Mit Sicherheit günstiger als Ihre Hausbank.
Informieren Sie sich jetzt hier, kostenfrei und unverbindlich über Finanzierungsmöglichkeiten zu dieser Immobilie. Fördermittelberatung inklusive.
Wir freuen uns auf den Kontakt zu Ihnen.
Immotactics GmbH
0671 – 20272030
info@immotactics.de
Grundriss
Grundriss Giraffe
>
>
Adresse
55543 Bad Kreuznach
Interessante Orte
Preis- und Lageinformationen
Preistrend für Bestandsimmobilien in Bad Kreuznach