Modern, stilvoll und effizient
– das Doppelhaus vereint zeitlose Architektur mit durchdachtem Wohnkomfort und hochwertiger Bauweise.
Mit seinem eleganten Walmdach und der klaren Fassadengestaltung fügt sich das Haus harmonisch in verschiedenste Wohnumgebungen ein und überzeugt sowohl optisch als auch funktional.
Auf rund 139 m² Wohnfläche je Haushälfte bietet das Haus Platz für Paare und Familien.
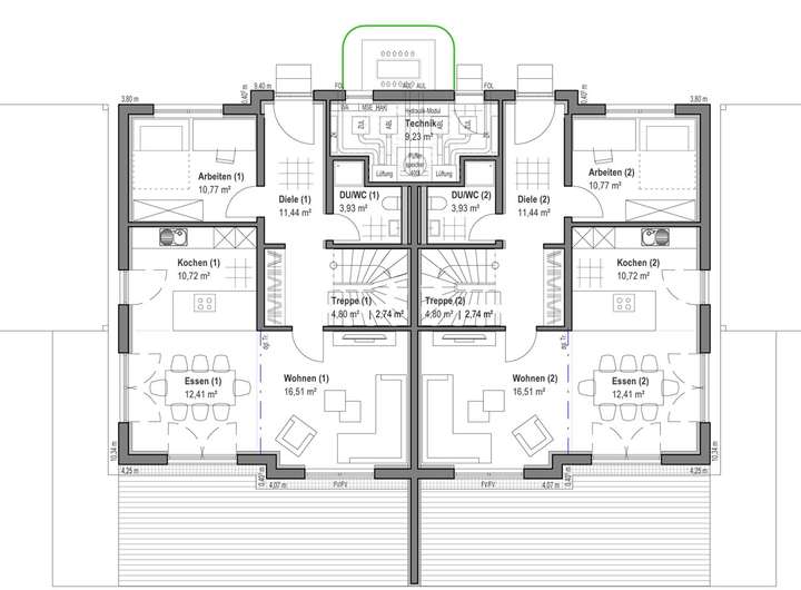
Die offene Raumaufteilung im Erdgeschoss schafft ein großzügiges Wohngefühl: Der helle Wohn-Essbereich mit offener Küche bildet das Herzstück des Hauses und lädt zum gemeinsamen Leben und Genießen ein.
Große Fensterflächen sorgen für viel Tageslicht und einen fließenden Übergang zur Terrasse oder dem Garten.
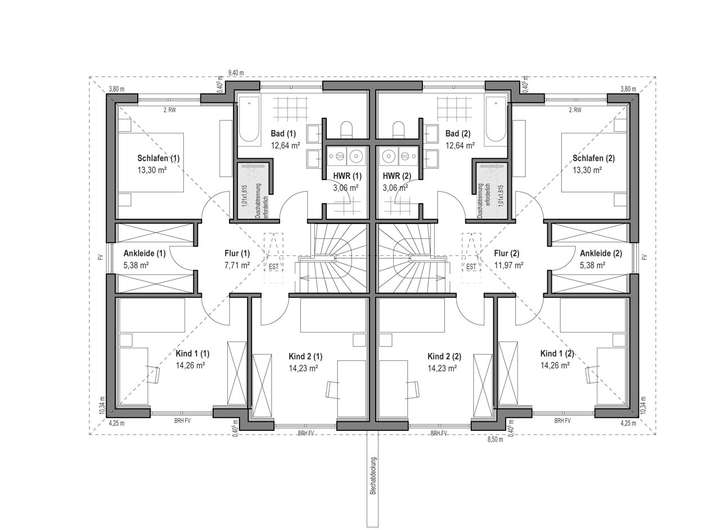
Im Obergeschoss erwarten Sie drei gut geschnittene Zimmer – ideal als Schlafzimmer, Kinderzimmer oder Homeoffice – sowie ein modernes Familienbad.
Optional lässt sich die Raumaufteilung flexibel an Ihre Bedürfnisse anpassen.
(Abbildung zeigt Sonderausstattung).
LUXHAUS steht für höchste Qualität im Fertigbau.
Die Bauweise in diffusionsoffener Climatic-Wand-Technologie sorgt für ein wohngesundes Raumklima, exzellente Energieeffizienz und ein rundum gutes Wohngefühl.
Ausstattung und Grundriss können individuell geplant und auf Ihre Wünsche abgestimmt werden.
Hier entsteht Ihr neues Zuhause – Grundstück inkl. Planung mit LUXHAUS
40764 Langenfeld (Rheinland)
Die vollständige Adresse der Immobilie erhalten Sie vom Anbieter.
Auf Karte anzeigen
Die vollständige Adresse der Immobilie erhalten Sie vom Anbieter.
Finanzierungszertifikat
In nur zwei Minuten zu Ihrem persönlichen Finanzierungszertifkat.
Infos
| Haustyp | Doppelhaushaelfte |
|---|---|
| Etagenzahl | 2 |
| Wohnfläche ca. | 139 m2 |
| Grundstücksfläche | 340 m2 |
| Zimmer | 4 |
| Schlafzimmer | 4 |
| Badezimmer | 1 |
Kosten
| Kaufpreis |
685.050 € |
|---|---|
| Provision | Nein |
Finanzierungsrechner:
Kaufpreis:
600.000 €
Eigenkapital:
600.000 €
Monatliche Rate
0 €
Effektiver Jahreszins
0 %
Sollzinsbindung
10 Jahre
Bausubstanz & Energieausweis
| Bauphase | Haus in Planung (projektiert) |
|---|---|
| Qualität der Austattung | Gehoben |
| Heizungsart | Wärmepumpe |
Beschreibung des Objekts
Ausstattung
Hochwertige Climatic-Wand-Technologie für exzellente Energieeffizienz und ein wohngesundes Raumklima
Großzügiger, offener Wohn-/Ess-/Kochbereich mit viel Tageslicht
Dreifach verglaste Fenster mit elektrischen Rollläden
Modernes Bad mit bodengleicher Dusche und Marken-Sanitärobjekten
Fußbodenheizung in allen Wohnräumen
Luft-Wasser-Wärmepumpe für nachhaltiges Heizen
Hochwertiger Estrich, Malerarbeiten und Bodenbeläge nach Bemusterung
Optional: Smart-Home-Vorbereitung, Photovoltaik, Carport oder Garage
Zzgl. der ortsüblichen Baunebenkosten (wir beraten Sie gerne!)
Abbildungen zeigen Sonderausstattung, diese sind nicht im angegebenen Kaufpreis enthalten.
Lage
Das Baugrundstück befindet sich in einer Wohnstraße mit Tempo 30,. Es liegt im beliebten Stadtteil Berghausen, etwa 1,3 km nordwestlich vom historischen Langenfelder Zentrum entfernt – fußläufig in wenigen Minuten erreichbar.
Ein Bodengutachten liegt bereits vor.
Sonstige Angaben
LUXHAUS bietet Ein- und Zweifamilienhäuser in diffusionsoffener Holztafelbauweise an. Die Häuser zeichnen sich durch individuelle Planung und Fertigung ohne Rastermaße, anspruchsvolle Architektur und innovative Technik aus. Die moderne LUXHAUS Musterhaus-Architektur ist vom klassischen Bauhaus-Stil inspiriert und in individuellen Wohnkonzepten in geradlinigem Design mit liebevollen Details interpretiert.
Darüber hinaus bietet LUXHAUS ein breites Spektrum an Ideen und Erfahrungen, um Häuser für den ganz persönlichen Stil und die wirtschaftlichen Möglichkeiten der Bauherren umzusetzen. Von Anfang an stehen dem Kunden kompetente Berater zur Seite. Welche Räume braucht der Bauherr, um seine Lebensart zu verwirklichen? Welche Formen passen zum individuellen Stil? Bei welcher Deckenhöhe fühlt er sich am wohlsten und welche Haustechnologie unterstützt die individuellen Gewohnheiten am besten?
LUXHÄUSER sind nicht nur in der Architektur und in der Haustechnologie, sondern auch im Interieurdesign in jedem Detail durchdacht. Bei allen Fragen rund um Design sowie Auswahl von Farben und Materialien für den Innenausbau stehen dem Kunden Innenarchitekten zur Verfügung.
In der LUXHAUS Boutique können die Bauherren sich in der Planungsphase in aller Ruhe beraten lassen.
Weitere Dokumente
LUXHAUS MehrwertebroschüreGrundriss
>
>
Adresse
40764 Langenfeld (Rheinland)
Interessante Orte
Preis- und Lageinformationen
Preistrend für Bestandsimmobilien in Langenfeld (Rheinland)