Gut geschnittenes Baugrundstück am Ortsrand von Stade-Haddorf zu verkaufen, bevorzugt für ein größeres Wohnprojekt.
Baugrundstück für Ihr Wohnprojekt
21683 Stade
Die vollständige Adresse der Immobilie erhalten Sie vom Anbieter.
Auf Karte anzeigen
Die vollständige Adresse der Immobilie erhalten Sie vom Anbieter.
Finanzierungszertifikat
In nur zwei Minuten zu Ihrem persönlichen Finanzierungszertifkat.
Infos
| Vermarktungsart | Kaufen |
|---|---|
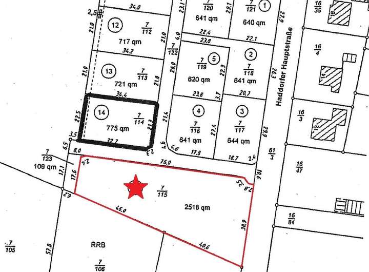
| Grundstücksfläche | 2.518 m2 |
| Erschließung | Erschlossen |
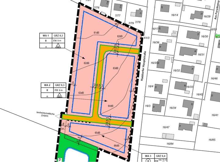
| Bebaubar nach | Bebauungsplan |
Kosten
| Miete pro Jahr |
580.000 € |
|---|---|
| Provision |
3,57 % inkl. ges. MwSt. Die Käufer-Provision ist verdient und fällig mit notarieller Beurkundung. Mit dem Verkäufer wurde ein provisionspflichtiger Maklervertrag in gleicher Höhe abgeschlossen. |
Finanzierungsrechner:
Kaufpreis:
600.000 €
Eigenkapital:
600.000 €
Monatliche Rate
0 €
Effektiver Jahreszins
0 %
Sollzinsbindung
10 Jahre
Beschreibung des Objekts
Lage
Neubaugebiet am Rande von Stade-Haddorf.
Bushaltestellen erreichen Sie in nur wenigen Gehminuten. Fußläufig liegen außerdem Discounter, ein Supermarkt, Baumärkte und viele andere Einkaufsmöglichkeiten. Kindergarten und Grundschule befinden sich nur 5 min Fußweg entfernt.
Der Ortsteil Haddorf mit rund 2.500 Einwohnern liegt in ländlich geprägter Umgebung und ist ca. 6 km von der Stader Innenstadt entfernt.
Die Stadt Stade ist die Kreisstadt des gleichnamigen Landkreises und hat rund 46.000 Einwohner. Stade liegt an der Schwinge in unmittelbarer Nähe zur Elbe, eingebettet in den schönen Regionen Kehdingen und Altes Land. Die sehenswerte Altstadt von Stade lädt zum gemütlichen Bummeln und Shoppen ein. Nur etwa 45 Kilometer westlich von Hamburg gelegen gehört Stade bereits zur Metropolregion Hamburg und verfügt auch aufgrund dessen über regelmäßige Zug- und S-Bahn-Verbindungen in die große Hansestadt.
Sonstige Angaben
Bitte nutzen Sie das entsprechende Kontaktformular, damit wir Ihnen unser ausführliches Exposé zur Verfügung stellen können. Wir bitten um Verständnis, dass wir Informationen zu unseren Objekten nur erteilen, wenn Sie bei Ihrer Anfrage Ihre vollständige Adresse, E-Mail und Telefonnummer angeben. Telefonisch erreichen Sie den Ansprechpartner für diese Immobilie unter 04143 - 9901 49.
VERBRAUCHERINFO:
1. Maklerleistung ist der Nachweis der Gelegenheit zum Abschluss eines Vertrages bzw. Vermittlung eines Vertrages über eine Immobilie gegen die Courtagezahlungspflicht des Kunden
2. Unternehmer, Anschrift, Beschwerdeadressat
OVB-Immobilien GmbH, Mühlenstraße 6-12, 26789 Leer
Tel.: 0491-9272200, Fax: 0491-9272202
GF: Georg Alder, Thomas Lüken, Carola Meyer-Diekmann
3. Es besteht ein Widerrufsrecht
4. Wir haben einen provisionspflichtigen Maklervertrag in gleicher Höhe mit dem Verkäufer abgeschlossen (§656c BGB)
5. Wir verweisen auf unsere Allgemeinen Geschäftsbedingungen