Dieses sehr gepflegte, aber renovierungsbedürftige Einfamilienhaus mit Garage besticht durch seinen zeittypischen Charme sowie seine solide Bauweise und befindet sich in verkehrsberuhigter Lage in Augustfehn - direkte Nähe zum Bahnhof!
Das eingeschossige Siedlungshaus mit Teilkeller, Erdgeschoss und ausgebautem Dachgeschoss wurde im Jahr 1964 in massiver Klinkerbauweise mit Satteldach errichtet. Im Jahr 1975 wurde das Wohnzimmer um einen Flachdachanbau erweitert.
Räumlichkeiten:
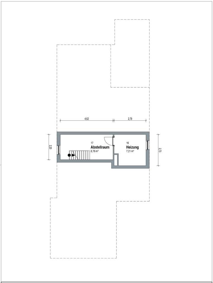
a) Kellergeschoss
zwei Kellerräume
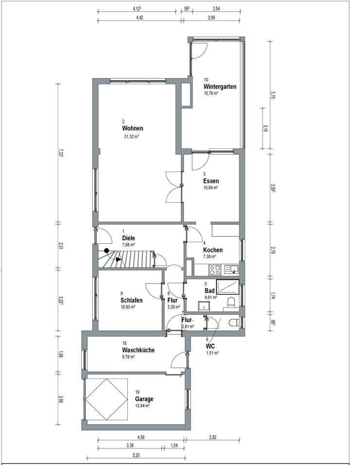
a) Erdgeschoss
Eingangsdiele, großzügiges Wohnzimmer, Esszimmer mit Zugang zum Wintergarten, Küche, Schlafzimmer, Duschbad (barriererfrei) und Flurbereich
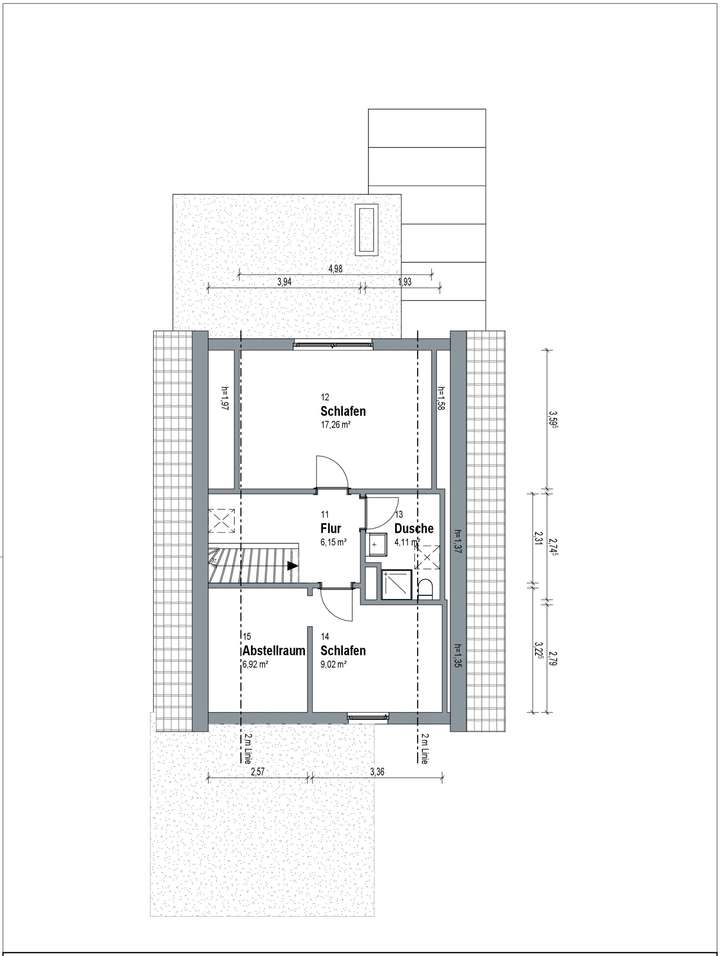
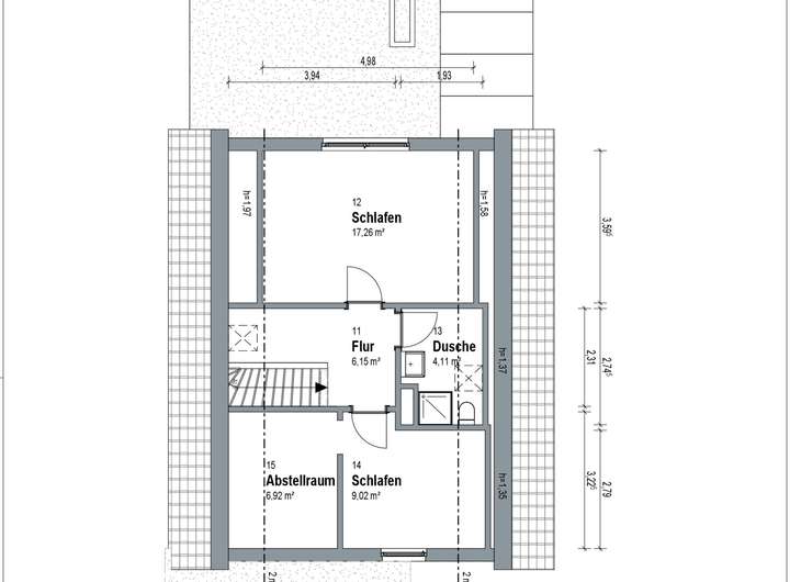
b) Dachgeschoss
Drei Schlafzimmer, Duschbad und Flur.
Die Wohnfläche beträgt ca. 126,15 m².
An Nutzfläche stehen ca. 39,69 m² zur Verfügung.
In seinen Grenzen ist das Grundstück von einem Zaun umstanden und eignet sich idealerweise für die Hundehaltung. Die Hoffläche bietet Stellflächen für mehrere Fahrzeuge (auch Wohnmobil geeignet).
Das gut gepflegte, charakterstarke Haus verfügt über eine gute Bausubstanz; ideal für den versierten Handwerker, der hier in Eigenleistung ein schönes Zuhause für sich und seine Familie gestalten kann.
Die Übergabe kann kurzfristig erfolgen.
Der Energieausweis ist in Vorbereitung.
++ Gepflegtes Familienhaus mit Garage in guter Wohnlage von Augustfehn! ++
26689 Apen
Die vollständige Adresse der Immobilie erhalten Sie vom Anbieter.
Auf Karte anzeigen
Die vollständige Adresse der Immobilie erhalten Sie vom Anbieter.
Finanzierungszertifikat
In nur zwei Minuten zu Ihrem persönlichen Finanzierungszertifkat.
Infos
| Haustyp | Einfamilienhaus |
|---|---|
| Wohnfläche ca. | 126 m2 |
| Nutzfläche | 39,69 m2 |
| Grundstücksfläche | 765 m2 |
| Bezugsfrei ab | nach Vereinbarung |
| Zimmer | 5 |
| Schlafzimmer | 3 |
| Badezimmer | 2 |
Kosten
| Kaufpreis |
199.000 € |
|---|---|
| Provision |
Keine zusätzliche Käuferprovision! |
Finanzierungsrechner:
Kaufpreis:
600.000 €
Eigenkapital:
600.000 €
Monatliche Rate
0 €
Effektiver Jahreszins
0 %
Sollzinsbindung
10 Jahre
Bausubstanz & Energieausweis
| Baujahr | 1963 |
|---|---|
| Objektzustand | Renovierungsbedürftig |
| Qualität der Austattung | Normal |
| Heizungsart | Zentralheizung |
| Energieausweis | laut Gesetz nicht erforderlich |
Beschreibung des Objekts
Lage
Zu Fuß oder mit dem Rad, Sie können alles autofrei erledigen!
Schulen, Ärzte, Sporthallen, Supermärkte und der Bahnhof (Bahnlinie Oldenburg - Leer) befinden sich im unmittelbaren Umkreis.
Die Kreisstadt Westerstede ist ca. 12 km entfernt. Hier befinden sich u.a. die Ammerland-Klinik, Fachärzte, sämtliche Kreisbehörden und das Gymnasium als weiterführende Schule.
Augustfehn verfügt über sehr gute Verkehrsanbindungen, neben dem Bahnhof ist die BAB 28 (Anschlussstelle Nr. 4) ist nur ca. 5 km entfernt.
Der bekannte Kurort Bad Zwischenahn ist in ca. 15 Auto- bzw. Bahnminuten zu erreichen, die Oberzentren Oldenburg und Bremen in ca. ½ bzw. 1 Auto- bzw. Bahnstunde.
Sonstige Angaben
Zu diesem Objekt liegt ein ausführliches Exposé mit weiteren Detailinformationen vor, das Sie gerne bei uns anfordern können.
Telefonische Erreichbarkeit:
Montag - Freitag: 8.00 Uhr - 12.30 Uhr und 14.00 Uhr bis 17.30 Uhr
Samstag: 9.00 Uhr -12.00 Uhr
Sie möchten Ihre Immobilie verkaufen.....
..... und suchen den passenden Käufer?
Unabhängig davon, ob Sie aktuell oder erst in unbestimmter Zeit Ihre Immobilie verkaufen möchten, ist eine fundierte Beratung bares Geld wert. Wir wissen, worauf es beim professionellen Verkauf Ihrer Immobilie ankommt.
Über 60 Jahre Marktpräsenz und tausende Vermittlungen sprechen für sich.
Für ein kostenfreies und informatives Beratungsgespräch stehen wir Ihnen jederzeit gerne zur Verfügung.
Grundriss
Grundriss Erdgeschoss
>
>
Grundriss Dachgeschoss
>
>
Grundriss Kellergeschoss
>
>
Adresse
26689 Apen
Interessante Orte
Preis- und Lageinformationen
Preistrend für Bestandsimmobilien in Apen