Das massiv gebaute 3-FH aus dem Baujahr 1950 umfasst eine Grundstücksgröße von 1.036 m². Auf dem hinteren Teil des Grundstücks befindet sich eine Gewerbehalle mit einer Nutzfläche von ca. 500 m², die vielseitige Nutzungsmöglichkeiten bietet. Im Vorderhaus befinden sich 3 Wohneinheiten mit einer gesamten Wohnfläche von ca. 156 m². Zwei Wohnungen sind derzeit vermietet, die Wohnung im OG ist frei. Der Zugang zu den jeweiligen Bädern erfolgt im EG und OG jeweils über die Küche. Das Bad der DG-Wohnung ist über den Flur erreichbar. Ein separates WC in der EG-Wohnung ist ebenfalls über den Flur zugänglich. Zum Haus gehört ein großzügiger Garten mit schöner Grünfläche. Parkplätze sind im Freien vor dem Haus. Das Dach wurde 2024 isoliert und neu eingedeckt. Der ÖPNV ist in ca. 10 Minuten zu Fuß erreichbar.
3-Familienhaus mit gr. Gewerbehalle in ruhiger Lage von Griesheim
64347 Griesheim
Die vollständige Adresse der Immobilie erhalten Sie vom Anbieter.
Auf Karte anzeigen
Die vollständige Adresse der Immobilie erhalten Sie vom Anbieter.
Finanzierungszertifikat
In nur zwei Minuten zu Ihrem persönlichen Finanzierungszertifkat.
Infos
| Wohnfläche ca. | 156 m2 |
|---|---|
| Nutzfläche | 500 m2 |
| Grundstücksfläche | 1.036 m2 |
| Bezugsfrei ab | OG frei ab Juni |
| Zimmer | 6 |
| Schlafzimmer | 3 |
| Badezimmer | 3 |
| Garage/Stellplatz | Außenstellplatz |
| Anzahl Garage/Stellplatz | 4 |
Kosten
| Kaufpreis |
690.000 € |
|---|---|
| Provision |
7,14% inkl. gesetzl. MwSt. |
Finanzierungsrechner:
Kaufpreis:
600.000 €
Eigenkapital:
600.000 €
Monatliche Rate
0 €
Effektiver Jahreszins
0 %
Sollzinsbindung
10 Jahre
Bausubstanz & Energieausweis
| Baujahr | 1950 |
|---|---|
| Objektzustand | Gepflegt |
| Heizungsart | Zentralheizung |
| Wesentliche Energieträger | Öl |
| Energieausweis | liegt vor |
| Energieausweistyp | Verbrauchsausweis |
| Energieverbrauchskennwert | 184,2 kWh/(m²*a) |
| Energieeffizienzklasse | F |
184,2
kWh/(m²*a)
Energieeffizienzklasse F
- A+
- A
- B
- C
- D
- E
- F
- G
- H
- 0
- 25
- 50
- 75
- 100
- 125
- 150
- 175
- 200
- 225
- >250
Beschreibung des Objekts
Ausstattung
Heizung: Öl-Zentralheizung, Warmwasserversorgung über Boiler (EG) oder Durchlauferhitzer (OG; DG)
Fenster: Isolierverglasung Kunststoff, weiß
Böden: Laminat, Fliesen, PVC, Parkett
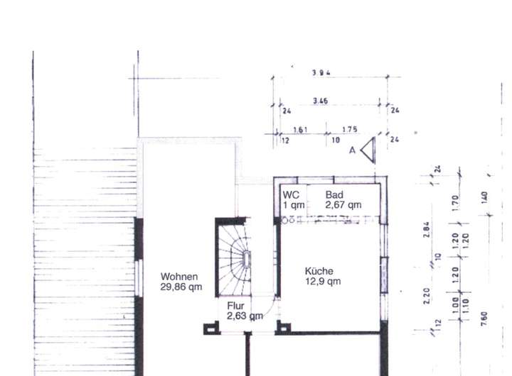
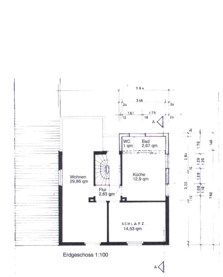
Bad: EG: Duschbad, Waschbecken, seprates WC
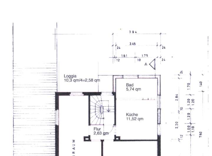
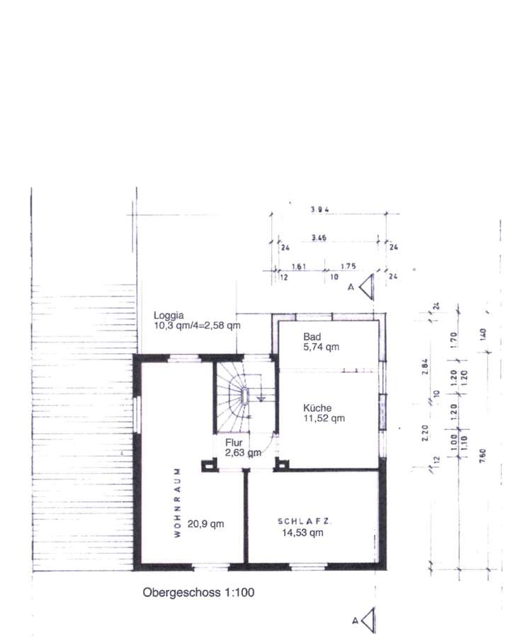
OG: Tgl. Wannenbad, WC, Waschbecken
DG: Tgl. Wannenbad, WC, Waschbecken
RAUMAUSSTATTUNG:
KG: Waschküche, Heizungsraum, Abstellraum
EG: Küche, Duschbad, Schlafzimmer, Wohn- und Essraum, seperates WC
OG: Küche, Tgl. Wannenbad, Schlafzimmer, Wohn- und Esszimmer mit Zugang zum Freisitz
DG: Küche, Tgl. Wannenbad, Schlafzimmer, Wohn- und Essraum
Halle: Ausstellungsräume z.T. über zwei Etagen, Werkstatt, Büroraum, seitlicher Anbau mit WC
Lage
Griesheim ist mit rund 27.000 Einwohnern die größte Stadt im südhessischen Landkreis Darmstadt-Dieburg. Sie liegt rund sechs Kilometer westlich von Darmstadt und 35 Kilometer südlich von Frankfurt am Main.
Schulen: Es gibt 3 Grund-, eine weiterführende Schule, sowie 2 Förderschulen
Infrastruktur: Die Bundesstraße B26 durchquert Griesheim der Länge nach. Sie bildet die verkehrstechnische Hauptachse der Stadt und verbindet sie insbesondere mit Darmstadt. Heute führen die Linien 4 und 9 der Darmstädter Straßenbahn an der Bundesstraße B26 (B26) entlang in die Darmstädter Innenstadt sowie in die unmittelbare Nähe des Darmstädter Hauptbahnhofs. An der heutigen Grenze zwischen Griesheim und Darmstadt liegt das Darmstädter Kreuz, das die Bundesstraße 26 (B26) mit der Bundesautobahn 5 (BAB 5) und der Bundesautobahn 67 (BAB 67) verbindet. Es fahren die Buslinien 42, 45 und 46 ab Griesheim in Richtung Riedstadt, Gernsheim, Groß-Gerau und Trebur.
Quelle: Wikipedia
Sonstige Angaben
MIETSITUATION:
Vorderhaus: Wohnungen im EG und DG vermietet, OG frei
Hinterhaus und Ausstellungsflächen: frei
MIETEINNAHMEN:
montl. Kaltmieten: EG: € 570,-
DG: €380,-
PROVISION:
Der Erwerber zahlt eine Provision in Höhe von 7,14 % inkl. gesetzl. MwSt. auf den Kaufpreis an die Firma Kleinsteuber Immobilien GmbH.
Angebote nur für den Empfänger selbst bestimmt. Weitergabe an Dritte nicht gestattet, anderenfalls Schadensersatzleistung in Höhe der ortsüblichen Nachweis- bzw. Vermittlungsgebühr.
ANGEBOTE FREIBLEIBEND - UNVERBINDLICH - IRRTUM - AUSLASSUNGEN - ZWISCHENVERWERTUNG vorbehalten.
Wir weisen darauf hin, dass die von uns weitergegebenen Objektinformationen vom Verkäufer bzw. von Dritten stammen und von uns weder auf Richtigkeit noch auf Vollständigkeit überprüft worden sind.
Grundriss
Grundriss EG
>
>
Grundriss OG
>
>
Grundriss DG
>
>
Grundriss Halle
>
>
Adresse
64347 Griesheim
Interessante Orte
Preis- und Lageinformationen
Preistrend für Bestandsimmobilien in Griesheim