In einer ruhigen, familienfreundlichen Wohngegend erwartet Sie dieses solide errichtete Zweifamilienhaus aus dem Jahr 2000 – eine seltene Chance für alle, die Wohnkomfort mit Zukunftsperspektive verbinden möchten. Auf rund 227 m² Wohnfläche vereint die Immobilie großzügiges Platzangebot mit finanzieller Entlastung durch attraktive Mieteinnahmen – ideal für Mehrgenerationenwohnen oder Familien, die Wert auf zusätzliche Sicherheit legen. Das Haus umfasst zwei Wohneinheiten: Die helle Erdgeschosswohnung ist aktuell vermietet und sorgt für regelmäßige Einnahmen. Im Ober- und Dachgeschoss erstreckt sich die charmante Maisonettewohnung, die sich perfekt für Eigennutzer eignet. Hier genießen Sie lichtdurchflutete Räume, einen offenen Wohn-Essbereich mit Kamin sowie ein behagliches Wohngefühl. Der Balkon im Obergeschoss lädt zum Verweilen ein und bietet den idealen Platz für den ersten Kaffee am Morgen. Durchdachte Grundrisse, moderne Ausstattung und ein wohnliches Ambiente machen dieses Haus zu einer attraktiven Wahl für alle, die Ruhe, Flexibilität und Lebensqualität schätzen. Zwei Stellplätze direkt vor der Tür erleichtern den Alltag zusätzlich. Die angenehme Nachbarschaft sowie die Nähe zu Schulen, Kindergärten, Einkaufsmöglichkeiten und Freizeitangeboten runden das Angebot zu einer idealen Wohnlage ab.
Ihre Highlights:
+ Ruhige, familienfreundliche Umgebung mit guter Anbindung
+ Großzügiger Wohn-Essbereich mit Kamin
+ Zwei Stellplätze direkt vor dem Haus
+ Begehrte Lage von Seligenstadt
+ Neue Heizungsanlage (2023)
+ Mehrgenerationen
+ Viel Wohnfläche
+ Mieteinahmen
Lassen Sie sich diese Gelegenheit nicht entgehen und melden Sie sich am besten heute noch! Wir von Engel & Völkers in Obertshausen freuen uns auf Sie!
Zweifamilienhaus mit großzügiger Maisonettewohnung und Mieteinnahmen
63500 Seligenstadt
Die vollständige Adresse der Immobilie erhalten Sie vom Anbieter.
Auf Karte anzeigen
Die vollständige Adresse der Immobilie erhalten Sie vom Anbieter.
Finanzierungszertifikat
In nur zwei Minuten zu Ihrem persönlichen Finanzierungszertifkat.
Infos
| Haustyp | Mehrfamilienhaus |
|---|---|
| Wohnfläche ca. | 227 m2 |
| Grundstücksfläche | 296 m2 |
| Bezugsfrei ab | nach Absprache |
| Zimmer | 7,5 |
| Schlafzimmer | 5 |
| Badezimmer | 3 |
| Anzahl Garage/Stellplatz | 2 |
Kosten
| Kaufpreis |
669.000 € |
|---|---|
| Provision |
3.57 % inkl. gesetzl. MwSt. |
Finanzierungsrechner:
Kaufpreis:
600.000 €
Eigenkapital:
600.000 €
Monatliche Rate
0 €
Effektiver Jahreszins
0 %
Sollzinsbindung
10 Jahre
Bausubstanz & Energieausweis
| Baujahr | 2000 |
|---|---|
| Letzte Sanierung | 2023 |
| Objektzustand | Gepflegt |
| Heizungsart | Zentralheizung |
| Wesentliche Energieträger | Gas |
| Energieausweis | liegt vor |
| Energieausweistyp | Bedarfsausweis |
| Energieverbrauchskennwert | 161,0 kWh/(m²*a) |
| Energieeffizienzklasse | F |
161,0
kWh/(m²*a)
Energieeffizienzklasse F
- A+
- A
- B
- C
- D
- E
- F
- G
- H
- 0
- 25
- 50
- 75
- 100
- 125
- 150
- 175
- 200
- 225
- >250
Beschreibung des Objekts
Ausstattung
Begehbarer Kleiderschrank
Einbaumöbel
Arbeitszimmer
Einbauküche
Split Klimaanlage
Fliesen
Laminat
Vollunterkellert
Kamin
Lage
Die Altstadt Seligenstadts und das idyllische Mainufer sind direkt vor der Haustür und laden Jung und Alt zu allen Jahreszeiten zum Bummeln und Flanieren ein. Auch als Ausflugsziel ist Seligenstadt sehr beliebt bei Touristen aus Nah und Fern. Viele Vereine, ein Freibad, individuelle Ladengeschäfte und reizvolle Cafès, sowie zahlreiche kulturelle Veranstaltungen, Feste und ein Kino sorgen zudem für hohen Freizeitwert. Die Autobahnen A3 und B45 sind mit dem Auto ebenso schnell zu erreichen. Auch das Nahverkehrsnetz ist bestens ausgebaut, der Bahnhof befindet sich ganz zentral in der Innenstadt. Insgesamt bietet Seligenstadt eine sehr gute Infrastruktur mit besten Einkaufsmöglichkeiten, Fachärzten und einem Krankenhaus. Moderne Kindergärten, Grund- und Realschulen sowie ein Gymnasium machen Seligenstadt auch für junge Familien attraktiv. Sowohl die Nähe zu zahlreichen Großstädten im Rein/Main Gebiet und dem Flughafen Frankfurt als auch zu Spessart, Taunus und Odenwald machen Seligenstadt zu einem zentral und dennoch ruhig gelegenen Wohnort von hoher Lebensqualität.
Sonstige Angaben
Der Makler-Vertrag mit uns und/oder unserem Beauftragten kommt durch die Bestätigung der Inanspruchnahme unserer Maklertätigkeit in Textform zustande, wie z.B. insbesondere die Unterschrift des Objektnachweises und/oder des Objekt-Exposés. Die Höhe der Courtage richtet sich nach den ab dem 23.12.2020 in Kraft getretenen gesetzlichen Regelungen zur Teilung der Maklercourtage. Hiernach wird die Courtage regelmäßig für beide Parteien (Eigentümer und Käufer) 3 % auf den Kaufpreis zuzüglich gesetzlicher Umsatzsteuer betragen und ist bei notariellem Vertragsabschluss verdient und fällig. Die Höhe der Bruttocourtage unterliegt einer Anpassung bei Steuersatzänderung. Grunderwerbssteuer, Notar- und Gerichtskosten trägt der Käufer.
Hinweise
Alle Angaben sind ohne Gewähr und basieren ausschließlich auf Informationen, die uns von unserem Auftraggeber übermittelt wurden. Wir übernehmen keine Gewähr für die Vollständigkeit, Richtigkeit und Aktualität dieser Angaben. Zwischenverkauf bleibt vorbehalten. Sollte das von uns nachgewiesene Objekt bereits bekannt sein, teilen Sie uns dieses bitte unverzüglich mit. Die Weitergabe dieses Exposees an Dritte ohne unsere Zustimmung löst gegebenenfalls Courtage- bzw. Schadensersatzansprüche aus. Im Übrigen gelten die beigefügten allgemeinen Geschäftsbedingungen für die Rechtsbeziehung zwischen Ihnen und der EV Immobilien Südhessen GmbH, Heusenstammer Straße 30, 63179 Obertshausen.
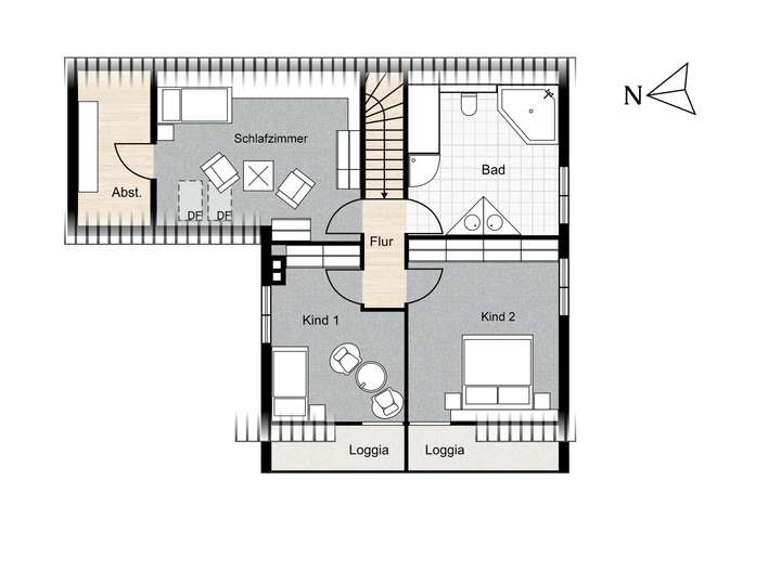
Grundriss
Erdgeschoss
>
>
Obergeschoss
>
>
Dachgeschoss
>
>
Untergeschoss
>
>
Adresse
63500 Seligenstadt
Interessante Orte
Preis- und Lageinformationen
Preistrend für Bestandsimmobilien in Seligenstadt