Auf der historischen Karte von 1615 ist dieses einzigartige Anwesen bereits verzeichnet:
Hier steht nicht nur ein besonderes Wohn- und Geschäftshaus zum Verkauf, sondern auch ein Stück Geschichte.
Heute wird ein neuer Eigentümer gesucht, der diesem Objekt neues Leben einhaucht. Das Mehrfamilienhaus war für einige Wochen reserviert. Die potenziellen Käufer mussten jedoch aus persönlichen Gründen vom Kauf Abstand nehmen. Der zuvor vereinbarte Preis gilt nun als Festpreis.
Auf ca. 900 m² Wohn- und Nutzfläche bieten sich vielfältige Nutzungsmöglichkeiten:
Zuletzt wurde das Objekt von den Eigentümern in fünf eigenständige Wohnungen aufgeteilt. Die Wohnungen sind zweckmäßig ausgestattet; eine davon wurde zeitgemäß modernisiert und verfügt über eine große Dachterrasse. Im Erdgeschoss des Anwesens wurde jahrzehntelang ein Metzgereibetrieb geführt.
Das Objekt bietet mit überschaubarem Aufwand ein enormes Potenzial. In der vorliegenden Umbauplanung wird von neun Wohneinheiten und einer Gewerbefläche im Erdgeschoss ausgegangen. Die reine Wohnfläche – ohne Gemeinschaftsflächen – würde sich auf etwa 800 m² belaufen. Hinzu käme eine etwa 90 m² große Gewerbeeinheit in bester Lage Wasserburgs. Die Wohneinheiten wären über den Greinbräu-Durchgang zugänglich, die Gewerbeeinheit über die Schustergasse.
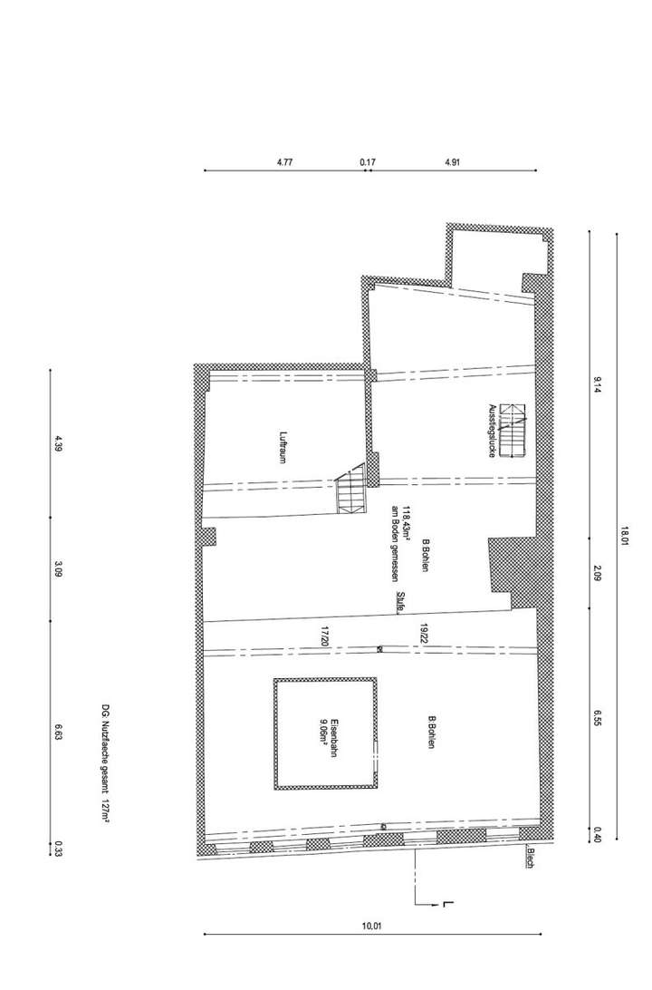
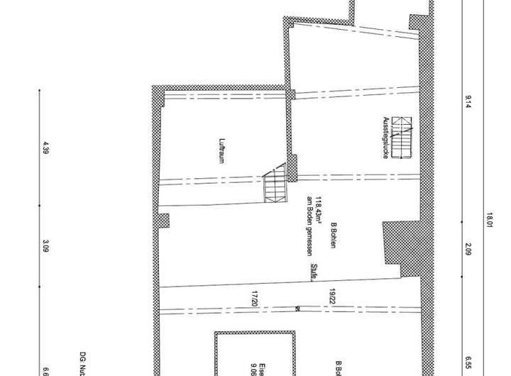
Im Dachgeschoss könnte eine sehr großzügige Penthouse-Wohnung entstehen. Kostenvoranschläge für die notwendige Dachanhebung liegen bereits vor. Eine großzügige Dachterrasse mit fantastischem Ausblick ist jetzt schon vorhanden.
In ersten Abstimmungen mit den zuständigen Vertretern der Bauverwaltung wurde die geplante Dachanhebung bereits besprochen. Gerne geben wir Ihnen hierzu nähere Informationen in einem persönlichen Gespräch weiter. Auch bei der Baugenehmigung und den Vorbereitungen zum Umbau unterstützen wir Sie selbstverständlich gerne.
Da das Objekt glücklicherweise unter Ensembleschutz steht und nicht als Einzeldenkmal geführt wird, gestalten sich Umbauten deutlich einfacher. Die geplante Dachanhebung wurde bereits mit dem Bauamt vorbesprochen.
Trotzdem müssen bauliche Veränderungen und Nutzungsänderungen selbstverständlich im Rahmen eines ordentlichen Antragsverfahrens – inklusive Bauausschuss – abgestimmt werden.
Mit einer AfA von 2,5 % sowie 9 % der Herstellungskosten (vgl. §§ 7–7h EStG) unterstützt das Finanzamt Ihr Vorhaben. Lassen Sie sich hierzu gerne von Ihrem Steuerberater beraten.
Diverse Fördermöglichkeiten der KfW – wie etwa der Kredit 261 mit bis zu 45 % Tilgungszuschuss und äußerst günstigen Zinsen – erhöhen die Rentabilität Ihrer Investition erheblich.
Lassen Sie sich bei einem Besichtigungstermin vor Ort von diesem großartigen Objekt überzeugen.
Vielleicht sind gerade Sie es, die das Erbe dieses historischen Hauses weitertragen.
Rufen Sie uns an – wir freuen uns darauf, Ihnen mit Rat und Tat zur Seite zu stehen.
Wieder verfügbar-Historisches Mehrfamilienhaus mit vielen Optionen
83512 Wasserburg am Inn
Die vollständige Adresse der Immobilie erhalten Sie vom Anbieter.
Auf Karte anzeigen
Die vollständige Adresse der Immobilie erhalten Sie vom Anbieter.
Finanzierungszertifikat
In nur zwei Minuten zu Ihrem persönlichen Finanzierungszertifkat.
Infos
| Haustyp | Mehrfamilienhaus |
|---|---|
| Wohnfläche ca. | 801 m2 |
| Nutzfläche | 90 m2 |
| Grundstücksfläche | 340 m2 |
| Bezugsfrei ab | ab sofort |
| Zimmer | 30 |
Kosten
| Kaufpreis |
1.750.000 € |
|---|---|
| Provision |
2,62 % inkl. gesetzlicher USt. |
Finanzierungsrechner:
Kaufpreis:
600.000 €
Eigenkapital:
600.000 €
Monatliche Rate
0 €
Effektiver Jahreszins
0 %
Sollzinsbindung
10 Jahre
Bausubstanz & Energieausweis
| Baujahr | 1600 |
|---|---|
| Objektzustand | Gepflegt |
| Wesentliche Energieträger | Strom |
| Energieausweis | laut Gesetz nicht erforderlich |
Beschreibung des Objekts
Lage
Inmitten der wunderschönen Altstadt, die jedes Jahr viele Touristen nach Wasserburg lockt, befindet sich dieses einzigarte Stadthaus.
Die ganze Schönheit der Wasserburger Altstadt mit seinen Restaurants, kleinen Geschäften und kulturellen Möglichkeiten steht Ihnen direkt ab Ihrer Haustür offen. Der malerische Inn ist nur wenige Gehminuten entfernt. Alle Geschäfte des täglichen Bedarfs befinden sich in unmittelbarer Umgebung.
Das italienische Flair, historische Häuser und eine malerische Altstadt mit vielen Gaststätten und Fachgeschäften haben Wasserburg die Bezeichnung der „nördlichsten Stadt Italiens“ beschert. Der Inn umfließt die Altstadt fast vollständig, und der historische Stadtkern konnte in Wasserburg weitestgehend erhalten werden.
Durch die schnell erreichten Bundesstraßen B304 und B15, die Sie direkt mit München, Rosenheim und dem Chiemgau verbinden, erreichen Sie zügig Ihre Fahrtziele. Der Wasserburger Bahnhof verbindet Sie außerdem durch eine Direktanbindung in ca. 60 Minuten mit dem Münchner Ostbahnhof - und das täglich! Der bereits genehmigte und in ca. 3 Jahren fertiggestellte S-Bahn-Anschluss wird die Stadt langfristig noch besser öffentlich anbinden.
Die lebendige Stadt Wasserburg am Inn hat 13.000 Einwohner und ist durch ihre weltoffene, kulturbegeisterte, sportliche und vor allem historischen Eigenschaften sehr bekannt. Weitere Informationen erhalten Sie auch unter https://www.wasserburg.de.
Sonstige Angaben
Die Grundrissplanung, inkl. den Angeboten zu der Dachanhebung sowie die Kalkulation zu diesem Projekt senden wir Ihnen gerne separat zu.
Finestep bietet dieses Objekt provisionspflichtig zum Kauf an.
Für die vom Eigentümer übernommenen Objektdaten übernimmt Finestep keine Gewähr in Bezug auf die Vollständigkeit, Richtigkeit und Aktualität dieser Informationen. Irrtum und Zwischenverkauf ist vorbehalten. Die Käuferprovision in Höhe von 2,62 % inkl. gesetzlicher USt. ist verdient und fällig mit Beurkundung des notariellen Kaufvertrages. Der Immobilienmakler hat einen provisionspflichtigen Maklervertrag mit dem Verkäufer in gleicher Höhe abgeschlossen.
Ist Ihnen das von Finestep nachgewiesene Objekt bereits bekannt, ist dies Finestep schriftlich spätestens innerhalb von fünf Werktagen unter Nennung der Quelle und des Nachweisdatums mitzuteilen. Sämtliche Unterschriften und Mitteilungen haben auch bei Übermittlung per Telefax und E-Mail Ihre Rechtsgültigkeit. Als Gerichtsstand wird München vereinbart sowie die Anwendung Deutschen Rechts.
Der Nachweis dieses Objekts ist ausschließlich für Sie persönlich bestimmt. Eine unberechtigte Weitergabe an Dritte ist daher nicht gestattet. Sollte eine weitere Person aus Ihrem Kreis ebenfalls Interesse an dem Objekt zeigen, teilen Sie uns dies bitte mit. Gerne werden wir ein eigenes, persönliches Angebot zusenden.
Die hier eingestellten Flächenangaben sind mit größter Sorgfalt recherchiert, erheben jedoch nicht den Anspruch auf Alleingültigkeit und werden lediglich unverbindlich zu Informationszwecken zur Verfügung gestellt.
Alle Angaben nach bestem Wissen und nach Angabe des Verkäufers. Irrtum und Zwischenverkauf vorbehalten. Dieses Exposé ist eine Vorabinformation, als Rechtsgrundlage gilt allein der notariell abgeschlossene Kaufvertrag
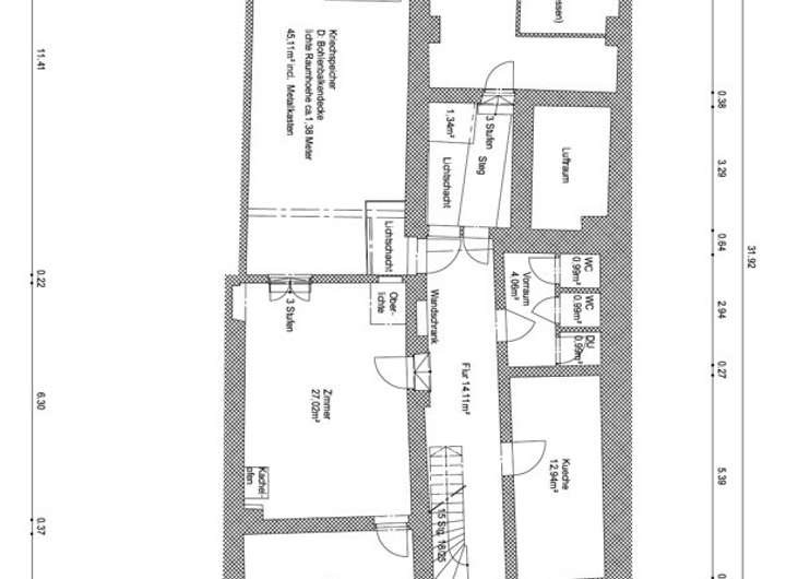
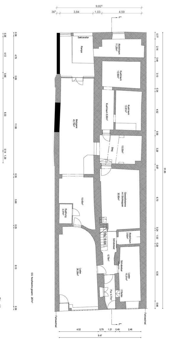
Grundriss
EG
>
>
1. OG
>
>
2. OG
>
>
3. OG
>
>
DG Bestand vor Anhebung
>
>
Adresse
83512 Wasserburg am Inn
Interessante Orte
Preis- und Lageinformationen
Preistrend für Bestandsimmobilien in Wasserburg am Inn