Das Double 7 punktet mit einer kreativen Raumgestaltung und einem bemerkenswerten Äußeren. Durch die markante Giebelwand wird das Doppelhaus zum Blickfang, während die beiden stilvollen Flachdachgiebel das moderne Erscheinungsbild vollenden und im Inneren für ein helles, lichtdurchflutetes Ambiente sorgen. Im Erdgeschoss erwarten Sie großzügige 62 m², die Ihnen vielfältigen Gestaltungsspielraum bieten. Große Fensterflächen lassen viel Licht herein und die offenen Raumübergänge ohne Türen vermitteln ein Gefühl von Offenheit und Herzlichkeit.
2 Doppelhaushälften, z.B. als Investitionsobjekt, oder Selbstbezug und Vermietung
83308 Trostberg
Die vollständige Adresse der Immobilie erhalten Sie vom Anbieter.
Auf Karte anzeigen
Die vollständige Adresse der Immobilie erhalten Sie vom Anbieter.
Finanzierungszertifikat
In nur zwei Minuten zu Ihrem persönlichen Finanzierungszertifkat.
Infos
| Haustyp | Doppelhaushaelfte |
|---|---|
| Etagenzahl | 2 |
| Wohnfläche ca. | 127 m2 |
| Grundstücksfläche | 1.080 m2 |
| Zimmer | 4 |
| Schlafzimmer | 3 |
| Badezimmer | 1 |
Kosten
| Kaufpreis |
1.180.000 € |
|---|
Finanzierungsrechner:
Kaufpreis:
600.000 €
Eigenkapital:
600.000 €
Monatliche Rate
0 €
Effektiver Jahreszins
0 %
Sollzinsbindung
10 Jahre
Bausubstanz & Energieausweis
| Baujahr | unbekannt |
|---|---|
| Bauphase | Haus in Planung (projektiert) |
| Qualität der Austattung | Gehoben |
| Heizungsart | Wärmepumpe |
Beschreibung des Objekts
Ausstattung
Im Preis enthalten:
Kaufpreis für aktuell verfügbaren Bauplatz
Dein tolles Energieeffizienzhaus in KfW55 Standard (auf
Wusch in KfW 40+)
Architektenleistung: Entwurfsplanung und Erstellung der
Bauanträge
Planänderungspauschale für freie Grundrissanpassung
Vermessungsleistung des Bauplatzes zur Erstellung des
Bauantrags
Bodengutachten von unabhängigem Gutachter
Moderne Wärmepumpe von ELCO, Buderus oder Tecalor
Sicherheitshaustüre mit Mehrfachverriegelung
3-fach verglaste Fenster im ganzen Haus
Dacheindeckung mit Betondachziegel
Dachrinnen und Fallrohre aus Titan-Zink
Aluminiumrolläden an allen Fenstern
Material für den Innenausbau: Dämm- und
Beplankungspaket, Spachtelmasse, Innenwandfarbe usw.
Gesamtes Innenaustattungspaket (Türen, Sanitärobjekte,
Bodenbeläge uvm.)
Blower Door Test und Erstellung des Energieausweises
Lieferung und Hausmontage inkl. Baukran
Bau-Sicherheitspaket (R+V Versicherungspaket):
inkl. Bauleistungsversicherung
inkl. Bauherren-Haftpflichtversicherung
inkl. Wohngebäudeversicherung
inkl. Feuer-Rohbauversicherung
inkl. Arbeitslosenversicherung
zzgl. Baunebenkosten
zzgl. Kaufnebenkosten des Grundstücks
Selbstverständlich bieten wir Ihnen das Haus in verschiedenen Ausbaustufen an.
Vom AUSBAUHAUS bis hin zum fertigen Objekt, stehen alle Möglichkeiten zur Verfügung.
Wir bieten Ihnen eine große Auswahl an Einfamilienhäusern mit einer Wohnfläche zwischen 114m² und 275m². Vom klassischen Haus für Paare oder kleine Familien über praktische Stadthäuser mit schmalem Schnitt bis hin zur großen Stadtvilla oder modernem Bungalow ist alles dabei.
Dabei können Sie unsere Fertighäuser ganz nach Ihren eigenen Wünschen gestalten. Sowohl die Dachform (Satteldach, Walmdach, Flachdach oder Pultdach) als auch zusätzliche Bauteile wie Erker, Balkon oder Giebel sind frei wählbar.
Lage
Bitte haben Sie Verständnis dafür, dass wir keine direkten Gespräche über Grundstücke führen. Wir bieten stattdessen einen umfassenden und kostenfreien Grundstücksservice für alle Hausinteressenten an. Wir möchten betonen, dass wir keine Grundstücksmakler sind, sondern vielmehr daran interessiert sind, Ihnen bei der Suche nach einem geeigneten Grundstück zu helfen.
Unser Grundstücksservice ist darauf ausgerichtet, Ihnen bestmöglich bei Ihrer Suche zu unterstützen. Wir halten ständig aktuelle Grundstücksangebote bereit, die wir je nach Ihren individuellen Wünschen und Ihrem Budget weiterleiten können. Dies ermöglicht es Ihnen, aus einer Auswahl von Grundstücken dasjenige auszuwählen, das am besten zu Ihren Vorstellungen passt.
Bitte zögern Sie nicht, uns für ein persönliches Gespräch zu kontaktieren, um herauszufinden, wie unser Grundstücksservice Ihnen helfen kann. Wir sind bestrebt, Ihnen dabei zu helfen, das ideale Grundstück für Ihr Traumhaus zu finden, und stehen Ihnen gerne mit unserem Fachwissen und unserer Erfahrung zur Seite.
Sonstige Angaben
Allkauf ist die ideale Wahl für alle, die aktiv an ihrem Traumhaus mitarbeiten möchten. Wir kombinieren moderne Architektur mit vielseitigen Hauskonzepten und intelligenter Raumgestaltung in höchster Qualität. Ob Sie ein Einfamilienhaus mit Satteldach oder Pultdach suchen oder eher zwei Vollgeschosse mit Walmdach bevorzugen - unsere HOME-Serie ist so flexibel wie Ihre Wünsche. Dank zahlreicher individueller Anbauteile können Sie Ihre eigenen vier Wände ganz nach Ihren Vorstellungen gestalten.
Allkauf steht für maximale Sicherheit, kurze Lieferzeiten und garantierte Fertigstellungen. Viele zukünftige Eigenheimbesitzer kennen Unsicherheiten: Was tun bei verzögerten Lieferungen oder unerwarteten Kostensteigerungen? Mit allkauf-Fertighäusern gehören diese Sorgen der Vergangenheit an! Wir bieten Ihnen schnelle Lieferzeiten, garantierte Sicherheitsmerkmale, Festpreisgarantien sowie Fertigstellungsgarantien.
Zu allen Häusern gehört:
- Architektenleistung zur Planung Ihres Hauses
- Umfangreiche Auswahl an Ausbauvarianten
- Anpassbarkeit dank individueller Anbauteile.
Weitere Dokumente
Siegel ProduktqualitätInstitut Preis-Leistungsverhäl
TÜV Zertifikat
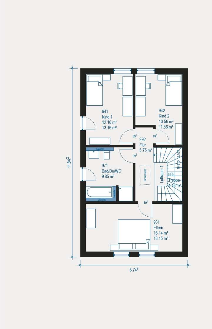
Grundriss
Grundriss Erdgeschoss
>
>
Grundriss Obergeschoss
>
>
Adresse
83308 Trostberg
Interessante Orte
Preis- und Lageinformationen
Preistrend für Bestandsimmobilien in Trostberg