Entdecken Sie Ihr neues Zuhause in Pinneberg: Dieses charmante Reihenendhaus aus dem Jahr 1974 bietet auf einer großzügigen Grundstücksgröße von ca. 349 m² alles, was das Herz begehrt. Mit einer Wohnfläche von ca. 138 m² und ca. 44 m² Nutzfläche bietet diese Immobilie reichlich Platz für Ihre Familie. Das Haus besticht durch seine gut durchdachte Raumaufteilung und verfügt über insgesamt vier Zimmer, darunter drei gemütliche Schlafzimmer, die sich ideal zum Entspannen und Zurückziehen eignen. Ergänzt wird das Raumangebot in Form zusätzlicher Nutzfläche durch einen ca. 18 m² großen Anbau und einen Hauswirtschaftsraum im Erdgeschoss sowie einen wohnlich ausgebauten Trockenraum im Dachgeschoss mit einer Fläche von ca. 12 m². Der gepflegte Garten bietet zusätzlichen Raum für Freizeitaktivitäten und ist ein perfekter Rückzugsort an sonnigen Tagen. Abgerundet wird das Angebot durch einen fest zugeordneten Außenstellenplatz für Ihr Fahrzeug. Wenn Sie sich einen 360 Grad Blick von der Immobilie verschaffen möchten, verwenden Sie bitte folgenden Link: https://tour.ogulo.com/RQhG
Großzügiger Familientraum in ruhiger Lage
25421 Pinneberg
Die vollständige Adresse der Immobilie erhalten Sie vom Anbieter.
Auf Karte anzeigen
Die vollständige Adresse der Immobilie erhalten Sie vom Anbieter.
Finanzierungszertifikat
In nur zwei Minuten zu Ihrem persönlichen Finanzierungszertifkat.
Infos
| Haustyp | Reiheneckhaus |
|---|---|
| Wohnfläche ca. | 137 m2 |
| Nutzfläche | 43,65 m2 |
| Grundstücksfläche | 349 m2 |
| Bezugsfrei ab | nach Vereinbarung |
| Zimmer | 4 |
| Schlafzimmer | 3 |
| Badezimmer | 1 |
| Garage/Stellplatz | Außenstellplatz |
| Anzahl Garage/Stellplatz | 1 |
Kosten
| Kaufpreis |
455.000 € |
|---|---|
| Provision |
3,57 % inkl. MwSt. |
Finanzierungsrechner:
Kaufpreis:
600.000 €
Eigenkapital:
600.000 €
Monatliche Rate
0 €
Effektiver Jahreszins
0 %
Sollzinsbindung
10 Jahre
Bausubstanz & Energieausweis
| Baujahr | 1974 |
|---|---|
| Heizungsart | Gas-Heizung |
| Wesentliche Energieträger | Gas |
| Energieausweis | liegt vor |
| Energieausweistyp | Bedarfsausweis |
| Energieverbrauchskennwert | 159,5 kWh/(m²*a) |
| Energieeffizienzklasse | E |
159,5
kWh/(m²*a)
Energieeffizienzklasse E
- A+
- A
- B
- C
- D
- E
- F
- G
- H
- 0
- 25
- 50
- 75
- 100
- 125
- 150
- 175
- 200
- 225
- >250
Beschreibung des Objekts
Ausstattung
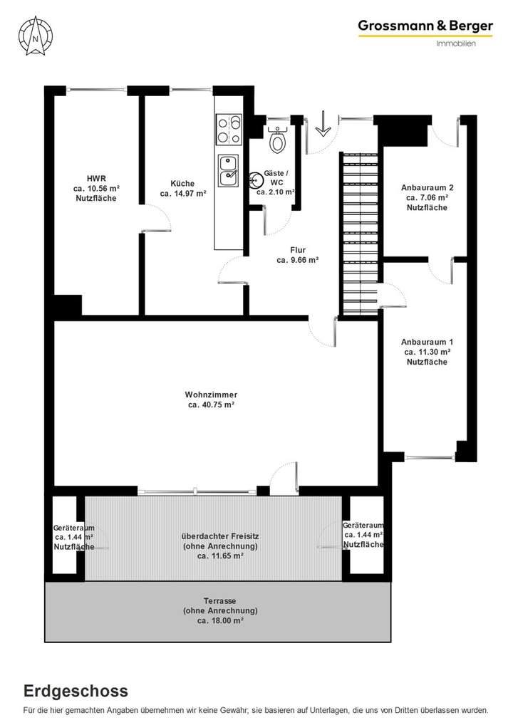
Die ca. 138 m² Wohnfläche verteilen sich im Erdgeschoss auf einen Flur, ein Gäste-WC mit Fenster, ein großzügiges Wohnzimmer, eine Küche mit einem anschließenden Hauswirtschaftsraum und einen im Jahre 1979 errichteten Anbau. Diese Gebäudeerweiterung bietet ca. 18 m ² wohnlich gestaltete Nutzfläche. Durch einen zusätzlichen Außenzugang ergeben sich hier vielfältige Nutzungsmöglichkeiten. Auf dieser Etage lässt sich vom Wohnbereich aus über die geschützte Terrasse der südlich ausgerichtete Garten betreten.
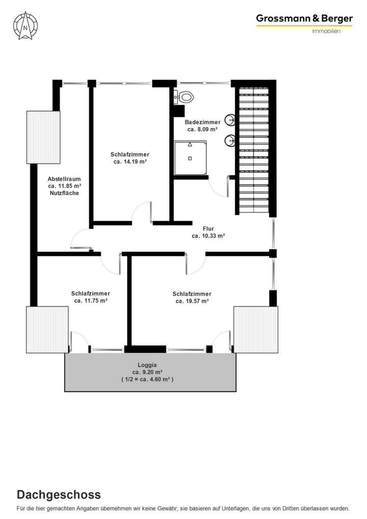
Über eine offene Holztreppe gelangen Sie in den Flur des Dachgeschosses. Hier stehen den Bewohnern drei Schlafzimmer zur Verfügung, wovon zwei den Zugang zu einer Loggia ermöglichen. Das Badezimmer verfügt über eine Dusche und zwei Waschbecken. Komplettiert wird das Raumangebot auf dieser Ebene von einem im Stil der restlichen Räume ausgebauten Abstellraum mit Fenster, der ca. 12 m² Nutzfläche bietet und sich aufgrund eines Einbauschranks ideal als Ankleidezimmer eignet. Der über eine Auszugstreppe vom Flur aus erreichbare ausgebaute Spitzboden stellt weitere Stellfläche zur Verfügung.
Lage
Das angebotene Reihenendhaus befindet sich in einer ruhigen, familienfreundlichen Wohngegend in Pinneberg. Diese charmante Stadt liegt in unmittelbarer Nähe zu Hamburg und ist somit ideal für Pendler, die die Vorzüge einer ruhigen Wohngegend genießen möchten, ohne auf die Annehmlichkeiten einer Großstadt verzichten zu müssen. Pinneberg überzeugt durch eine hervorragend ausgebaute Infrastruktur. Diverse Einkaufsmöglichkeiten, Schulen und Kindergärten sowie medizinische Einrichtungen sind in wenigen Minuten erreichbar. Die hervorragende Anbindung an das öffentliche Verkehrsnetz ermöglicht es, das Zentrum von Hamburg in kürzester Zeit zu erreichen, sei es mit dem Auto oder den öffentlichen Verkehrsmitteln.
Für Erholungssuchende bietet die Umgebung zahlreiche Parks und Grünflächen. Der nahegelegene Stadtwald und die vielen Spazier- und Radwege laden zu vielfältigen Freizeitaktivitäten im Freien ein. Darüber hinaus fördern diverse Sportvereine und Freizeitanlagen die örtliche Gemeinschaft und bieten viele Möglichkeiten zur Freizeitgestaltung.
Weitere Dokumente
OguloGrundriss
EG
>
>
DG
>
>
Adresse
25421 Pinneberg
Interessante Orte
Preis- und Lageinformationen
Preistrend für Bestandsimmobilien in Pinneberg