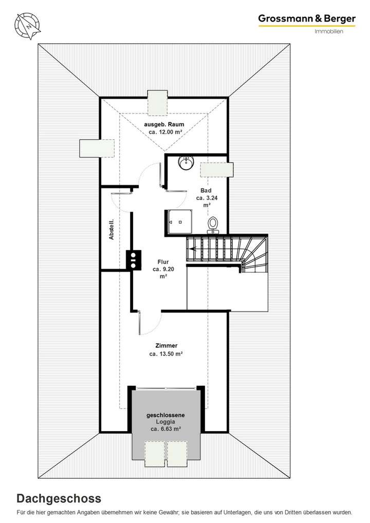
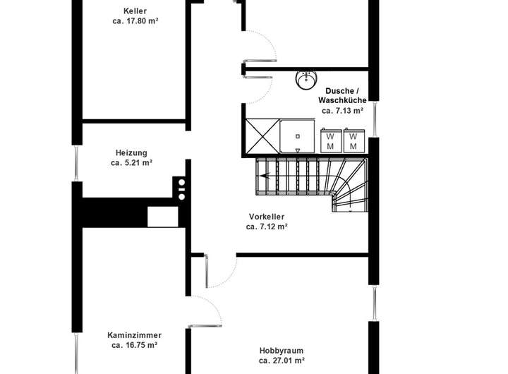
Das zum Verkauf stehende Einfamilienhaus wurde im Jahr 1977 auf einem ca. 634 m² großen Grundstück in massiver Bauweise errichtet. Auf ca. 242 m² Wohn- und Nutzfläche stehen Ihnen insgesamt fünf Zimmer im Erd- und Dachgeschoss sowie ein vielseitig nutzbarer Vollkeller zur Verfügung. Die offizielle Wohnfläche beträgt ca. 133 m². Hinzu kommen ein weiterer, ausgebauter Raum im Dachgeschoss und die nachträglich geschlossene Loggia.
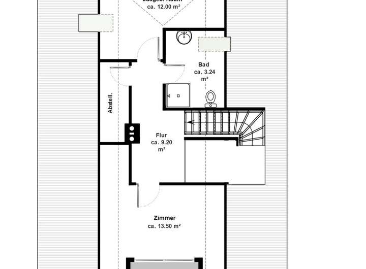
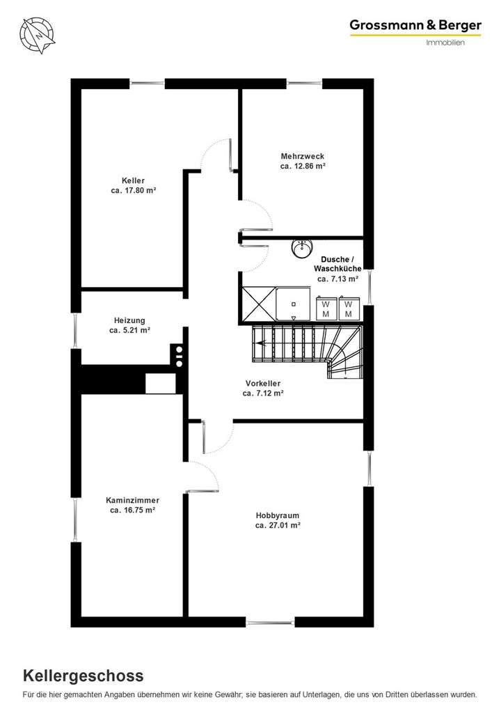
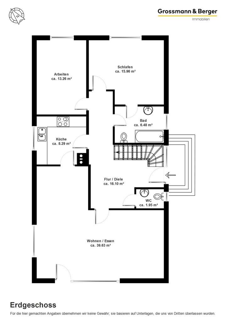
Der Eingangsbereich gewährleistet Zugang zu allen Ebenen. Im Erdgeschoss stehen ein großzügiger Wohn- und Essbereich mit Zugang zur Terrasse und zur separaten Küche zur Verfügung. Auf dieser Ebene befinden sich außerdem noch ein Arbeitszimmer, ein Schlafzimmer und ein Wannenbad, welches sowohl vom Schlafzimmer, als auch vom Flur aus begehbar ist. Darüber hinaus gibt es ein Gäste-WC. Im Dachgeschoss befinden sich zwei weitere Zimmer, eines davon mit Loggia. Zudem gibt es hier noch ein Duschbad und eine Abstellkammer. Der Keller ist teilweise wohnlich ausgebaut und verfügt neben einem Kaminzimmer, ein weiteres Duschbad, einem Hobby- und einem Mehrzweckraum, einen klassischen Keller- sowie einen Heizungsraum.
Familienort nahe dem Niendorfer Gehege
22527 Hamburg
Die vollständige Adresse der Immobilie erhalten Sie vom Anbieter.
Auf Karte anzeigen
Die vollständige Adresse der Immobilie erhalten Sie vom Anbieter.
Finanzierungszertifikat
In nur zwei Minuten zu Ihrem persönlichen Finanzierungszertifkat.
Infos
| Haustyp | Einfamilienhaus |
|---|---|
| Wohnfläche ca. | 133 m2 |
| Nutzfläche | 109 m2 |
| Grundstücksfläche | 634 m2 |
| Bezugsfrei ab | kurzfristig |
| Zimmer | 5 |
| Schlafzimmer | 4 |
| Badezimmer | 3 |
| Garage/Stellplatz | Garage |
| Anzahl Garage/Stellplatz | 1 |
Kosten
| Kaufpreis |
695.000 € |
|---|---|
| Provision |
3,57 % inkl. MwSt. |
Finanzierungsrechner:
Kaufpreis:
600.000 €
Eigenkapital:
600.000 €
Monatliche Rate
0 €
Effektiver Jahreszins
0 %
Sollzinsbindung
10 Jahre
Bausubstanz & Energieausweis
| Baujahr | 1977 |
|---|---|
| Objektzustand | Renovierungsbedürftig |
| Heizungsart | Fußbodenheizung |
| Wesentliche Energieträger | Gas |
| Energieausweis | liegt vor |
| Energieausweistyp | Bedarfsausweis |
| Energieverbrauchskennwert | 177,6 kWh/(m²*a) |
| Energieeffizienzklasse | F |
177,6
kWh/(m²*a)
Energieeffizienzklasse F
- A+
- A
- B
- C
- D
- E
- F
- G
- H
- 0
- 25
- 50
- 75
- 100
- 125
- 150
- 175
- 200
- 225
- >250
Beschreibung des Objekts
Ausstattung
Ein vielseitiger Grundriss, ausreichend Platz, auch für eine größere Familie und das in familienfreundlicher und grüner Umgebung – das bietet Ihnen diese Immobilie. Die Ausstattung des Hauses wurde damals qualitativ hochwertig ausgewählt, entspricht jedoch in weiten Teilen nicht mehr dem heutigen Stand. Dem Baujahr entsprechend, präsentieren sich weite Teile der Technik. Dies gilt für das Dach sowie für die Fassade, Elektrik, Leitungen und für die doppelt verglasten Fenster. Alle Fenster im Erdgeschoss verfügen über Außenrollläden. Die Heizungsanlage (Brennwerttechnik) wurde hingegen 2005 erneuert und wird mit Gas befeuert. Die Warmwasserversorgung erfolgt elektrisch per Durchlauferhitzer. Alle Ebenen werden über eine Fußbodenheizung beheizt, auch der Keller. Im Mauerwerk des Kellerbereichs zeigt sich an einigen Stellen baujahrestypische Feuchtigkeit. Die Immobilie bietet insgesamt drei Bäder und ein Gäste-WC, jeweils baujahresentsprechend. Zur weiteren Ausstattung gehören eine Einbauküche, ein gemauerter Kamin im Keller und eine Alarmanlage. Im Außenbereich stehen zwei Gärten, eine Südwest-Terrasse, ein Brunnen sowie ein Pavillon und ein Schuppen bereit. Darüber hinaus gibt es eine Garage und Außenstellplätze.
Lage
Die Immobilie befindet sich in Eidelstedt im beliebten Hamburger Nordwesten. Der Stadtteil ist äußerst familienfreundlich, erfreut sich aber auch zunehmend bei jungen Menschen an wachsender Beliebtheit. Das Grundstück liegt in einer ruhigen Anwohnerstraße im Osten des Stadtteils und in direkter Nachbarschaft zum Niendorfer Gehege. Damit einhergehen kurze Wege in zwei Stadtteilzentren: Sowohl der Eidelstedter Platz, als auch der Tibarg und das Tibarg-Center im Süden von Niendorf sind nicht weit entfernt. Hier konzentrieren sich jeweils Einzelhandel, Ärzte, Banken und Gastronomie. Darüber hinaus sind Kindergärten und Schulen mit teils ausgezeichnetem Ruf in größerer Zahl vorhanden. Zahlreiche Grünflächen, Wanderwege und eine Vielzahl von Sportangeboten unterstreichen den hohen Freizeitwert. Eidelstedt und Niendorf weisen trotz der Lage am Stadtrand eine gute Anbindung an die Hamburger Innenstadt auf. Die Anschlussstellen zu den Bundesautobahnen 7 und 23 sind in kurzer Zeit erreicht, ebenso wie der Flughafen Hamburg-Fuhlsbüttel. Für die Anbindung an den ÖPNV sorgen Haltestellen der Linie 181 sowie die U-Bahn-Station „Niendorf Markt“ (U2) und die S-Bahn-Station „Elbgaustraße“ (S3).
Grundriss
Erdgeschoss
>
>
Dachgeschoss
>
>
Kellergeschoss
>
>
Adresse
22527 Hamburg
Interessante Orte
Preis- und Lageinformationen
Preistrend für Bestandsimmobilien in Eidelstedt