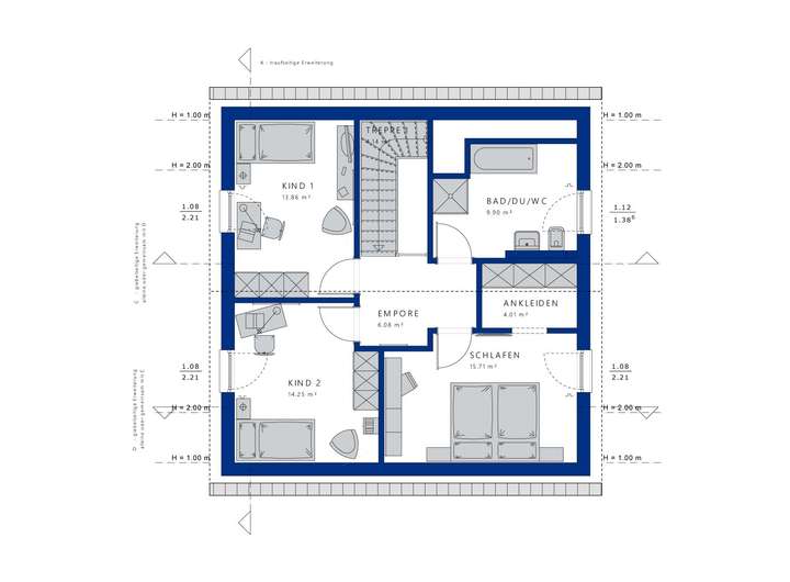
Das EVOLUTION 143 von Bien-Zenker ist mehr als nur ein Haus - es ist eine Vision, die Ihre Träume Wirklichkeit werden lässt. Mit einer Wohnfläche von 144 m² auf zwei Etagen bietet dieses Fertighaus viel Platz für individuelle Gestaltungsmöglichkeiten. Die durchdachte Architektur verbindet Funktionalität mit Ästhetik und schafft ein Zuhause, das in jeder Hinsicht überzeugt. Im Erdgeschoss verschmelzen Wohnen, Essen, Kochen und Arbeiten zu einem harmonischen Ganzen. Hier wird nicht nur gelebt, hier entfaltet sich das Leben in seiner ganzen Pracht. Das Obergeschoss lockt mit drei großzügigen Schlafräumen und einem Wellness-Bad, die perfekte Rückzugsorte für Ruhe und Erholung darstellen.
Die Ausstattungsvielfalt des EVOLUTION 143 zeigt sich auch in den komfortablen Details. Ein weitläufiger Garten auf dem 887 m² großen Grundstück lädt zu geselligen Abenden unter freiem Himmel ein. Die lichtdurchfluteten Räume schaffen eine freundliche Atmosphäre und sorgen dafür, dass der Alltag in einem besonderen Licht erstrahlt. Der gut durchdachte Grundriss unterstützt ein harmonisches Familienleben und bietet genügend Raum für Privatsphäre und gemeinsames Beisammensein.
Besonders attraktiv ist die Ausbaustufe ZAF, die Ihnen ermöglicht, selbst Hand anzulegen. Bien-Zenker übernimmt den Rohbau sowie den technischen Innenausbau - Sie vervollständigen Ihr Heim mit Böden, Malerarbeiten und Sanitärinstallationen nach Ihren Vorstellungen. Diese Option ist ideal für alle, die ihre persönliche Note einbringen möchten und dabei gleichzeitig Kosten sparen wollen. So wird der Bauprozess nicht nur leistbar, sondern auch zu einem spannenden Erlebnis.
Bei Bien-Zenker ist es nie nur "Haus". Es ist Zuhause, es ist Ankommen, es ist Familie. Bien-Zenker steht seit über 115 Jahren für Qualität und Innovation im Fertighausbau. Mit wohngesunden Materialien und zukunftsweisenden Standards sorgt das Unternehmen dafür, dass jedes Haus nicht nur den aktuellen Anforderungen entspricht, sondern auch zukünftige Generationen begeistern wird.
Grundrisse und Abbildungen können Extras zeigen. Flächenangaben nach DIN 277.
Hausbau mit Bien Zenker
54597 Olzheim
Die vollständige Adresse der Immobilie erhalten Sie vom Anbieter.
Auf Karte anzeigen
Die vollständige Adresse der Immobilie erhalten Sie vom Anbieter.
Finanzierungszertifikat
In nur zwei Minuten zu Ihrem persönlichen Finanzierungszertifkat.
Infos
| Haustyp | Einfamilienhaus |
|---|---|
| Etagenzahl | 2 |
| Wohnfläche ca. | 144 m2 |
| Grundstücksfläche | 887 m2 |
| Zimmer | 6 |
Kosten
| Kaufpreis |
364.100 € |
|---|
Finanzierungsrechner:
Kaufpreis:
600.000 €
Eigenkapital:
600.000 €
Monatliche Rate
0 €
Effektiver Jahreszins
0 %
Sollzinsbindung
10 Jahre
Bausubstanz & Energieausweis
| Baujahr | unbekannt |
|---|---|
| Qualität der Austattung | Gehoben |
Beschreibung des Objekts
Ausstattung
Mit seinen sechs Zimmern bietet das Haus auf einer Fläche von 144 m² ausreichend Raum für Familien oder Paare, die Wert auf Großzügigkeit legen. Zwei Etagen sorgen dafür, dass alle Bereiche optimal genutzt werden können: Im Erdgeschoss vereinen sich Wohn- und Essbereich mit der Küche zu einem offenen Konzept, das Kommunikation und Zusammenhalt fördert. Das Obergeschoss beherbergt drei Schlafräume sowie ein luxuriöses Wellness-Bad - ideal für entspannte Stunden der Erholung.
Ein besonderes Highlight dieses Hauses ist der große Garten des 887 m² umfassenden Grundstücks - eine Oase für Frischluftliebhaber und Gartenfreunde gleichermaßen. Die lichtdurchfluteten Räume im Inneren des Hauses bieten zudem eine besondere Wohnqualität: Durch große Fensterflächen dringt viel Tageslicht herein und verleiht jedem Zimmer eine warme Atmosphäre.
Die Ausbaustufe ZAF macht aus diesem Projekt eine perfekte Kombination aus professionellem Bauhandwerk und persönlicher Kreativität. Während Bien-Zenker den Rohbau sowie den technischen Innenausbau übernimmt, haben Sie die Möglichkeit, durch eigene Arbeiten wie Bodenverlegung oder Malerarbeiten Ihren persönlichen Stil einzubringen - so entsteht ein Unikat ganz nach Ihren Wünschen.
Lage
Olzheim besticht durch seine malerische Umgebung im Herzen der Eifel. Die Region bietet eine Vielzahl an Möglichkeiten zur Freizeitgestaltung: Von Wander- und Radwegen über Naturparks bis hin zu kulturellen Sehenswürdigkeiten gibt es immer etwas zu entdecken. Für Familien besonders attraktiv sind die Bildungsangebote in unmittelbarer Nähe - Schulen und Kindergärten sind schnell erreichbar.
Auch im Bereich Gesundheit hat Olzheim einiges zu bieten: Ärzte verschiedener Fachrichtungen sowie Apotheken sind problemlos erreichbar und gewährleisten eine optimale medizinische Versorgung.
Einkaufsmöglichkeiten finden Sie zahlreich in der Umgebung; ob Supermärkte oder kleine lokale Geschäfte - alles Notwendige liegt in greifbarer Nähe. Dank guter Verkehrsanbindung gelangen Sie schnell auf die Autobahn oder nutzen den öffentlichen Nahverkehr bequem für Ausflüge in benachbarte Städte oder einen Pendelweg zur Arbeit.
Sonstige Angaben
Angebotspreis zuzüglich Grunderwerbs- und Baunebenkosten.
Vorbehaltlich Irrtümer und Zwischenverkauf.
Abbildungen, Fotos und Grundrisse können Extras enthalten.
Bei dem dargestellten Objekt handelt es sich um eine Projektierung, die im Hinblick auf Kubatur, architektonischer Gestaltung und Energieeffizienzklasse an individuelle Anforderungen und Bedürfnisse unserer Bauherren angepasst werden kann.
Bitte geben Sie Ihre vollständigen Daten an
(Name, Vorname, Telefonnummer, E-Mail),
da wir ansonsten Ihre Anfrage nicht bearbeiten können.
Vielen Dank im Voraus!
Adresse
54597 Olzheim
Interessante Orte
Preis- und Lageinformationen
Preistrend für Bestandsimmobilien in Olzheim