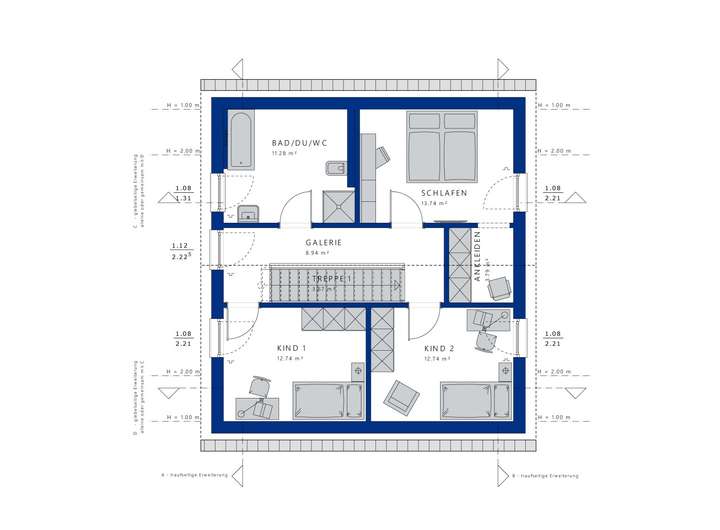
Das EVOLUTION 136 von Bien-Zenker ist ein wahres Meisterwerk der modernen Fertighausarchitektur. Mit seinen beiden stilvollen Satteldach-Varianten bietet dieses Haus nicht nur äußerliche Eleganz, sondern auch eine durchdachte Raumaufteilung, die sowohl Funktionalität als auch Ästhetik miteinander vereint. Auf zwei Etagen entfaltet sich ein Wohntraum, der mit einer großzügigen Wohnfläche von 136 Quadratmetern und sechs Zimmern viel Platz für individuelle Gestaltungsmöglichkeiten bietet. Das Erdgeschoss begeistert mit perfekt integrierten Arbeits- und Wohnbereichen, während im Obergeschoss großzügige Individualräume auf Sie warten. Ein besonderes Highlight ist die geradläufige Treppe, die bereits beim Betreten der Diele einen Hauch von Exklusivität versprüht.
Ein weiteres überzeugendes Merkmal des EVOLUTION 136 ist seine intelligente Ausbaustufe ZAF. Diese Stufe ist ideal für Bauherren, die gerne selbst Hand anlegen möchten. Während Bien-Zenker den Rohbau und den technischen Innenausbau übernimmt, haben Sie die Möglichkeit, Böden zu verlegen, Malerarbeiten durchzuführen und Sanitärinstallationen selbst zu gestalten. Dies ermöglicht nicht nur finanzielle Einsparungen, sondern auch die Chance, Ihrem zukünftigen Zuhause eine ganz persönliche Note zu verleihen.
Bei Bien-Zenker geht es um mehr als nur das Bauen eines Hauses - es geht um das Schaffen eines Zuhauses. Seit über 115 Jahren steht das Unternehmen für Qualität und Innovation im Bereich Fertighäuser. Mit über 80.000 gebauten Häusern gehört Bien-Zenker zu den erfahrensten Anbietern in Deutschland. Jedes Projekt wird individuell betreut und mit wohngesunden Materialien sowie zukunftsweisenden Standards realisiert, damit Ihr neues Heim nicht nur den heutigen Ansprüchen gerecht wird, sondern auch für kommende Generationen Bestand hat.
Grundrisse und Abbildungen können Extras zeigen. Flächenangaben nach DIN 277.
Ihr Traumhaus von Bien-Zenker.
54533 Oberöfflingen
Die vollständige Adresse der Immobilie erhalten Sie vom Anbieter.
Auf Karte anzeigen
Die vollständige Adresse der Immobilie erhalten Sie vom Anbieter.
Finanzierungszertifikat
In nur zwei Minuten zu Ihrem persönlichen Finanzierungszertifkat.
Infos
| Haustyp | Einfamilienhaus |
|---|---|
| Etagenzahl | 2 |
| Wohnfläche ca. | 136 m2 |
| Grundstücksfläche | 601 m2 |
| Zimmer | 6 |
Kosten
| Kaufpreis |
365.900 € |
|---|
Finanzierungsrechner:
Kaufpreis:
600.000 €
Eigenkapital:
600.000 €
Monatliche Rate
0 €
Effektiver Jahreszins
0 %
Sollzinsbindung
10 Jahre
Bausubstanz & Energieausweis
| Baujahr | unbekannt |
|---|---|
| Qualität der Austattung | Gehoben |
Beschreibung des Objekts
Ausstattung
Das EVOLUTION 136 beeindruckt durch seine clevere Raumaufteilung auf insgesamt zwei Etagen. Mit sechs Zimmern verteilt auf einer Wohnfläche von 136 Quadratmetern, bietet dieses Haus genügend Freiraum für Familien oder Paare, die Wert auf individuellen Lebensraum legen. Im Erdgeschoss harmonieren Arbeits- und Wohnbereiche in perfekter Symbiose und schaffen so ein Umfeld, das sowohl Privatsphäre als auch Gemeinschaft fördert.
Die lichtdurchfluteten Räume sind ein wahrer Genuss für alle Sinne und unterstreichen das moderne Design des Hauses. Der Zugang zu einem weitläufigen Garten sorgt dafür, dass Sie entspannte Stunden im Freien genießen können - sei es bei einem sonnigen Frühstück auf der Terrasse oder beim abendlichen Barbecue mit Freunden und Familie.
Unsere Ausbaustufe ZAF richtet sich an alle Bauherren, die aktiv am Entstehungsprozess ihres Zuhauses teilhaben wollen. Während wir uns um den Rohbau und den technischen Innenausbau kümmern, bleibt Ihnen die Freiheit bei Bodenbelägen und Malerarbeiten kreativ zu werden. Diese Eigenleistung spart nicht nur Kosten, sondern gibt Ihnen auch die Gelegenheit, Ihre persönliche Handschrift ins Design Ihres Hauses einzubringen.
Lage
Oberöfflingen besticht durch seine hervorragende Lage inmitten einer idyllischen Landschaft und bietet gleichzeitig beste Anbindung an städtische Annehmlichkeiten. In unmittelbarer Nähe finden Sie zahlreiche Bildungs- und Gesundheitseinrichtungen sowie vielfältige Einkaufsmöglichkeiten, die keine Wünsche offenlassen. Für Freizeitaktivitäten stehen Ihnen Parks und Sportanlagen zur Verfügung - ideal für entspannende Spaziergänge oder sportliche Betätigungen.
Der öffentliche Nahverkehr ist ausgezeichnet ausgebaut und bringt Sie schnell in umliegende Städte oder ins Stadtzentrum von Oberöfflingen selbst. Darüber hinaus sorgt eine nahegelegene Autobahn für eine bequeme Verbindung zu weiter entfernten Zielen - perfekt für Berufspendler oder Wochenendausflügler.
Sonstige Angaben
Angebotspreis zuzüglich Grunderwerbs- und Baunebenkosten.
Vorbehaltlich Irrtümer und Zwischenverkauf.
Abbildungen, Fotos und Grundrisse können Extras enthalten.
Bei dem dargestellten Objekt handelt es sich um eine Projektierung, die im Hinblick auf Kubatur, architektonischer Gestaltung und Energieeffizienzklasse an individuelle Anforderungen und Bedürfnisse unserer Bauherren angepasst werden kann.
Bitte geben Sie Ihre vollständigen Daten an
(Name, Vorname, Telefonnummer, E-Mail),
da wir ansonsten Ihre Anfrage nicht bearbeiten können.
Vielen Dank im Voraus!
Grundriss
Erdgeschoss
>
>
Dachgeschoss
>
>
Adresse
54533 Oberöfflingen
Interessante Orte
Preis- und Lageinformationen
Preistrend für Bestandsimmobilien in Oberöfflingen