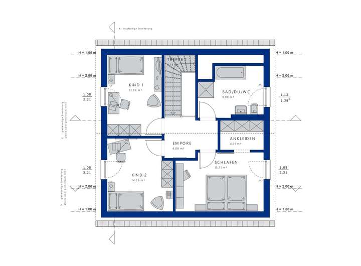
Das Bien-Zenker Haus, das Sie in Traben-Trarbach erwartet, ist mehr als nur ein Gebäude - es ist die Verwirklichung Ihrer ganz persönlichen Wohnträume. Die Architektur des Hauses zeichnet sich durch eine Vielzahl an Gestaltungsmöglichkeiten aus, die Ihnen die Freiheit geben, Ihre individuellen Vorstellungen perfekt umzusetzen. Mit einer Wohnfläche von 144 m² und zwei Etagen bietet dieses Haus genügend Raum für die ganze Familie oder für diejenigen, die viel Platz für ihre Hobbys und Interessen benötigen. Im Erdgeschoss vereinen sich Wohnen, Essen, Kochen und Arbeiten zu einem offenen und einladenden Bereich, der nicht nur funktional ist, sondern auch das Leben miteinander erleichtert. Im Obergeschoss finden Sie drei großzügige Schlafräume sowie ein luxuriöses Wellness-Bad, das Ihnen nach einem langen Tag Entspannung pur bietet.
Die Ausstattung des Hauses lässt keine Wünsche offen. Mit insgesamt sechs Zimmern bietet es nicht nur genügend Platz für alle Familienmitglieder, sondern auch Rückzugsmöglichkeiten und private Bereiche. Besonders hervorzuheben sind die durchdachte Raumaufteilung und die lichtdurchfluteten Räume, die eine angenehme Wohnatmosphäre schaffen und den Alltag verschönern. Dank der idealen Verbindung von Funktionalität und Design wird jeder Raum optimal genutzt - sei es für gemeinsames Beisammensein oder individuelle Ruhephasen.
Besonders bemerkenswert sind die Komfortdetails dieses Hauses. Die Möglichkeit eines Balkons oder einer Terrasse erweitert den Wohnraum nach draußen und schafft einen Ort der Erholung und Geselligkeit im Freien. Auch Stauraum ist ausreichend vorhanden - ob in Form eines Abstellraums oder eines möglichen Kellers - um Ihnen den Alltag zu erleichtern und stets Ordnung zu halten.
Mit der Ausbaustufe "Zur Ausstattung fertig" (ZAF) haben Sie als Bauherr die Möglichkeit, aktiv am Entstehungsprozess Ihres Hauses mitzuwirken. Während Bien-Zenker den Rohbau sowie den technischen Innenausbau übernimmt, liegt es an Ihnen, Böden zu verlegen, Wände zu gestalten und Sanitärinstallationen einzurichten. So können Sie nicht nur Geld sparen, sondern auch Ihre persönliche Note ins Zuhause einbringen und handwerkliche Fähigkeiten unter Beweis stellen.
Bei Bien-Zenker geht es um mehr als nur das Bauen eines Hauses; es geht darum, ein Zuhause zu schaffen - einen Ort zum Ankommen und Wohlfühlen. Mit über 80.000 gebauten Häusern zählt Bien-Zenker zu den renommiertesten Fertighausanbietern Deutschlands. Das Unternehmen bietet nicht nur jahrelanges Know-how und Erfahrung im Fertighausbau, sondern auch eine persönliche Beratung auf höchstem Niveau.
Grundrisse und Abbildungen können Extras zeigen. Flächenangaben nach DIN 277.
Ihr individuelles Zuhause von Bien Zenker
56841 Traben-Trarbach
Die vollständige Adresse der Immobilie erhalten Sie vom Anbieter.
Auf Karte anzeigen
Die vollständige Adresse der Immobilie erhalten Sie vom Anbieter.
Finanzierungszertifikat
In nur zwei Minuten zu Ihrem persönlichen Finanzierungszertifkat.
Infos
| Haustyp | Einfamilienhaus |
|---|---|
| Etagenzahl | 2 |
| Wohnfläche ca. | 144 m2 |
| Grundstücksfläche | 495 m2 |
| Zimmer | 6 |
Kosten
| Kaufpreis |
391.900 € |
|---|
Finanzierungsrechner:
Kaufpreis:
600.000 €
Eigenkapital:
600.000 €
Monatliche Rate
0 €
Effektiver Jahreszins
0 %
Sollzinsbindung
10 Jahre
Bausubstanz & Energieausweis
| Baujahr | unbekannt |
|---|---|
| Qualität der Austattung | Gehoben |
Beschreibung des Objekts
Ausstattung
Dieses beeindruckende Bien-Zenker Haus in Traben-Trarbach besticht durch seine großzügige Aufteilung auf zwei Etagen mit insgesamt sechs Zimmern und einer Wohnfläche von 144 m². Der durchdachte Grundriss verbindet geschickt das Wohnen, Essen, Kochen und Arbeiten im Erdgeschoss zu einem harmonischen Miteinander. Drei geräumige Schlafzimmer im Obergeschoss bieten ideale Rückzugsorte für jedes Familienmitglied während das luxuriöse Wellness-Bad zum Entspannen einlädt.
Besondere Komfortmerkmale wie mögliche Balkone oder Terrassen erweitern Ihren Lebensraum ins Freie und laden dazu ein, sonnige Tage in vollen Zügen zu genießen oder gesellige Abende mit Freunden außerhalb der vier Wände zu verbringen. Praktische Abstellräume sorgen dafür, dass Alltagsgegenstände immer ihren Platz finden und Unordnung vermieden wird.
Die Ausbaustufe "Zur Ausstattung fertig" ermöglicht es Ihnen als Bauherren aktiv am Bauprozess teilzunehmen. Während Bien-Zenker den Rohbau sowie den technischen Innenausbau übernimmt, haben Sie die kreative Freiheit bei der Gestaltung von Böden bis hin zur Auswahl der Wandfarben. Diese Eigenleistungen erlauben nicht nur eine Einsparung beim Baukostenbudget, sondern ermöglichen auch eine einzigartige Individualisierung Ihres neuen Heims.
Lage
Traben-Trarbach ist idyllisch an der Mosel gelegen und bietet eine perfekte Symbiose aus Naturerlebnis und städtischer Infrastruktur. In unmittelbarer Nähe befinden sich zahlreiche Möglichkeiten zur Freizeitgestaltung - sei es Wandern entlang malerischer Weinberge oder entspannte Spaziergänge am Moselufer.
Bildungs- und Gesundheitseinrichtungen sind gut erreichbar: Schulen aller Bildungsstufen sowie Kindergärten garantieren kurze Wege für Familien mit Kindern. Auch Arztpraxen und Apotheken befinden sich in der Nähe und sichern somit eine umfassende medizinische Versorgung.
Für den täglichen Bedarf stehen Supermärkte ebenso bereit wie charmante kleine Läden in der Altstadt von Traben-Trarbach selbst - allesamt schnell erreichbar dank eines gut ausgebauten öffentlichen Personennahverkehrsnetzes (ÖPNV). Die Anbindung an größere Städte erfolgt bequem über nahegelegene Autobahnen.
Sonstige Angaben
Angebotspreis zuzüglich Grunderwerbs- und Baunebenkosten.
Vorbehaltlich Irrtümer und Zwischenverkauf.
Abbildungen, Fotos und Grundrisse können Extras enthalten.
Bei dem dargestellten Objekt handelt es sich um eine Projektierung, die im Hinblick auf Kubatur, architektonischer Gestaltung und Energieeffizienzklasse an individuelle Anforderungen und Bedürfnisse unserer Bauherren angepasst werden kann.
Bitte geben Sie Ihre vollständigen Daten an
(Name, Vorname, Telefonnummer, E-Mail),
da wir ansonsten Ihre Anfrage nicht bearbeiten können.
Vielen Dank im Voraus!
Adresse
56841 Traben-Trarbach
Interessante Orte
Preis- und Lageinformationen
Preistrend für Bestandsimmobilien in Traben-Trarbach