Hier erwartet Sie eine moderne und großzügige Immobilie in ruhiger Randlage.
Das ebenerdig erreichbare Erdgeschoss gliedert sich auf in einen geräumigen Eingangsbereich mit Bad und Gästezimmer.
Durch eine Glastür getrennt, erschließt sich der offene, großzügige Wohn-/Essbereich mit Kaminofen und moderner Einbauküche inklusive Speisekammer. Von hier aus gelangt man auf die große Terrasse, die zur Hälfte überdacht ist.
Das Obergeschoss präsentiert sich sehr großzügig im Loft-Stil. Die besondere Raumhöhe und das sichtbare Dachgebälk erzeugen eine ganz besondere Wohnatmosphäre. Hier befinden sich das Schlafzimmer mit begehbarem Kleiderschrank, ein Kinderzimmer, das zweite Bad und ein weiterer, offener Wohnbereich. Dieser lässt sich bei Bedarf mit wenig Aufwand in ein separates Zimmer umwandeln.
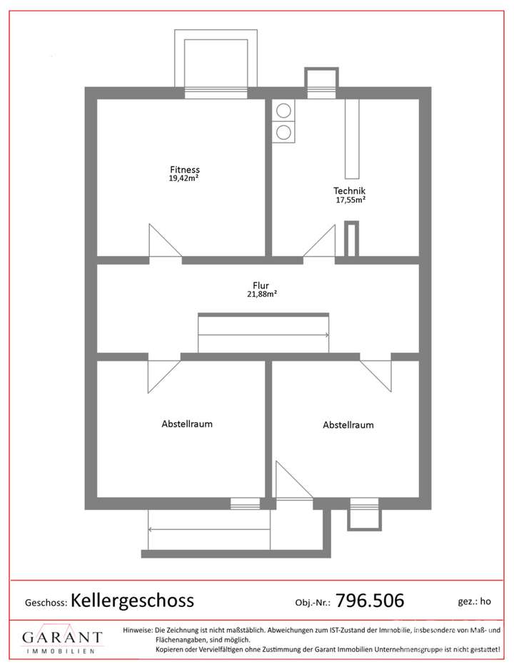
Im Untergeschoss befinden sich der Technikraum mit Anschluss für Waschmaschine und Trockner und drei weitere Räume. Zwei davon sind mit einer Fußbodenheizung ausgestattet und somit vielfältig nutzbar.Ein Raum hat einen überdachten Zugang zum Garten und wird derzeit als Werkstatt genutzt.
Ein weiteres Highlight ist die überdimensional große Doppelgarage mit überdachtem Durchgang bis ans Haus.
Im Garten gibt es viel Platz für Ihre Kinder zum Spielen und auch noch genügend Raum für individuelle Gestaltungsmöglichkeiten.
*** Junges Einfamilienhaus in schöner Randlage ***
89561 Dischingen
Die vollständige Adresse der Immobilie erhalten Sie vom Anbieter.
Auf Karte anzeigen
Die vollständige Adresse der Immobilie erhalten Sie vom Anbieter.
Finanzierungszertifikat
In nur zwei Minuten zu Ihrem persönlichen Finanzierungszertifkat.
Infos
| Haustyp | Einfamilienhaus |
|---|---|
| Wohnfläche ca. | 178 m2 |
| Grundstücksfläche | 750 m2 |
| Bezugsfrei ab | nach Absprache |
| Zimmer | 5,5 |
| Garage/Stellplatz | Garage |
| Anzahl Garage/Stellplatz | 2 |
Kosten
| Kaufpreis |
699.000 € |
|---|---|
| Provision |
3,57 % inkl. ges. MwSt. Die Maklercourtage für den Käufer beträgt 3 % aus dem Kaufpreis zuzüglich der gesetzlichen MwSt., somit gesamt 3,57 %. |
Finanzierungsrechner:
Kaufpreis:
600.000 €
Eigenkapital:
600.000 €
Monatliche Rate
0 €
Effektiver Jahreszins
0 %
Sollzinsbindung
10 Jahre
Bausubstanz & Energieausweis
| Baujahr | 2020 |
|---|---|
| Objektzustand | Gepflegt |
| Qualität der Austattung | Gehoben |
| Heizungsart | Wärmepumpe |
| Wesentliche Energieträger | Strom |
| Energieausweis | liegt vor |
| Energieausweistyp | Bedarfsausweis |
| Energieverbrauchskennwert | 7,6 kWh/(m²*a) |
| Energieeffizienzklasse | A+ |
7,6
kWh/(m²*a)
Energieeffizienzklasse A+
- A+
- A
- B
- C
- D
- E
- F
- G
- H
- 0
- 25
- 50
- 75
- 100
- 125
- 150
- 175
- 200
- 225
- >250
Beschreibung des Objekts
Ausstattung
* Untergeschoss: Technikraum, drei weitere Räume, großer Flur mit
viel Abstellmöglichkeiten
* Erdgeschoss: Flur, Bad, Zimmer, offener Wohn-/Essbereich mit
Küche, Speisekammer, Schwedenofen
* Obergeschoss: Bad, Schlafzimmer mit begehbarem
Kleiderschrank, Arbeitszimmer, Diele, offener Wohnbereich
Lage
Dunstelkingen ist ein Teil der Gemeinde Dischingen im Landkreis Heidenheim in Baden-Württemberg.
Ein Kindergarten befindet sich vor Ort und eine Grundschule in Dischingen.
Die Stadt Heidenheim und Gingen an der Brenz sind in jeweils ca. 20 Minuten mit dem Auto erreichbar.
Natur pur befindet sich direkt vor der Haustür auch ein Badesee und die Burg Katzenstein befinden sich in der Nähe.
Sonstige Angaben
Energiebedarfsausweis Energiekennwert: 7,60 kWh/(qm*a) Energieeffizienz: Klasse A+ (kl.30) Heizung: Wärmepumpe mit Strom Baujahr laut Energieausweis: 2021
* Zisterne mit ca. 8 m³
* Wasserenthärtungsanlage
* Gartenhütte mit Holzlager
* PV-Anlage (9,75 kWp) mit Speicher (7,7 kWh)
* elektrische Rollläden
* Smart-Home-ready
* Einbauküche mit Bora-Induktionskochfeld und
Quooker-Wasserhahn
* elektrisches Garagentor
* KfW-55-Standard
* Glasfaser-Internet, Sat-TV
* Keller mit ca. 90 qm Nutzfläche
Grundriss
Kellergeschoss
>
>
Erdgeschoss
>
>
Obergeschoss
>
>
Adresse
89561 Dischingen
Interessante Orte
Preis- und Lageinformationen
Preistrend für Bestandsimmobilien in Dischingen