Ob großzügiges Atelier, Homeoffice, Bibliothek, Gästezimmer oder ganz persönliche Rückzugsorte – hier passt sich das Haus Ihrem Lebensstil an, nicht umgekehrt. Offene Architektur, viel Licht und besondere Blickachsen schaffen eine inspirierende Wohnatmosphäre – modern, klar und dennoch wohltuend warm.
Für Individualisten, Kreative oder Paare mit Vision – ein Ort, der mitdenkt, mitwächst und Spielraum lässt für das, was Ihnen wichtig ist.
Große Fensterflächen, durchdachte Raumabfolgen und eine offene Architektur holen das Licht ins Haus – und schaffen ein modernes, luftiges Wohngefühl.
Der private Garten ist harmonisch in die Umgebung eingebettet und durch kleine Mauern, Treppen und Wege abwechslungsreich gegliedert – ein Rückzugsort zum Entspannen, Spielen und Genießen.
Dank der natürlichen Abschirmung durch die umliegende Bebauung entsteht hier ein besonders geschütztes Mikroklima mit hoher Aufenthaltsqualität: grün, ruhig und angenehm zurückgezogen.
Ein direkter Zugang aus dem Untergeschoss führt komfortabel und wettergeschützt in die Tiefgarage.
Dieses Haus überzeugt durch seine geborgene Lage, klare Architektur und die seltene Verbindung von Privatsphäre und hoher Lebensqualität.
Ihr neues Zuhause: 5 Zimmer Premium-Haus in grüner Hanglage – keine Käuferprovision
Lorscher Weg 24,
69221 Dossenheim
Auf Karte anzeigen
Finanzierungszertifikat
In nur zwei Minuten zu Ihrem persönlichen Finanzierungszertifkat.
Infos
| Haustyp | Doppelhaushaelfte |
|---|---|
| Etagenzahl | 2 |
| Wohnfläche ca. | 226 m2 |
| Grundstücksfläche | 218 m2 |
| Bezugsfrei ab | Ende 2026/Anfang 2027 |
| Zimmer | 5 |
| Badezimmer | 3 |
| Garage/Stellplatz | Tiefgarage |
| Anzahl Garage/Stellplatz | 2 |
Kosten
| Kaufpreis |
1.295.000 € |
|---|---|
| Preis für Garage/Stellplatz | 55.000 € |
| Provision | Nein |
Finanzierungsrechner:
Kaufpreis:
600.000 €
Eigenkapital:
600.000 €
Monatliche Rate
0 €
Effektiver Jahreszins
0 %
Sollzinsbindung
10 Jahre
Bausubstanz & Energieausweis
| Baujahr | 2026 |
|---|---|
| Bauphase | Haus im Bau |
| Objektzustand | Erstbezug |
| Qualität der Austattung | Luxus |
| Heizungsart | Wärmepumpe |
| Wesentliche Energieträger | Strom |
| Energieausweis | liegt vor |
| Energieausweistyp | Bedarfsausweis |
| Energieverbrauchskennwert | 11,0 kWh/(m²*a) |
| Energieeffizienzklasse | A+ |
11,0
kWh/(m²*a)
Energieeffizienzklasse A+
- A+
- A
- B
- C
- D
- E
- F
- G
- H
- 0
- 25
- 50
- 75
- 100
- 125
- 150
- 175
- 200
- 225
- >250
Beschreibung des Objekts
Ausstattung
Das Haus überzeugt durch eine hochwertige und zugleich nachhaltige Ausstattung, die modernen Wohnkomfort mit zukunftsfähiger Technik verbindet.
Parkettböden in allen Wohnräumen schaffen eine warme Atmosphäre, während die Fußbodenheizung und -kühlung für ein angenehmes Raumklima zu jeder Jahreszeit sorgen – im Sommer angenehm temperiert, im Winter wohlig warm.
Hochwertige Sanitärobjekte und Armaturen namhafter Hersteller setzen stilvolle Akzente in den Bädern. Für die Energieversorgung kommt ein innovatives Konzept zum Einsatz: Eine Wärmepumpe sorgt effizient für Heizung, Warmwasser und Kühlung. Ergänzt wird das System durch eine Photovoltaikanlage auf dem Dach, die umweltfreundlichen Strom direkt vor Ort erzeugt.
Das Haus erfüllt den energieeffizienten KfW-40-Standard und ist mit dem Qualitätssiegel Nachhaltiges Gebäude (QNG) zertifiziert – das reduziert nicht nur langfristig die Betriebskosten, sondern eröffnet auch Zugang zu staatlichen Förderungen.
Zudem stehen ein privater Tiefgaragenstellplatz, Fahrradabstellflächen sowie individuelle Grundrisslösungen zur Verfügung.
Lage
Das Haus befindet sich in attraktiver Hanglage in Dossenheim, einer Gemeinde an der Badischen Bergstraße – zwischen Odenwald, Neckar und der Wissenschaftsstadt Heidelberg. Die grüne Umgebung, die Nähe zu den Weinbergen und die malerische Landschaft schaffen eine hohe Lebensqualität.
Gleichzeitig ist Dossenheim hervorragend angebunden: Drei Haltestellen im Schienennetz des ÖPNV, ein direkter Autobahnanschluss an die A5 und ein gut ausgebautes Radwegenetz sorgen für kurze Wege – egal ob zur Arbeit, in die Schule oder in die Freizeit. Heidelberg, Mannheim, Ludwigshafen und Walldorf sind schnell erreichbar.
Dank der Nähe zu Heidelberg ist der Standort auch für Wissenschaftler, Studierende und Berufspendler besonders attraktiv. Die Umgebung bietet ein lebendiges Gemeindeleben mit Einkaufsmöglichkeiten, Kitas, Schulen und vielfältigem Freizeitangebot – perfekt für alle, die naturnah wohnen und trotzdem urban angebunden bleiben möchten.
Sonstige Angaben
Bitte schicken Sie uns zunächst eine Anfrage über Immoscout24 zu. Wir melden uns umgehend bei Ihnen. Vielen Dank.
Wichtiger Hinweis:
Die Angaben dienen der allgemeinen Information. Maßgebend für den Kauf sind die Bestimmungen der notariell beurkundeten Bezugsurkunde und des notariell abzuschließenden Kaufvertrags. Die bildlichen Darstellungen enthalten ausschließlich Nutzungs- und Gestaltungsbeispiele und geben nicht den endgültigen Ausbauzustand wieder, der hiervon abweichen kann. Sie stellen insbesondere keine Beschaffenheitszusagen oder Vereinbarungen dar. Allein maßgebend für den Leistungsumfang sind die Vereinbarungen im notariellen Kaufvertrag sowie die Baubeschreibung und die Baupläne, welche Bestandteil der notariellen Bezugsurkunde sind.
Weitere Dokumente
Ansichten, SchnittGrundriss
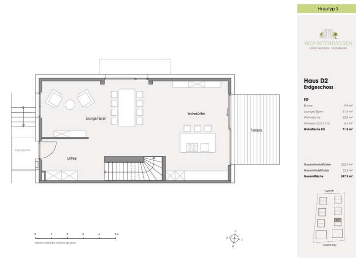
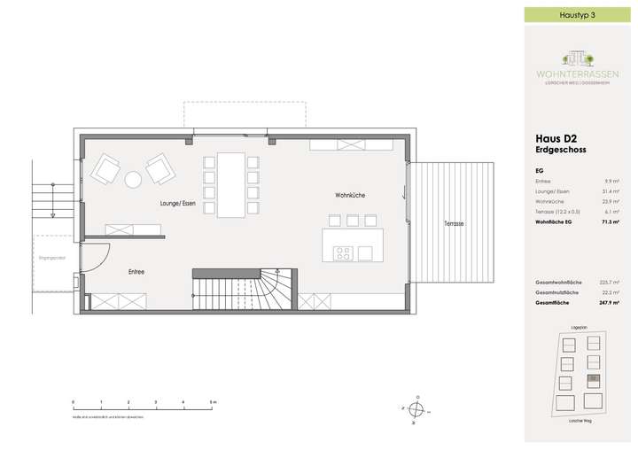
Grundriss-Erdgeschoss
>
>
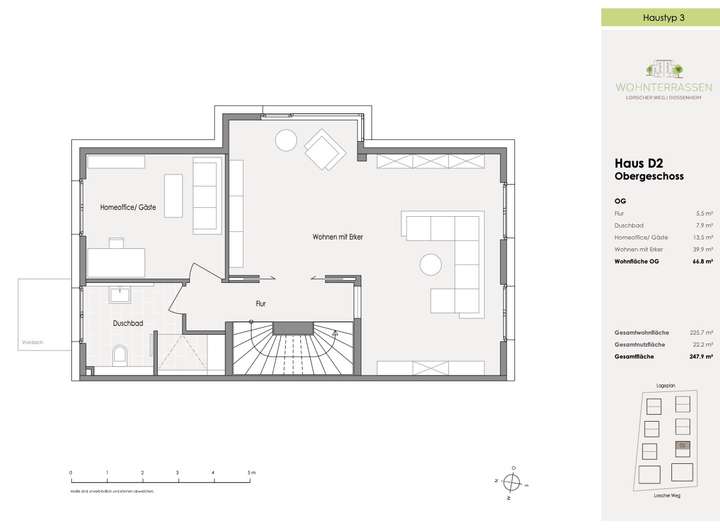
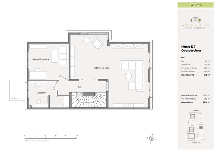
Grundriss-Obergeschoss
>
>
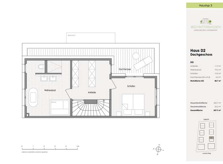
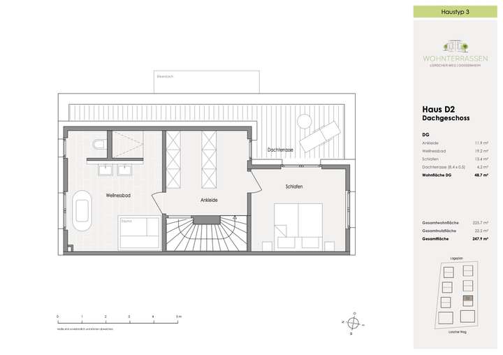
Grundriss-Dachgeschoss
>
>
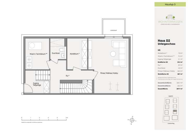
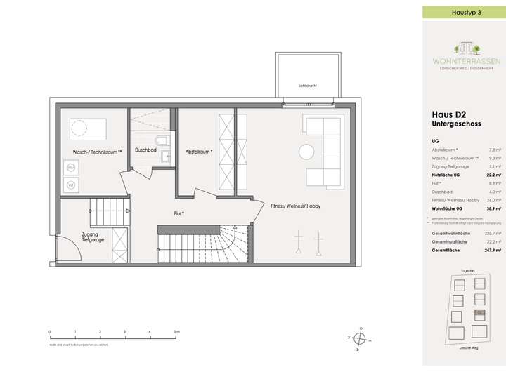
Grundriss-Untergeschoss
>
PDF
Download
>
Adresse
Lorscher Weg 24, 69221 Dossenheim
Interessante Orte
Preis- und Lageinformationen
Preistrend für Bestandsimmobilien in Dossenheim