Willkommen zu einer ganz besonderen Immobilie – einem Haus, das Charakter hat, Charme ausstrahlt und darauf wartet, aus seinem Dornröschenschlaf geweckt zu werden. In absolut zentraler Innenstadtlage von Bad Urach – und dennoch wunderbar ruhig – liegt diese großzügige Stadtvilla mit über 1.100 m² Grundstücksfläche und altem Baumbestand. Ein echtes Juwel, das Sie mit dem richtigen Blick in ein echtes Traumzuhause verwandeln können.
Zwischen Vergangenheit und Zukunft:
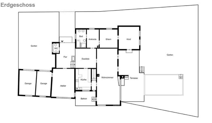
Erbaut im Jahr 1965 und in weiten Teilen im Originalzustand erhalten, bietet dieses Haus Raum für neue Ideen. Die rund 267 m² Wohnfläche verteilen sich auf sieben Zimmer – mit reichlich Platz für Familienleben, Arbeiten von zu Hause oder repräsentatives Wohnen. Große Fenster, helle Räume, teils klassische Elemente – all das bildet die perfekte Grundlage für eine stilvolle Modernisierung.
Außen grün, innen Potenzial:
Der Garten ist eine grüne Oase inmitten der Stadt. Mit viel Privatsphäre lädt er zum Entspannen, Spielen oder Feiern ein. Hier entsteht Lebensqualität, wie man sie mitten im Zentrum nur selten findet. Der alte Pool im Garten ist stillgelegt, aber durchaus reaktivierbar – oder lässt sich in eine schöne Terrasse oder ein Beetparadies verwandeln.
Renovierungsbedürftig? Ja. Aber mit Perspektive.
Dieses Haus richtet sich an Menschen mit Vision: Wer bereit ist, Zeit, Ideen und etwas Budget zu investieren, wird mit einem Wohnort belohnt, der so in Bad Urach kaum zu finden ist. Eine echte Gelegenheit für Liebhaber von Bestandsimmobilien, die das Einzigartige suchen – und gerne selbst gestalten.
Lage, Lage, Lage:
Direkt in der historischen Altstadt gelegen, sind alle Dinge des täglichen Lebens nur einen Katzensprung entfernt: Geschäfte, Cafés, Schulen, die AlbThermen – alles fußläufig. Trotzdem genießen Sie hier Ruhe und Zurückgezogenheit. Die Alb und der Uracher Wasserfall beginnen quasi vor der Haustür. Auch Stuttgart und Ulm sind schnell erreichbar – durch die gute Anbindung per Bahn und über die B28 an die A8/A81.
Fakten auf einen Blick:
ca. 267 m² Wohnfläche, 7 Zimmer
Grundstücksfläche: ca. 1.101 m²
Baujahr: 1965
Renovierungsbedürftiger Zustand
Energieeffizienzklasse: F (Bedarfsausweis, Öl-Heizung)
Bezugsfrei: sofort
4 Stellplätze (Garage & Außen)
Fazit:
Diese Stadtvilla ist keine Immobilie „von der Stange“. Sie ist ein Unikat mit Geschichte, mit Tiefe – und mit Zukunft. Wer den Mut hat, ihr neues Leben einzuhauchen, wird belohnt mit einem besonderen Zuhause im Herzen einer der schönsten Städte der Schwäbischen Alb.
Neugierig geworden? Dann vereinbaren Sie einen Besichtigungstermin und spüren Sie selbst das besondere Flair dieses Hauses.
Stadtvilla im Dornröschenschlaf – Ihre grüne Ruheoase mitten in Bad Urach
Lange Str. 38,
72574 Bad Urach
Auf Karte anzeigen
Finanzierungszertifikat
In nur zwei Minuten zu Ihrem persönlichen Finanzierungszertifkat.
Infos
| Wohnfläche ca. | 267 m2 |
|---|---|
| Nutzfläche | 100 m2 |
| Grundstücksfläche | 1.101 m2 |
| Bezugsfrei ab | sofort |
| Zimmer | 7 |
| Schlafzimmer | 4 |
| Badezimmer | 2 |
| Garage/Stellplatz | Garage |
| Anzahl Garage/Stellplatz | 4 |
Kosten
| Kaufpreis |
600.000 € |
|---|---|
| Provision |
4,76% inkl. MwSt. |
Finanzierungsrechner:
Kaufpreis:
600.000 €
Eigenkapital:
600.000 €
Monatliche Rate
0 €
Effektiver Jahreszins
0 %
Sollzinsbindung
10 Jahre
Bausubstanz & Energieausweis
| Baujahr | 1965 |
|---|---|
| Objektzustand | Renovierungsbedürftig |
| Wesentliche Energieträger | Öl |
| Energieausweis | liegt vor |
| Energieausweistyp | Bedarfsausweis |
| Energieverbrauchskennwert | 305,8 kWh/(m²*a) |
| Energieeffizienzklasse | F |
305,8
kWh/(m²*a)
Energieeffizienzklasse F
- A+
- A
- B
- C
- D
- E
- F
- G
- H
- 0
- 25
- 50
- 75
- 100
- 125
- 150
- 175
- 200
- 225
- >250
Beschreibung des Objekts
Sonstige Angaben
Wir weisen darauf hin, dass die von uns weitergegebenen Objektinformationen, Unterlagen etc. vom Eigentümer stammen. Daher übernehmen wir keine Haftung für die Richtigkeit oder Vollständigkeit der Angaben. Es obliegt somit unseren Kunden, die darin enthaltenen Objektinformationen und Angaben auf ihre Richtigkeit hin zu überprüfen.
Die angegebenen Flächenmaße sind ausschließlich " Circamaße ", deren Richtigkeit wir nicht überprüft haben. Auch diesbezüglich schließen wir unsere Haftung aus. Sollten diese oder auch andere Kriterien des Angebotes für den Interessenten wertbestimmend sein, bitten wir um deren Überprüfung bei einer Besichtigung vor Ort oder Einsicht in die amtlichen Baupläne. Gerne sind wir bereit den Interessenten bei der Überprüfung dieser Angaben zu unterstützen.
Wir sind der allein beauftragte Makler und freuen uns auf Ihren Anruf.
Grundriss
Erdgeschoss
>
>
Obergeschoss
>
>
Adresse
Lange Str. 38, 72574 Bad Urach
Interessante Orte
Preis- und Lageinformationen
Preistrend für Bestandsimmobilien in Bad Urach