Am Ortsrand der Ortsgemeinde Forst gelegen, mit direktem Zugang zu Wald und Wiesen sowie einem äußert großzügigem Grundstück, bieten wir Ihnen dieses gepflegte und stilvoll eingerichtete Landhaus zum Kauf an. Ideal für die kleine und große Familie, die sich ein großzügiges Gartengrundstück, Nebengebäude für Hobby oder Fahrzeuge wünschen und insgesamt das Landleben bevorzugen.
Sofern gewünscht, kann das voll erschlossene und angrenzende Baugrundstück mit einer Fläche von rd. 780 m² dazu erworben werden. Das Grundstück liegt zudem autark an einer sep. Anliegerstraße. Der Kaufpreis des Grundstückes beträgt 34.900,00 €.
Im Ursprung wurde das Gebäude um 1925 in Massivbauweise errichtet und im Jahre 1957 um einen Vorbau erweitert. Der ursprüngliche Schweinestall, welcher 1938 errichtet wurde sowie das Hauptgebäude wurden 1990 umfangreich modernisiert, umgebaut und mit Dachgauben versehen.
Heute beherbergt die Immobilie schönen Wohnraum mit insgesamt rd. 163 m² Wohnfläche und sorgt aufgrund seiner Raumgestaltung und Einrichtung für eine tolle Wohlfühlatmosphäre.
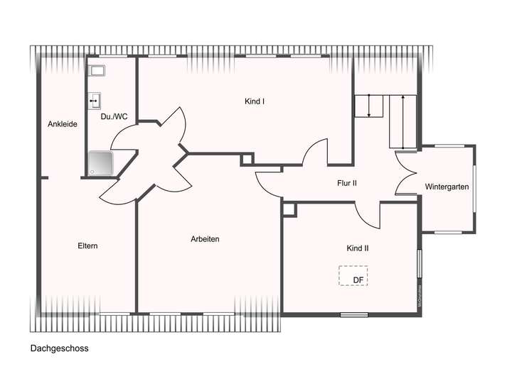
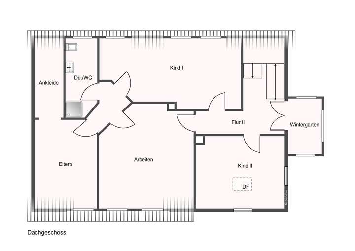
Im Erdgeschoss empfängt ein heller Flur, welcher Zugang zum Wohn-/Essbereich mit angrenzender Wohnküche bietet. Zwei Sanitärbereiche ergänzen den Bereich. Vier Zimmer, welche zum Schlafen oder aber als Arbeitszimmer genutzt werden könnten, sowie ein Duschbad stehen im 1990 ausgebauten Dachgeschoss zur Verfügung.
Hervorzuheben ist das komplett eingezäunte und üppige Gartengrundstück, welches mit Grünpflanzen bestückt ist und über den Küchenbereich zu erreichen ist; es bietet jede Menge Platz, um die eigenen Gartenwünsche zu verwirklichen! Das auf dem Grundstück befindliche Gartenhaus in massiver Bauweise bietet Platz für Gartengeräte oder lädt ein zu geselligen Stunden mit Freunden und Familie.
Eine separates Garagennebengebäude für 2 PKW befindet sich gegenüberliegend des Wohnhauses auf einem separaten Grundstück und rundet das Platzangebot ab.
Die Übernahme der Immobilie kann, nach vorheriger Absprache, kurzfristig erfolgen. Gerne stellen wir Ihnen das Anwesen im Rahmen einer ausführlichen Besichtigung vor.
Warten Sie nicht lange und sprechen uns an!
Ansprechendes Landhaus mit üppigem Gartengrundstück, einem Garagennebengebäude mitten im Grünen
57537 Forst
Die vollständige Adresse der Immobilie erhalten Sie vom Anbieter.
Auf Karte anzeigen
Die vollständige Adresse der Immobilie erhalten Sie vom Anbieter.
Finanzierungszertifikat
In nur zwei Minuten zu Ihrem persönlichen Finanzierungszertifkat.
Infos
| Haustyp | Einfamilienhaus |
|---|---|
| Etagenzahl | 1 |
| Wohnfläche ca. | 163 m2 |
| Grundstücksfläche | 1.533 m2 |
| Zimmer | 6 |
| Garage/Stellplatz | Garage |
| Anzahl Garage/Stellplatz | 2 |
Kosten
| Kaufpreis |
329.000 € |
|---|---|
| Provision |
3,57 % inkl. ges. MwSt. |
Finanzierungsrechner:
Kaufpreis:
600.000 €
Eigenkapital:
600.000 €
Monatliche Rate
0 €
Effektiver Jahreszins
0 %
Sollzinsbindung
10 Jahre
Bausubstanz & Energieausweis
| Baujahr | 1925 |
|---|---|
| Wesentliche Energieträger | Öl |
| Energieausweis | liegt vor |
| Energieausweistyp | Bedarfsausweis |
| Energieverbrauchskennwert | 242,4 kWh/(m²*a) |
| Energieeffizienzklasse | G |
242,4
kWh/(m²*a)
Energieeffizienzklasse G
- A+
- A
- B
- C
- D
- E
- F
- G
- H
- 0
- 25
- 50
- 75
- 100
- 125
- 150
- 175
- 200
- 225
- >250
Beschreibung des Objekts
Ausstattung
Massivbauweise aus 1925, Umbau in den Jahren 1938 und 1963, Errichtung eines Vorbaus in 1957, Außenwände verputzt (Wärmedämmputz) und gestrichen, massive Geschossdecke zwischen Keller- und Erdgeschoss, Holzbalkendecke in den weiteren Geschossen, massive Innenwände tlw. Innenwände als Holzständerwände, Satteldach mit Gauben und Eindeckung in glasierten Pfannen aus 1990, Ölzentralheizung aus 1983 (Austausch des Brenners in 1996) mit zentrale Warmwasseraufbereitung, Holzinnentreppe mit Stahlunterkonstruktion, Holzinnentüren im Landhausstil, Kunststofffenster (isolierverglast) aus 1990, Erneuerung der Sanitärbereiche Anfang der 90iger Jahre, die Hauselektrik befindet sich auf dem Stand der 70iger Jahre mit Teilerneuerung aus 1990, Oberböden überwiegend in Fliesen sowie massivem Parkett,
Einbauküche aus 2011, Kaminofen (zwecks weiterer Nutzung bei Eigentumswechsel müsste dies mit dem Schornsteinfeger besprochen werden), sep. Garagennebengebäude für 2 PKW, Gartenhaus
Der Glasfaserausbau ist vorgesehen und wird zukünftig erstellt.
Lage
Forst ist eine Ortsgemeinde mit ca. 600 Einwohnern im Landkreis Altenkirchen (Westerwald) in Rheinland-Pfalz. Sie gehört der Verbandsgemeinde Hamm (Sieg) an. Zu Forst gehören außer dem namensgebenden Ort noch die Ortsteile Dellingen, Hof Holpe, Kaltau, Lechenbach, Neuhöfchen, Seifen, Seifermühle und Wäldchen.
Die Gemeinde Forst im Nördlichen Mittelsiegbergland liegt auf einem Höhenrücken rechts der Sieg zwischen dem Bellingerbach im Westen und dem Holperbach im Osten, etwa fünf Kilometer nordwestlich von Wissen an der Landesgrenze zu Nordrhein-Westfalen. Die Stadt Waldbröl ist ca. 12 km entfernt. Der nächstgelegene Regionalbahnhof ist der Bahnhof Etzbach oder Au/Sieg und die nächstgelegene Autobahn ist die A45.
Die Immobilie selbst befindet sich in schöner Höhen- und Ortrandlage.
Grundriss
Erdgeschoss
>
>
Obergeschoss
>
>
Adresse
57537 Forst
Interessante Orte
Preis- und Lageinformationen
Preistrend für Bestandsimmobilien in Forst