Willkommen in Ihrem neuen Zuhause an der Scharmeder Straße 99 in Paderborn-Elsen! Hier entsteht ein modernes Neubauprojekt mit insgesamt 10 hochwertig ausgestatteten Eigentumswohnungen, das durch durchdachte Grundrisse, zeitgemäße Architektur und eine attraktive Lage überzeugt.
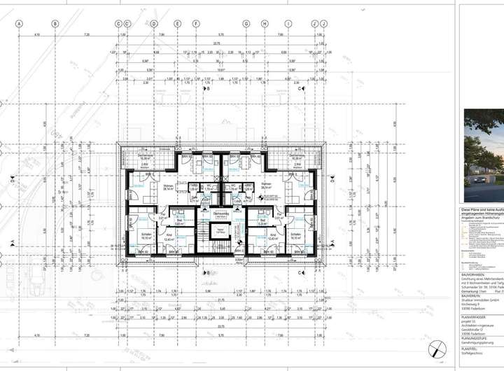
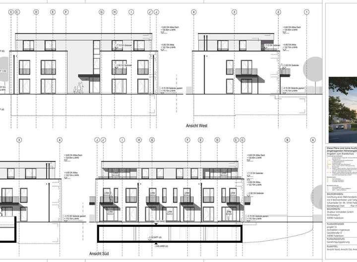
Das Gebäude verteilt sich auf Erdgeschoss, Obergeschoss und Staffelgeschoss. Besonders hervorzuheben sind die zwei exklusiven Penthousewohnungen im Staffelgeschoss – mit großzügigen Dachterrassen und Weitblick, ideal für alle, die das Besondere suchen.
Alle Wohnungen punkten mit hellen, offenen Wohnkonzepten, großen Fensterflächen und einer hochwertigen Ausstattung. Ob 2-, 3- oder 4-Zimmer – hier findet jeder den passenden Grundriss, ganz gleich ob Eigennutzer oder Kapitalanleger.
Für den täglichen Komfort stehen den Bewohnern eine Tiefgarage mit direktem Hauszugang, zusätzliche Außenstellplätze, sowie separate Abstellräume zur Verfügung. Ein geräumiger Fahrradkeller rundet das Angebot ab – praktisch, sicher und zukunftsorientiert.
Dieses Projekt vereint modernes Wohnen, Effizienz und Lebensqualität – mitten in einem der beliebtesten Stadtteile Paderborns.
Exklusives Zuhause über den Dächern von Elsen - Niedrige Energiekosten - QNG (ab 1.13% p.a)
Scharmeder Straße 99,
33106 Paderborn
Auf Karte anzeigen
Finanzierungszertifikat
In nur zwei Minuten zu Ihrem persönlichen Finanzierungszertifkat.
Infos
| Wohnungskategorie | Penthouse |
|---|---|
| Etage | 2 von |
| Wohnfläche ca. | 86 m2 |
| Zimmer | 3 |
| Schlafzimmer | 2 |
| Badezimmer | 1 |
Kosten
| Kaufpreis |
389.999 € |
|---|---|
| Provision | Nein |
Finanzierungsrechner:
Kaufpreis:
600.000 €
Eigenkapital:
600.000 €
Monatliche Rate
0 €
Effektiver Jahreszins
0 %
Sollzinsbindung
10 Jahre
Bausubstanz & Energieausweis
| Objektzustand | Erstbezug |
|---|---|
| Qualität der Austattung | Gehoben |
Beschreibung des Objekts
Ausstattung
Willkommen in deinem exklusiven Zuhause. Über den Dächern von Elsen erwartet dich ein ganz besonderes Wohngefühl – mit traumhafter Aussicht, lichtdurchfluteten Räumen und einer großzügigen Dachterrasse, die deinen Wohnraum in den Himmel erweitert. Dieses Penthouse im Staffelgeschoss des modernen Neubaus an der Scharmeder Straße 99 vereint stilvolle Architektur mit maximalem Komfort und durchdachter Ausstattung auf rund 93 m² Wohnfläche.
Das offene Wohnkonzept schafft ein luftiges Raumgefühl, das durch bodentiefe Fenster zusätzlich unterstrichen wird. Der Wohn- und Essbereich wird so zum zentralen Treffpunkt mit viel Licht, Ausblick und Atmosphäre. Neben dem geräumigen Schlafzimmer stehen dir ein Kinder- oder Arbeitszimmer sowie ein weiteres halbes Zimmer zur Verfügung, das sich ideal als Büro, Ankleide oder Gästebereich nutzen lässt – ganz so, wie es zu deinem Leben passt.
Die rund 10,9 m² große Dachterrasse ist ein echtes Highlight: teils überdacht, mit viel Platz für eine Lounge-Ecke, Pflanzen oder Sonnenliegen. Sie ist dein privater Rückzugsort über den Dächern – ein Ort der Ruhe und Weite, an dem du entspannen, genießen und durchatmen kannst. Der Aufzug bringt dich barrierefrei direkt ins Staffelgeschoss – bequem, komfortabel und altersunabhängig nutzbar.
Auch technisch ist das Penthouse auf dem neuesten Stand. Die Kombination aus Luftwärmepumpe und Photovoltaikanlage sorgt für eine zukunftssichere und energieeffiziente Versorgung mit besonders niedrigen Betriebskosten. Eine angenehme Fußbodenheizung in allen Räumen, großformatige Fliesen im Bad und WC, eine bodengleiche Dusche sowie elektrische Rollläden unterstreichen den modernen, hochwertigen Anspruch.
Der Neubau erfüllt den QNG-Standard und ist damit nicht nur nachhaltig und förderfähig, sondern auch besonders wertbeständig. Ein eigener Kellerraum sowie ein gemeinschaftlich nutzbarer Fahrradkeller stehen dir zur Verfügung. Optional kannst du einen Tiefgaragen- oder Außenstellplatz erwerben, um dein neues Zuhause ideal zu ergänzen.
Dieses Penthouse ist mehr als eine Wohnung – es ist ein Lebensstil. Offen, hochwertig, energieeffizient und mit einem ganz besonderen Ausblick.
Lage
Leben an der Scharmeder Straße 99 – Zuhause in Elsen
Ankommen, aufatmen, zuhause sein
Willkommen in Elsen – einem der beliebtesten Stadtteile Paderborns. Genau hier, an der Scharmeder Straße 99, treffen ländliche Idylle und städtische Lebensqualität aufeinander. Zwischen Feldern, alten Höfen und moderner Infrastruktur entsteht ein Wohngefühl, das perfekt zu all denen passt, die Ruhe, Nähe und Gemeinschaft suchen.
Zentrale Lage mit optimaler Infrastruktur
Die Scharmeder Straße 99 liegt im Herzen Elsens und profitiert von einer hervorragenden Infrastruktur: Supermärkte, Bäcker, Fachgeschäfte, Banken, Apotheken und Arztpraxen sind schnell erreichbar – der Alltag wird dadurch besonders komfortabel. Auch Familien kommen auf ihre Kosten: Kindergärten, Grundschulen und weiterführende Schulen sind entweder fußläufig oder nur wenige Fahrminuten entfernt.
Beste Verkehrsanbindung – flexibel unterwegs
Elsen ist optimal angebunden: Die Scharmeder Straße (K32) führt direkt zu umliegenden Stadtteilen und zur A33, über die man Bielefeld oder Kassel bequem erreicht. Der öffentliche Nahverkehr sorgt über regelmäßige Busverbindungen für eine schnelle Anbindung an die Paderborner Innenstadt und den Hauptbahnhof.
Nah an der Natur – mitten im Leben
Wer Elsen kennt, weiß: Hier lebt man naturnah und gleichzeitig mittendrin. Ob beim Spaziergang durch weitläufige Grünanlagen, Joggen im Naturschutzgebiet Gunnewiesen oder im Training beim lokalen Sportverein – hier findet jeder seinen Ausgleich. Fitnessstudios, Parks und aktive Vereinskultur bieten für Jung und Alt ein vielseitiges Freizeitangebot.
Echte Nachbarschaft & kulturelles Leben
In Elsen grüßt man sich noch auf der Straße. Das gewachsene Miteinander zeigt sich auch bei Veranstaltungen, Dorffesten und Wochenmärkten. Die Nähe zur Paderborner Innenstadt bringt zusätzlich Kultur, Theater, Museen und Shoppingangebote in greifbare Nähe.
Fazit
Die Scharmeder Straße 99 in Elsen vereint das Beste aus zwei Welten: die ruhige Geborgenheit eines lebendigen Stadtteils mit der direkten Nähe zur City. Ein Ort, an dem man nicht nur wohnt – sondern ankommt und bleibt. Ein echtes Zuhause.
Sonstige Angaben
Stellplatz = 7.500 €
TG-Stellplatz = 25.000 €
Adresse
Scharmeder Straße 99, 33106 Paderborn
Interessante Orte
Preis- und Lageinformationen
Preistrend für Bestandsimmobilien in Paderborn