Willkommen im Schülpweg 16 – in idyllischer Feldrandlage mit beeindruckendem Weitblick über die sanften Hügel der Holsteinischen Schweiz erwartet Sie dieses großzügige Einfamilienhaus mit rund 187 m² Wohnfläche. Die Immobilie bietet vielfältige Nutzungsmöglichkeiten, sei es als großzügiges Familienhaus oder mit abtrennbarer Einliegerwohnung für Mehrgenerationenwohnen, Gäste oder Homeoffice.
Das Haus im Überblick:
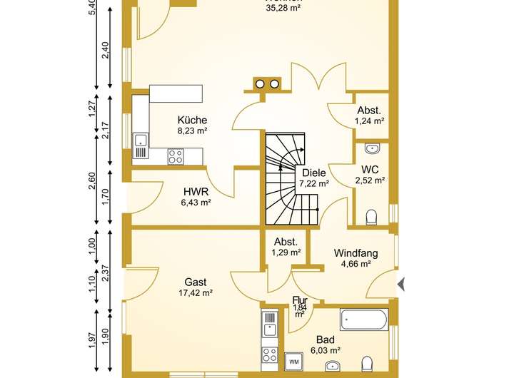
Im Erdgeschoss öffnet sich der lichtdurchflutete Wohn- und Essbereich mit offener Küche und Theke – das Herzstück des Hauses. Von hier gelangen Sie in den verglasten Kaltwintergarten, der an warmen Tagen zur überdachten Terrasse geöffnet werden kann – immer begleitet vom freien Blick über Wiesen und Felder. Ein Kaminofen sorgt in der kalten Jahreszeit für behagliche Wärme.
Das Haus bietet insgesamt sechs Zimmer, darunter fünf gut geschnittene Schlafzimmer sowie drei voll ausgestattete Bäder – zwei mit Dusche, zwei mit Wanne – und ein separates Gäste-WC. Ein zusätzlicher Nebeneingang mit Hauswirtschaftsraum sorgt für praktische Wege im Alltag.
Besonders hervorzuheben ist die Einliegerwohnung mit separatem Eingang und Durchgang zur Hauptwohnung im Erdgeschoss. Auf ca. 30 m² bietet sie ein eigenes kleines Reich – ideal für Gäste, Angehörige, zur Vermietung oder einfach als erweiterter Wohnraum im Erdgeschoss.
Im Dachgeschoss genießen Sie von einem Eckbalkon den weiten Blick bis zum Horizont. Auch aus den Schlafzimmern im Obergeschoss und dem Wohnzimmer bleibt der unverbaute Fernblick ständiger Begleiter – Natur pur, in jedem Raum.
Wohntraum am Feldrand - Einfamilienhaus mit viel Platz für Familie & Gäste
23701 Süsel
Die vollständige Adresse der Immobilie erhalten Sie vom Anbieter.
Auf Karte anzeigen
Die vollständige Adresse der Immobilie erhalten Sie vom Anbieter.
Finanzierungszertifikat
In nur zwei Minuten zu Ihrem persönlichen Finanzierungszertifkat.
Infos
| Haustyp | Einfamilienhaus |
|---|---|
| Etagenzahl | 3 |
| Wohnfläche ca. | 187 m2 |
| Nutzfläche | 95 m2 |
| Grundstücksfläche | 894 m2 |
| Zimmer | 6 |
| Garage/Stellplatz | Carport |
| Anzahl Garage/Stellplatz | 2 |
Kosten
| Kaufpreis |
629.000 € |
|---|---|
| Provision |
3,33% inkl. MwSt. vom notariell beurkundeten Kaufpreis |
Finanzierungsrechner:
Kaufpreis:
600.000 €
Eigenkapital:
600.000 €
Monatliche Rate
0 €
Effektiver Jahreszins
0 %
Sollzinsbindung
10 Jahre
Bausubstanz & Energieausweis
| Baujahr | 2000 |
|---|---|
| Qualität der Austattung | Normal |
| Heizungsart | Gas-Heizung |
| Wesentliche Energieträger | Gas |
| Energieausweis | liegt vor |
| Energieausweistyp | Verbrauchsausweis |
| Energieverbrauchskennwert | 88,0 kWh/(m²*a) |
| Energieeffizienzklasse | C |
88,0
kWh/(m²*a)
Energieeffizienzklasse C
- A+
- A
- B
- C
- D
- E
- F
- G
- H
- 0
- 25
- 50
- 75
- 100
- 125
- 150
- 175
- 200
- 225
- >250
Beschreibung des Objekts
Ausstattung
Weitere Highlights:
✓ Süd/Südost-Ausrichtung des Grundstücks für sonnige Stunden
✓ Neue Gaszentralheizung (Baujahr 2021)
✓ Ca. 95 m² großer Vollkeller mit vielfältigen Nutzungsoptionen
✓ Wohnmobil-Carport (Höhe ca. 4,20 m, Länge ca. 8 m)
✓ PKW-Carport und zusätzlicher Werkraum
✓ Geräumiges Gartenhaus mit überdachter Veranda
✓ Gepflegter, offen gestalteter Garten ohne Umzäunung
✓ Schlau integrierte Abstellräume im EG und DG für mehr Ordnung im Alltag
✓ Vollkeller
In nur rund 300 m Entfernung schlängelt sich die Schwartau durch die Landschaft – Spaziergänge entlang des Flusses beginnen direkt vor Ihrer Haustür. Wer Ruhe, Weite und ein naturnahes Zuhause sucht, findet hier ein echtes Juwel.
Lage
Die Ortschaft Groß Meinsdorf ist ein idyllischer Ortsteil der Gemeinde Süsel im Kreis Ostholstein, Schleswig‑Holstein. Eingebettet in das Ostholsteinische Hügel‑ und Seenland, liegt sie rund 10 km südöstlich von Eutin sowie ca. 23 km nördlich von Lübeck – in unmittelbarer Nähe zur Lübecker Bucht und den beliebten Ostseestränden.
Räumliche Einbindung & Infrastruktur
Groß Meinsdorf ist ein ländlich geprägter Wohnort, umgeben von weitläufigen Feldern, Wiesen und vereinzelten Landwirtschaftsbetrieben. Das Dorf grenzt an weitere Süseler Ortsteile und profitiert durch seine Nähe zur Kreisstadt Eutin. Die Gemeinde Süsel gehört zum Naturraum Holsteinische Schweiz – bekannt für ihre sanften Hügel, zahlreichen Seen (z. B. Barkauer See, Woltersteich) und attraktive Naherholungsmöglichkeiten.
Bildung & Gemeinschaft
In Groß Meinsdorf wurde kürzlich die neue Kita „Kunterbunt“ errichtet (Fertigstellung 2024), Teil eines kommunalen Konzepts zur flächendeckenden Kinderbetreuung. Darüber hinaus gibt es in Süsel selbst sowie weiteren Ortsteilen ein differenziertes Betreuungsangebot für Kinder jeden Alters.
Freizeit & Mobilität
Die Lage ermöglicht zahlreiche Freizeitaktivitäten: Wander- und Radwege durch die Holsteinische Schweiz, Wasserskianlagen und Reitsportmöglichkeiten vor Ort. Die Ostsee erreichen Sie in wenigen Autominuten, Eutin ist bequem per Auto erreichbar. Die Infrastruktur deckt Grundversorgung, ärztliche Versorgung, Einkauf und Gastronomie, größtenteils im nahen Süsel sowie in Eutin.
Verkehrsanbindung
Eine gute Erreichbarkeit ist durch die Nähe zu regionalen Straßen gegeben; öffentliche Verkehrsanbindungen bestehen über Buslinien nach Eutin und Lübeck. Die stille Landstrasse und ruhige Umgebung garantieren dabei ein wohnliches, naturnahes Ambiente.
Sonstige Angaben
EXPOSÈ-DIREKT-DOWNLOAD
Als Qualitätsmakler für Norddeutschland bieten wir Ihnen einen Direkt-Exposé-Download auf unserer Homepage. Link zum Objekt auf unserer Homepage: www.moellerherm-immobilien.de/objekt/ID-MI-14953
Einfach auf unserer Internetseite anmelden und das Exposé inkl. Adresse direkt selber herunterladen.
VORTEILE
- sofortige automatische Exposé-Beantwortung nach Anmeldung
- Exposé inkl. Adresse sofort selber herunterladen
- Zugriff auch auf alle anderen Immobilien-Angebote & Exposés mit nur einer Anmeldung
KOSTENLOSE MARKTWERTEINSCHÄTZUNG & ERST-BERATUNG
www.unser-immobilienwert.de
(Unsere Beratung ist für den Eigentümer unverbindlich und kostenfrei, Tel. 0800 77 16 100)
ABLAUF IMMOBILIENVERKAUF
www.moellerherm-immobilien.de/ablauf
DIE MÖLLERHERM-METHODE
www.moellerherm-immobilien.de/moellerherm-methode
ALLE IMMOBILIENANGEBOTE
www.moellerherm-immobilien.de/aktuelle-angebote-wohnen
***PROSPEKTHAFTUNG***
Wir haben alle Angaben nach bestem Wissen und Gewissen für Sie zusammengetragen, jedoch ist Irren menschlich und es kann daher immer mal sein, dass sich der eine oder andere Fehler eingeschlichen hat. Das Angebot ist daher freibleibend und unverbindlich. Die Objektangaben wurden uns vom Eigentümer bereitgestellt, eine Prospekthaftung ist ausgeschlossen. Zwischenverkauf, Irrtum, Auslassung und Änderung sind vorbehalten.
Grundriss
Grundriss EG
>
>
Grundriss DG
>
>
Adresse
23701 Süsel
Interessante Orte
Preis- und Lageinformationen
Preistrend für Bestandsimmobilien in Süsel