GEGEN HÖCHSTGEBOT wird diese seltene, großzügige und unter Denkmalschutz stehende Liebhaberimmobilie verkauft.
Das Anwesen befindet sich im Sanierungsgebiet "Ortsmitte Ersingen", wurde 1786 erbaut und bietet Platz für bis zu 3 Familien.
In den vergangenen Jahrzehnten haben verschiedene Generationen immer wieder Umbau- und Modernisierungsmaßnahmen durchgeführt. Das Anwesen befindet sich bis auf die Einliegerwohnung im UG in einem gepflegten Zustand.
Aufgrund des Denkmalschutzes und dem Sanierungsgebiet "Ortsmitte Ersingen", bestehen nicht unerhebliche Förder- und Abschreibungsmöglichkeiten bei Modernisierurigs- und Instandsetzungsarbeiten.
Das großzügige Fachwerkhaus beeindruckt durch seine zahlreichen Lager-, Abstell-, Hobby und Werkstattflächen.
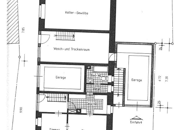
Das Highlight dieser Immobilie ist der Gewölbekeller aus dem Jahre 1786.
Im Untergeschoss befindet sich eine kleine 2-Zimmer-Einliegerwohnung mit ca. 41m² Wohnfläche, Küche und Bad. Diese Wohnung muss jedoch vollständig modernisiert werden.
Um UG befinden sich weitere Zugänge zum Waschraum und den beiden Garagen.
Über eine Holztreppe gelangt man vom UG zum EG in die große 4-Zimmer-Wohnung mit ca. 92m² Wohnfläche. Diese Wohnung wurde vor einigen Jahren im Landhausstil ausgebaut und eingerichtet. Eine Einbauküche ist in dieser Wohnung vorhanden.
Zum Dachgeschoss des Hauses gelangt man entweder direkt durch das Ergeschoss, von außen durch die Waschküche oder im hinteren Bereich des Erdgeschosses über die Werkstatt.
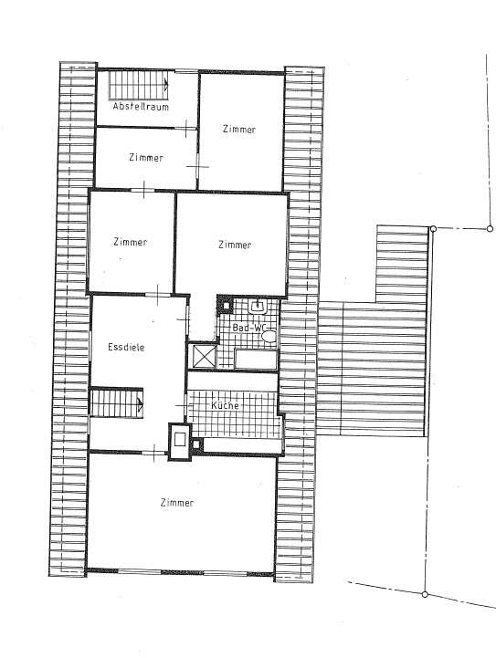
Auch im Dachgeschoss sind auf einer Wohnfläche von ca. 100m2 insgesamt 5 Zimmer mit Küche und Bad eingerichtet. Hier sind je nach Geschmack vereinzelt Modernisierungsarbeiten notwendig.
Die Fenster im ganzen Haus sind alte Holz-Doppelfenster und müssen erneuert werden. Vereinzelte Klappläden wurden bereits erneuert.
Die Böden sind aus Holzdielen, Parkett, Fliesen und Teppich. Die Zimmertüren sind zum Teil aus Naturholz.
Das ganze Haus wird mit Elekfro-Nachtspeicheröfen beheizt.
In der Wohnung im Dachgeschoss befindet sich ein funktionsfähiger Kachelofen.
1993 wurde am Haus eine Garage angebaut mit einem Satteldach. Hier bietet sich von der großzügigen und teilüberdachten Terrasse im EG weiterer Stauraum an.
Von der Ergeschosswohnung gelangt man weiter in den großzügigen Garten hinter dem Haus. Verschiedene Schuppen und Unterstellmöglichkeiten runden die ganze Wohlfühlathmosphäre ab.
Über der Dachgeschosswohnung befindet sich noch ein nicht ausgebauter Speicher, der nochmals weiteren Ideen freien Raum lässt.
Diese besondere Immobilie ist ein Schmuckstück für alle Liebhaber von Fachwerkhäusern, die der Denkmalschutz reizt, sich vor Renovierungsarbeiten nicht scheuen und ggf. auch mehrere Generationen unter einem Dach unterbringen möchten.
Eine Besichtigung lohnt sich.
Die Immobilie ist frei und kann sofort bezogen werden.
**GEGEN HÖCHSTGEBOT**Denkmalgeschützte Rarität für Liebhaber, Generationenhaus mit viel Platz**
75236 Kämpfelbach
Die vollständige Adresse der Immobilie erhalten Sie vom Anbieter.
Auf Karte anzeigen
Die vollständige Adresse der Immobilie erhalten Sie vom Anbieter.
Finanzierungszertifikat
In nur zwei Minuten zu Ihrem persönlichen Finanzierungszertifkat.
Infos
| Haustyp | Bauernhaus |
|---|---|
| Etagenzahl | 2 |
| Wohnfläche ca. | 232 m2 |
| Grundstücksfläche | 498 m2 |
| Bezugsfrei ab | ab sofort |
| Zimmer | 11 |
| Schlafzimmer | 8 |
| Badezimmer | 3 |
| Garage/Stellplatz | Garage |
| Anzahl Garage/Stellplatz | 2 |
Kosten
| Kaufpreis |
275.000 € |
|---|---|
| Provision |
3,57% inkl. 19% MwSt.
Fällig bei notariellem Vertragsabschluss. |
Finanzierungsrechner:
Kaufpreis:
600.000 €
Eigenkapital:
600.000 €
Monatliche Rate
0 €
Effektiver Jahreszins
0 %
Sollzinsbindung
10 Jahre
Bausubstanz & Energieausweis
| Baujahr | 1786 |
|---|---|
| Denkmalschutzobjekt | Ja |
| Objektzustand | Gepflegt |
| Qualität der Austattung | Normal |
| Wesentliche Energieträger | Strom |
| Energieausweis | laut Gesetz nicht erforderlich |
Beschreibung des Objekts
Ausstattung
* Denkmalgeschütztes Fachwerkhaus im Sanierungsgebiet "Ortsmitte Ersingen"
* für Energieausweis besteht keine Pflicht
* Förder- und Abschreibungsmöglichkeiten bei Modernisierurigs- und Instandsetzungsarbeiten
* 2 Garagen
* zahlreiche Lager-, Abstell-, Hobby und Werkstattflächen
* einzigartiger Gewölbekeller
* Waschraum
* Einbauküche in der EG-Wohnung
* alte Holz-Doppelfenster im ganzen Haus
* Klappläden wurden vereinzelt erneuert
* Böden sind aus Holzdielen, Parkett, Fliesen und Teppich
* Zimmertüren sind zum Teil aus Naturholz
* Elekfro-Nachtspeicheröfen im ganzen Haus
* im DG funktionsfähiger Kachelofen
* 1993 Anbau Garage mit Satteldach
Lage
Die Gemeinde Kämpfelbach ist eine beliebte Wohngemeinde mit regem Vereinsleben.
Sie liegt im Kämpfelbachtal zwischen Kraichgauer Hügelland und Nordschwarzwald, verbunden mit der guten Verkehrsanbindung (A8 mit Anschlussstelle Pforzheim-West / Bahnanschluss auf der Strecke Stuttgart - Pforzheim - Karlsruhe) sowie einer gut gewachsenen Infra- und Wirtschaftsstruktur.
Kämpfelbach ist über die Autobahn Karlsruhe-Stuttgart und mit der S-Bahn aus allen Richtungen sehr gut erreichbar.
Einrichtungen des täglichen Bedarf sowie S-Bahn-Haltestelle, Kindergarten und Grundschule sind fußläufig erreichbar. Weiterführende Schulen befinden sich in Königsbach-Stein.
Sonstige Angaben
Bitte geben Sie bei Ihrer Anfrage Ihre vollständigen Kontaktdaten an. Diese werden selbstverständlich vertraulich und diskret behandelt.
Alle Angaben beruhen auf den uns überlieferten Daten. Irrtümer vorbehalten.
**Sie suchen einen verlässlichen Partner für den Verkauf, die Vermietung oder die Betreuung Ihrer Immobilie ?
Eine 5-jährige Fachausbildung, Qualifikationen, Qualität und über 30 jährige Berufserfahrung inklusive Referenzen biete ich Ihnen an**
Ich verkaufe, vermiete und verwalte gerne auch Ihre Immobilie.
Grundriss
Grundriss UG
>
>
Grundriss EG
>
>
Grundriss DG
>
>
Schnitt
>
>
Adresse
75236 Kämpfelbach
Interessante Orte
Preis- und Lageinformationen
Preistrend für Bestandsimmobilien in Kämpfelbach