Die angebotenen Wohnungen aus dem Jahre 1989 befinden sich in Berlin-Lichtenrade, ein ruhiger Ortsteil des Bezirks Tempelhof-Schöneberg. Insgesamt erstrecken sich in diesem Quartier 116 Wohneinheiten, verteilt auf 3 Straßen (Braunfelsstraße, Straße 9 und Krontalstraße), mit jeweils 2 - 4 Zimmern und ca. 62 m² - 95 m². Die Wohnungen sind für Singles, Paare und Familien geeignet und laden mit ihren südwestlich ausgerichteten Balkonen zum Verweilen ein.
Es besteht die Möglichkeit einen Pkw-Außenstellplatz zu erwerben.
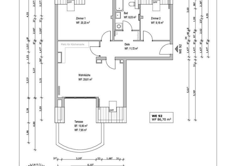
3-Zimmer Dachgeschosswohnung mit Balkon in Lichtenrade - Provisionsfrei
Braunfelsstraße 69,
12309 Berlin
Auf Karte anzeigen
Finanzierungszertifikat
In nur zwei Minuten zu Ihrem persönlichen Finanzierungszertifkat.
Infos
| Wohnungskategorie | Dachgeschoss |
|---|---|
| Etage | 2 von 2 |
| Wohnfläche ca. | 86 m2 |
| Bezugsfrei ab | sofort |
| Zimmer | 3 |
| Schlafzimmer | 2 |
| Badezimmer | 1 |
Kosten
| Kaufpreis |
398.820 € |
|---|---|
| Hausgeld |
371 € |
| Provision | Nein |
Finanzierungsrechner:
Kaufpreis:
600.000 €
Eigenkapital:
600.000 €
Monatliche Rate
0 €
Effektiver Jahreszins
0 %
Sollzinsbindung
10 Jahre
Bausubstanz & Energieausweis
| Baujahr | 1989 |
|---|---|
| Objektzustand | Modernisiert |
| Qualität der Austattung | Normal |
| Heizungsart | Zentralheizung |
| Wesentliche Energieträger | Erdgas schwer |
| Energieausweis | liegt vor |
| Energieausweistyp | Bedarfsausweis |
| Energieverbrauchskennwert | 97,0 kWh/(m²*a) |
| Energieeffizienzklasse | C |
97,0
kWh/(m²*a)
Energieeffizienzklasse C
- A+
- A
- B
- C
- D
- E
- F
- G
- H
- 0
- 25
- 50
- 75
- 100
- 125
- 150
- 175
- 200
- 225
- >250
Beschreibung des Objekts
Ausstattung
Die Wohnung liegt im Dachgeschoß und verfügt über drei helle und gut geschnittene Zimmer, einen großen Eingangsbereich, sowie ein Tageslichtbad mit Badewanne. Des Weiteren befindet sich am Wohnzimmer eine große Terrasse.
Lage
In ruhiger, grüner Lage, an der Grenze zu Brandenburg, bietet diese Wohnung die perfekte Erholung vom Alltagsstress und ist gut an den öffentlichen Nahverkehr (Buslinien 172, M76, N81), Ärzte, Kindergärten, Schulen und verschiedenste Einkaufsmöglichkeiten angebunden. Der internationale Flughafen BER ist nur 25 Minuten mit dem Auto entfernt, außerdem erreicht man die Autobahn A113 in 15 Minuten.
Weitere Dokumente
2016-01-30_Braunf67_EnergieausAdresse
Braunfelsstraße 69, 12309 Berlin
Interessante Orte
Preis- und Lageinformationen
Preistrend für Bestandsimmobilien in Lichtenrade (Tempelhof)