Über die Immobilie:
Dieses attraktive Haus steht in Sulzgries, einem sehr beliebten und bevorzugten Stadtteil im Norden von Esslingen.
Im Split-Level erschließen sich in diesem bauhausähnlichen, kubistischen Baukörper die verschiedenen Wohnfunktionen.
Sieben Räume sind auf verschiedenen Ebenen verteilt.
Das Haus beherbergt drei Bäder und ein separates Gäste WC.
Der heitere, lichtdurchflutete Ess-Küchenbereich mit einer sich anschließenden Terrasse und Zugang zum Garten, sowie dem halben Stock höher gelegenen Wohnzimmer, bietet viel Platz zum Kochen und Feiern.
Helligkeit, Transparenz und herrliche Besonnung sowie großzügige Freisitze auf zwei Ebenen mit stylischen Glasdächern, zeichnen dieses attraktive Haus aus.
Die Einliegerwohnung mit ca. 47m² Wfl. hat einen eigenen Zugang - kann aber jederzeit auch intern begangen werden.
Das gesamte Haus wurde vor ca. 25 Jahre umfassend renoviert und modernisiert. Lediglich das Bad in der Einliegerwohnung kommt noch im Stil der 80iger Jahre daher - ist aber top gepflegt.
Ein kuscheliger, uneinsehbarer und überschaubarer Garten komplettiert diese Angebot.
Ruhig und in bester Wohnlage am Rande der Felder wohnen...
73733 Esslingen am Neckar
Die vollständige Adresse der Immobilie erhalten Sie vom Anbieter.
Auf Karte anzeigen
Die vollständige Adresse der Immobilie erhalten Sie vom Anbieter.
Finanzierungszertifikat
In nur zwei Minuten zu Ihrem persönlichen Finanzierungszertifkat.
Infos
| Haustyp | Bungalow |
|---|---|
| Etagenzahl | 3 |
| Wohnfläche ca. | 196 m2 |
| Grundstücksfläche | 232 m2 |
| Bezugsfrei ab | kurzfristig nach Vereinbarung |
| Zimmer | 7 |
| Schlafzimmer | 4 |
| Badezimmer | 3 |
| Garage/Stellplatz | Tiefgarage |
| Anzahl Garage/Stellplatz | 2 |
Kosten
| Kaufpreis |
649.000 € |
|---|---|
| Preis für Garage/Stellplatz | 20.000 € |
| Provision |
3,57% inkl. MwSt. Die Provision ist unmittelbar nach Kaufvertragsabschluss zu entrichten. Wir sind auch im Auftrag des Verkäufers tätig. |
Finanzierungsrechner:
Kaufpreis:
600.000 €
Eigenkapital:
600.000 €
Monatliche Rate
0 €
Effektiver Jahreszins
0 %
Sollzinsbindung
10 Jahre
Bausubstanz & Energieausweis
| Baujahr | 1972 |
|---|---|
| Letzte Sanierung | 2000 |
| Objektzustand | Gepflegt |
| Heizungsart | Fernwärme |
| Wesentliche Energieträger | Fernwärme |
| Energieausweis | liegt vor |
| Energieausweistyp | Bedarfsausweis |
| Energieverbrauchskennwert | 206,7 kWh/(m²*a) |
| Energieeffizienzklasse | G |
206,7
kWh/(m²*a)
Energieeffizienzklasse G
- A+
- A
- B
- C
- D
- E
- F
- G
- H
- 0
- 25
- 50
- 75
- 100
- 125
- 150
- 175
- 200
- 225
- >250
Beschreibung des Objekts
Ausstattung
Das ansprechende Haus befindet sich in einem gepflegten Gesamtzustand.
2000 wurde der Eingangsbereich inklusive der Gästetoilette modernisiert
2006 Schlafzimmerfensterfront erneuert
2006 Anbau der schönen, großen Glasdächer
2010 Bad auf der Kinderebene neu saniert
2018 wurde das gesamte Flachdach neu gedämmt und mit Teerpappe abgedichtet.
- das Haus verfügt über Rollläden
- unter den Glasdächern gibt es zwei hochwertige, elektrische Markisen
- DSL Anschluss mit bis zu 250 Mbit/s
Lage
Der Bungalow befindet sich in einem ruhigen Stadtteil von Esslingen. Die Umgebung zeichnet sich durch malerische Gärten und gepflegte Anwesen aus, die eine freundliche und familiäre Atmosphäre schaffen. In unmittelbarer Nähe finden sich Einkaufsmöglichkeiten, Schulen und Felder die zu Spaziergängen und Erholung einladen.
Esslingen ist eine historische Stadt mit einer reichen Vergangenheit, die sich in der gut erhaltenen Altstadt widerspiegelt. Die Altstadt ist geprägt von engen Gassen, Fachwerkhäusern und mittelalterlichen Kirchen, die zum Erkunden und Verweilen einladen. Die Stadt bietet zudem eine Vielzahl von Cafés, Restaurants und Geschäften, die das kulturelle und kulinarische Angebot vielfältig gestalten.
Die Region um Esslingen ist bekannt für ihre malerische Landschaft und ihre Weinanbaugebiete. Die Weinberge erstrecken sich entlang des Neckars und bieten ein idyllisches Panorama, das zum Wandern und Genießen einlädt. Esslingen ist zudem ein beliebtes Ziel für Tagesausflüge in die umliegenden Städte und Regionen, die mit ihrer Vielfalt und Schönheit beeindrucken.
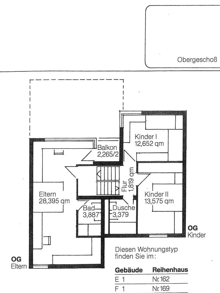
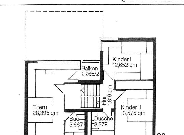
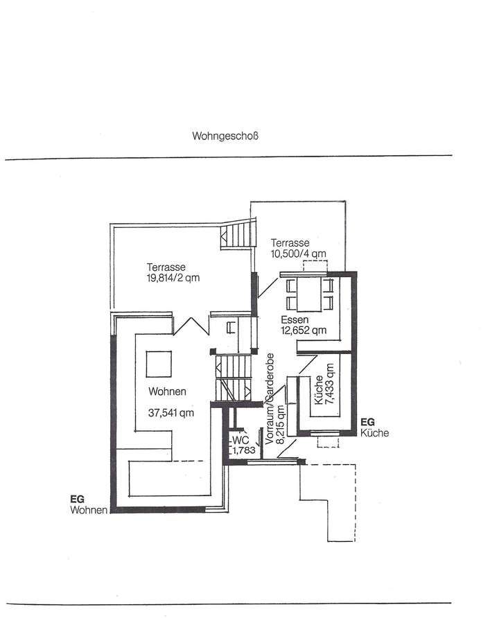
Grundriss
UG
>
>
EG
>
>
OG
>
>
Schnitt
>
>
Adresse
73733 Esslingen am Neckar
Interessante Orte
Preis- und Lageinformationen
Preistrend für Bestandsimmobilien in Esslingen am Neckar